Foram encontradas 472 questões.
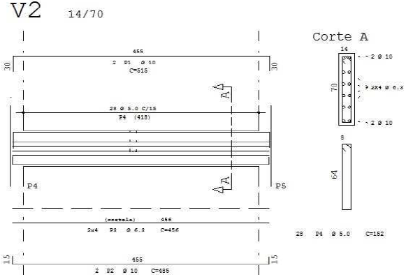
O desenho abaixo representa a armação de uma viga, de acordo com o que determina a Norma NBR07191 (Execução de desenhos para obras de concreto simples ou armado).

Qual o diâmetro da armadura de pele dessa viga?
Provas
Questão presente nas seguintes provas
O ragtime é um gênero musical surgido nos Estados Unidos no final do século XIX. Desse estilo, a música “The Entertainer”, de Scott Joplin, é considerada emblemática. Em princípio, tocava-se ragtime ao piano, porém, nos idos do século XX, já era verificável a presença da bateria incorporada a grupos musicais do gênero, sendo a figura de Buddy Gilmore um dos principais expoentes no estilo ragtime de tocar bateria. Em relação a esse gênero musical, é correto dizer que
Provas
Questão presente nas seguintes provas
A participação de bibliotecas em redes e em programas cooperativos de catalogação requer a adoção de padrões e a aplicação de normas; que produzam registros descritivos confiáveis e de qualidade e que possibilitem o intercâmbio de dados. Sobre os níveis de catalogação do MARC21 analise as afirmativas abaixo.
I. O formato MARC21 apresenta dois níveis de catalogação, utilizados nos EUA: nacional e mínimo.
II. Os registros com nível nacional contêm informações de catalogação suficientes para permitir o uso por várias agências nacionais e internacionais.
III. Os registros com nível nacional contêm informações de catalogação de intercâmbio válidos apenas entre as diversas agências nacionais e na sua estrita área de abrangência de utilização do formato MARC21.
IV. Os registros com nível mínimo de catalogação contêm apenas informações essenciais, e é vedada a adição de novos dados a esse campo.
V. Os registros com nível mínimo de catalogação contêm apenas informações essenciais, embora informações adicionais possam ser fornecidas.
Estão corretas, apenas:
Provas
Questão presente nas seguintes provas
Com relação ao coeficiente de cultura (Kc), julgue os itens abaixo.
I. O coeficiente de cultura (Kc) é adimensional e representa a razão entre a evapotranspiração da cultura ( ETc) e a evapotranspiração de referência (ETo).
II. Para dado instante e local, medindo-se a ETc e a ETo para as mesmas condições meteorológicas, o Kc é obtido pela relação: Kc= ETc/ETo
.
III. O coeficiente de cultura (Kc) é determinado por cálculos complexos, não variando com a cultura, com seu estágio de desenvolvimento, com o clima e práticas agronômicas adotadas.
III. O coeficiente de cultura (Kc) é determinado por cálculos complexos, não variando com a cultura, com seu estágio de desenvolvimento, com o clima e práticas agronômicas adotadas.
IV. O coeficiente de cultura (Kc) não expressa o quanto da superfície do solo é coberta pela vegetação (índice de área foliar).
V. O coeficiente de cultura (Kc) é um coeficiente independente das características da área foliar, da deficiência de água no solo e do molhamento da superfície do solo, apresentando baixo significado físico e biológico.
Estão corretos, apenas:
Provas
Questão presente nas seguintes provas
Dentre as várias atividades que o assistente social desempenha, inclui-se a administração de benefícios. Constatada a situação na qual um determinado programa da instituição em que trabalha viola um preceito legal, assinale a alternativa que corresponde à atitude ética do assistente social, segundo o Código de Ética Profissional.
Provas
Questão presente nas seguintes provas
O Decreto nº 5154/2004 trata da Educação Profissional e, segundo esse Decreto, uma das formas de articulação da Educação Profissional Técnica de Nível Médio com o Ensino Médio é o Ensino Integrado. Este é oferecido SOMENTE a quem
Provas
Questão presente nas seguintes provas
Quais as principais características da síndrome Obsessivo-Compulsiva, do ponto de vista da psicopatologia?
Provas
Questão presente nas seguintes provas
Qual das alternativas abaixo especifica, do ponto de vista da delimitação técnica, o principal objetivo de uma psicoterapia de apoio?
Provas
Questão presente nas seguintes provas
O modelo curricular de base interdisciplinar exige mudança de postura, atitude, procedimento, por parte dos educadores, pois a especificidade de cada conteúdo precisa ser garantida paralelamente à sua integração num todo harmonioso e significativo.
Nesse contexto, analise as características que podem ser apontadas como fundamentos para transformação curricular num modelo interdisciplinar e assinale V(verdadeiras) e F(falsas) nas assertivas abaixo.
( ) Valorizar o trabalho em parceria, em equipe, estabelecendo pontos de contato entre as diversas disciplinas e atividades do currículo.
( ) Trabalhar com a pedagogia dos projetos, garantindo a integração de conteúdos, aproximando-os da realidade dos estudantes.
( ) Organizar o trabalho pedagógico por disciplinas diversas, sem relação aparente entre elas, o que leva à justaposição de conteúdos.
( ) Dinamizar a coordenação por área, propondo uma revisão curricular, analisando e refazendo os programas em conjunto, começando pelo confronto dos planos das diversas disciplinas.
( ) Organizar o currículo de forma orgânica, superando a descontextualização das disciplinas estanques, revigorando a integração e a articulação dos conhecimentos em uma abordagem relacional de complementariedade e interconexões.
A ordem correta da sequência, de cima para baixo, é:
Provas
Questão presente nas seguintes provas
Segundo Silva (2001), a avaliação de políticas e programas sociais deve ser percebida na relação dialética de duas dimensões a ela inerentes: a dimensão técnica e a dimensão política. Nesse sentido, a avaliação de políticas e programas sociais é orientada por intencionalidades, sua dimensão política, e por um conjunto de procedimentos científicos que a qualificam como
Provas
Questão presente nas seguintes provas
Cadernos
Caderno Container