Foram encontradas 40 questões.
- Legislação EspecialLei 11.340/2006: Lei Maria da PenhaDa Violência Doméstica e Familiar Contra a Mulher
Conforme a Lei Maria da Penha, Lei nº 11.340/2006, existem diversas formas de violência contra a mulher. Segundo a referida Lei, a diminuição da autoestima e a vigilância constante são compreendidas como violência:
Provas
- Legislação EspecialLei 11.340/2006: Lei Maria da PenhaDos ProcedimentosCapítulo II - Das Medidas Protetivas de Urgência
Segundo a Lei Maria da Penha, Lei nº 11.340/2006, Art. 24, para a proteção patrimonial dos bens da sociedade conjugal ou daqueles de propriedade particular da mulher, o juiz poderá determinar, liminarmente, as seguintes medidas, EXCETO:
Provas
De acordo com a NBR 6118/2024, a letra minúscula w refere-se ao(à):
Provas
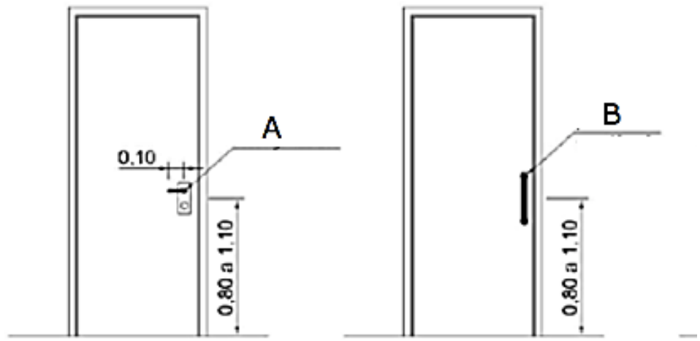
De acordo com a NBR 9050/2020, as letras A e B da imagem abaixo referem-se respectivamente a:

Provas
Segundo a NBR 15270-1/2023, a imagem abaixo apresenta um tijolo do tipo:

Provas
Sobre os requisitos para os sistemas hidrossanitários elencados na NBR 15575-6/2021, analise as assertivas abaixo:
I. Ponto de utilização é a extremidade a jusante do sub-ramal a partir de onde a água passa a ser considerada água para uso.
II. A fonte de abastecimento de água é dada somente pela rede pública da concessionária.
III. Calha é o canal que recolhe a água de coberturas, terraços e similares e a conduz ao condutor vertical.
Quais estão corretas?
Provas
Conforme o Estatuto Nacional de Igualdade Racial, Lei nº 12.288/2010, constituem objetivos da Política Nacional de Saúde Integral da População Negra, EXCETO:
Provas
A Constituição Federal prevê, em seu Art. 206, que o ensino será ministrado com base em alguns princípios, entre eles:
I. Liberdade de aprender, ensinar, pesquisar e divulgar o pensamento, a arte e o saber.
II. Pluralismo de ideias e de concepções pedagógicas e coexistência de instituições públicas e privadas de ensino.
III. Garantia do direito à educação e à aprendizagem ao longo da vida.
Quais estão corretos?
Provas
A Constituição Estadual do Rio Grande do Sul prevê que os deputados serão submetidos a julgamento perante o(a):
Provas
Conforme a Constituição Federal, Art. 225, § 4º, que trata sobre o meio ambiente, são patrimônios nacionais, EXCETO:
Provas
Caderno Container