Foram encontradas 865 questões.
O procedimento de se verificar diariamente a temperatura nos barramentos de um dispositivo de Controle e Comando de Motores (CCM) de baixa tensão caracteriza manutenção do tipo
Provas
São instrumentos de comunicação institucional:
Provas
A NR07 estabelece diretrizes e parâmetros mínimos para avaliação e acompanhamento da audição em trabalhadores expostos a níveis de pressão sonora elevados. Sobre os exames audiométricos, marque V para as afirmativas verdadeiras e F para as falsas.
( ) No exame audiométrico de referência, o trabalhador permanecerá em repouso auditivo por um período mínimo de 14 horas até o momento de realização desse exame.
( ) O exame audiométrico será executado por profissional habilitado, a saber: médico, fonoaudiólogo, engenheiro de segurança ou técnico de segurança do trabalho, conforme resoluções dos respectivos conselhos federais profissionais.
( ) O exame audiométrico será realizado, no mínimo, no momento da admissão, no 6º (sexto) mês após a admissão, anualmente a partir de então, e na demissão.
( ) São considerados dentro dos limites aceitáveis, para efeito de caráter preventivo, os casos cujos audiogramas mostram limiares auditivos menores ou iguais a 25 dB(NA), em todas as frequências examinadas.
Assinale a sequência correta.
Provas
- Linguagens e Suportes MidiáticosProdução AudiovisualRoteiro, Produção e Edição de Conteúdo Audiovisual e Cinematográfico
A implantação da tecnologia digital nas fases de produção e pós-produção trouxe mais rapidez e agilidade na transferência do material produzido para a ilha de edição. Porém a diversidade de padrões e formatos trouxe novos problemas relacionados ao manuseio dos arquivos. Entre esses problemas, é correto citar:
Provas
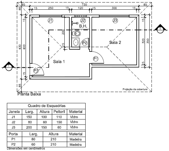
Analise a figura e o quadro abaixo para responder à questão.

Considerando a distância do piso ao teto acabados igual a 3,0 m, analise as afirmativas abaixo.
I - A área total de piso do projeto é aproximadamente 24,5 m2.
II - A área de azulejo do banheiro, desconsiderando as aberturas, é 19,2 m2.
III - A área de vidro das esquadrias é inferior a 4,5 m2.
Está correto o que se afirma em
Provas
Disciplina: Administração Financeira e Orçamentária
Banca: UFMT
Orgão: UFT
Os princípios orçamentários equivalem a maneiras para obter a transparência do orçamento público e facilitar seu controle e avaliação. Os princípios fundamentais ou clássicos são aceitos pela maioria dos países. Já os princípios operacionais têm como objetivo tornar o orçamento mais racional e eficiente. Marque a alternativa que apresenta os princípios operacionais.
Provas
A história do jornalismo brasileiro foi construída pelas realizações de jornalistas reconhecidos pelos seus feitos. A esse respeito, numere a coluna de acordo com as informações.
1 - Assis Chateaubriand
2 - Samuel Weiner
3 - Carlos Lacerda
4 - Américo Brasiliense
5 - Hipólito José da Costa
6 - José Hamilton Ribeiro
( ) Ligado ao grupo de republicanos que fundou o jornal A Província de São Paulo, em 1875, hoje O Estado de S. Paulo.
( ) Fundador do Correio Braziliense, em 1808, primeiro jornal brasileiro, editado em Londres.
( ) Inaugurou a primeira emissora de televisão brasileira, em 1950, a TV Tupi.
( ) Único repórter da América do Sul a cobrir o julgamento de generais nazistas em Nuremberg, em 1945.
( ) Fundador da Tribuna da Imprensa, em 1949, jornal que notabilizou-se por forte oposição à política de Getúlio Vragas.
( ) Em reportagem na Revista Realidade, ele narrou seu próprio drama ao ser atingido por uma explosão na Guerra do Vietnã, em 1968.
Assinale a sequência correta.
Provas
A respeito das doenças transmitidas por carrapatos, pode-se afirmar:
Provas
Em relação ao posicionamento radiográfico de aves e animais silvestres, é INCORRETO afirmar:
Provas
Visando à apuração de infração ética imputada a agente público, órgão ou setor específico de ente estatal, podem provocar a atuação da Comissão de Ética Pública ou da Comissão de Ética, nos termos do Decreto N.º 6.029/2007:
Provas
Caderno Container