Foram encontradas 45 questões.
Por ser feito em escala reduzida e por abranger áreas relativamente extensas, o desenho arquitetônico nos obriga a recorrer a símbolos gráficos. Analise estas afirmações:
I. Paredes altas a serem construídas são representadas por dois traços cheios, paralelos e grossos.
II. A projeção do beiral de telhado em cerâmica sempre se representa com linha fina e cheia.
III. Os compartimentos representados na planta de arquitetura devem ser obrigatoriamente identificados.
IV. As esquadrias acima do plano secante horizontal são representadas com linhas tracejadas.
V. Todos os degraus de uma escada são representados, em planta, por linhas tracejadas.
É/São CORRETAS a(s) afirmativa(s):
Provas
Questão presente nas seguintes provas
SORRIA
A substituição do homem pela máquina segue em ritmo acelerado. São máquinas que atendem ao telefone de muitas empresas. Isto é melhor para o cliente? Nem sempre. É mais barato para a empresa? Provavelmente sim. O que é certo é que elimina empregos de atendentes ao mesmo tempo em que gera empregos técnicos. Produz as adoradas estatísticas, que regem o mundo corporativo, sejam sensatas ou não.
Hoje ouvimos uma frase onipresente: “Para sua segurança esta ligação poderá ser gravada”. É uma versão rústica de outra mensagem frequente nos EUA: “Para controle de qualidade do nosso atendimento esta ligação poderá ser monitorada”.
Por que gravam nossas ligações? De que segurança estão falando? Estão querendo nos proteger ou proteger a eles mesmos? Se é para nos proteger, por que não facilitam o nosso acesso a tais gravações?
O paralelo mais óbvio às gravações de voz são as câmeras de segurança. No mundo da espionagem institucionalizada, a comunicação evoluiu para algo mais simpático e menos ameaçador. “Sorria. Você está sendo filmado.”
As câmeras são instaladas para flagrar furtos, roubos e outros crimes. Mas, ao ler essa frase, o cidadão pode se sentir um ator de cinema e realmente sorrir, esquecendo um instante que o motivo da filmagem é desconfiança e repressão.
Nas últimas semanas, um colégio tradicional paulistano instalou câmeras dentro de salas de aula. Não, não eram berçários dos quais pais aflitos, desconfiados ou culpados vigiam bebês e profissionais à distância. Era uma escola de elite que num só dia suspendeu 107 alunos do ensino médio que resolveram protestar quando descobriram as câmeras.
Questionada, a direção da escola alegou razões de segurança e disciplina. O fato de já haver câmeras em laboratórios [...] fez com que a escola não se preocupasse em discutir o tema com pais e alunos antes de instalar os olhos de vidro em todas as salas de aula.
Parte dos pais aprovou a medida, mas especialistas levantaram a voz para questionar que tipo de educação se desenvolve com base em desconfiança mútua. Outros questionaram o direito de uma escola filmar menores sem aval dos pais.
A ideia é do final do século 18 e foi concebida pelo filósofo e jurista inglês Jeremy Bentham. Ganhou o nome de poder panóptico: a consciência da permanente visibilidade asseguraria o funcionamento de um poder autoritário, como uma prisão, um manicômio, uma empresa ou uma escola. A única novidade é a banalização do instrumento.
Panopticon é o nome de uma estrutura arquitetônica concebida para permitir a observação de tudo o que se passa num edifício sem que as pessoas a serem observadas saibam se estão sendo vigiadas. A simples possibilidade de estarem sendo vigiadas regularia o comportamento delas. O desenho consiste numa estrutura circular com uma torre de inspeção no centro, de onde o inspetor oculto poderia avistar todos os que estiverem no perímetro do edifício. Ele descreveu o projeto como um novo modo de obter poder da mente sobre a mente, numa quantidade até então sem paralelo.
STRECKER, Marion. Folha de S.Paulo. São Paulo, 15 out.2012. TEC, F8.[Fragmento]
Quanto aos recursos linguísticos empregados, é CORRETO afirmar que
Provas
Questão presente nas seguintes provas
A imagem a seguir mostra um detalhe de um dos projetos das instalações prediais.

Assinale a alternativa CORRETA que define o tipo de projeto.
Provas
Questão presente nas seguintes provas
SORRIA
A substituição do homem pela máquina segue em ritmo acelerado. São máquinas que atendem ao telefone de muitas empresas. Isto é melhor para o cliente? Nem sempre. É mais barato para a empresa? Provavelmente sim. O que é certo é que elimina empregos de atendentes ao mesmo tempo em que gera empregos técnicos. Produz as adoradas estatísticas, que regem o mundo corporativo, sejam sensatas ou não.
Hoje ouvimos uma frase onipresente: “Para sua segurança esta ligação poderá ser gravada”. É uma versão rústica de outra mensagem frequente nos EUA: “Para controle de qualidade do nosso atendimento esta ligação poderá ser monitorada”.
Por que gravam nossas ligações? De que segurança estão falando? Estão querendo nos proteger ou proteger a eles mesmos? Se é para nos proteger, por que não facilitam o nosso acesso a tais gravações?
O paralelo mais óbvio às gravações de voz são as câmeras de segurança. No mundo da espionagem institucionalizada, a comunicação evoluiu para algo mais simpático e menos ameaçador. “Sorria. Você está sendo filmado.”
As câmeras são instaladas para flagrar furtos, roubos e outros crimes. Mas, ao ler essa frase, o cidadão pode se sentir um ator de cinema e realmente sorrir, esquecendo um instante que o motivo da filmagem é desconfiança e repressão.
Nas últimas semanas, um colégio tradicional paulistano instalou câmeras dentro de salas de aula. Não, não eram berçários dos quais pais aflitos, desconfiados ou culpados vigiam bebês e profissionais à distância. Era uma escola de elite que num só dia suspendeu 107 alunos do ensino médio que resolveram protestar quando descobriram as câmeras.
Questionada, a direção da escola alegou razões de segurança e disciplina. O fato de já haver câmeras em laboratórios [...] fez com que a escola não se preocupasse em discutir o tema com pais e alunos antes de instalar os olhos de vidro em todas as salas de aula.
Parte dos pais aprovou a medida, mas especialistas levantaram a voz para questionar que tipo de educação se desenvolve com base em desconfiança mútua. Outros questionaram o direito de uma escola filmar menores sem aval dos pais.
A ideia é do final do século 18 e foi concebida pelo filósofo e jurista inglês Jeremy Bentham. Ganhou o nome de poder panóptico: a consciência da permanente visibilidade asseguraria o funcionamento de um poder autoritário, como uma prisão, um manicômio, uma empresa ou uma escola. A única novidade é a banalização do instrumento.
Panopticon é o nome de uma estrutura arquitetônica concebida para permitir a observação de tudo o que se passa num edifício sem que as pessoas a serem observadas saibam se estão sendo vigiadas. A simples possibilidade de estarem sendo vigiadas regularia o comportamento delas. O desenho consiste numa estrutura circular com uma torre de inspeção no centro, de onde o inspetor oculto poderia avistar todos os que estiverem no perímetro do edifício. Ele descreveu o projeto como um novo modo de obter poder da mente sobre a mente, numa quantidade até então sem paralelo.
STRECKER, Marion. Folha de S.Paulo. São Paulo, 15 out.2012. TEC, F8.[Fragmento]
O objetivo principal do texto é
Provas
Questão presente nas seguintes provas
No Brasil, atualmente, os projetos de arquitetura são executados, na sua maioria, no Programa AutoCAD e arquivados eletronicamente. Caso haja necessidade de cópias em papel, estas devem ser dobradas para facilitar o manuseio. De acordo com a Norma NBR 6492/ 1994, é CORRETO afirmar que a dobradura final dos desenhos deve ter o tamanho de
Provas
Questão presente nas seguintes provas
O desenho a seguir faz parte do levantamento topográfico de uma área externa. As curvas de nível definem graficamente

Provas
Questão presente nas seguintes provas
A ilustração a seguir representa a planta parcial de um cômodo e um corte. As medidas estão em centímetros.

Somente a parede, que contém uma porta e uma janela, deve ser pintada. Qual é a sua área?
Provas
Questão presente nas seguintes provas
Analise e responda a questão, de acordo com Lei nº 8.112, de 11/12/1990 e suas alterações.
Assinale a alternativa INCORRETA.
Provas
Questão presente nas seguintes provas
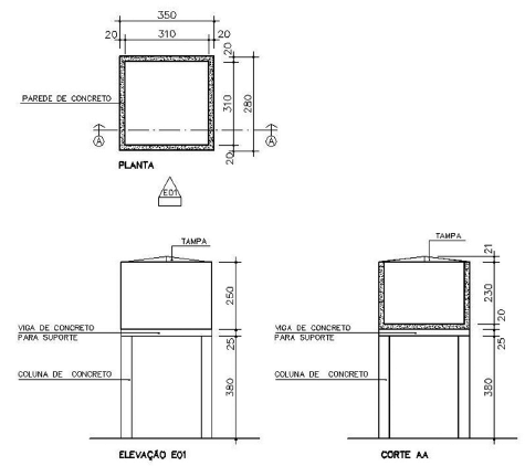
O desenho a seguir representa um reservatório em concreto armado para a água potável, apoiado sobre vigas e colunas também de concreto, com as medidas em centímetros.

Qual é o volume de água que o reservatório comporta, considerando a altura interna desde o piso até a tampa?
Provas
Questão presente nas seguintes provas
O Programa AutoCAD proporciona gerar novos elementos gráficos aproveitando os existentes. Os desenhos apresentados indicam que uma parte do projeto foi reaproveitada na sua totalidade.

Que comando do Programa AutoCAD possibilita gerar outros elementos de forma espelhada?
Provas
Questão presente nas seguintes provas
Cadernos
Caderno Container