Foram encontradas 60 questões.
A manutenção industrial tem um papel fundamental para o bom funcionamento dos ativos das empresas. Alguns autores classificam os tipos de manutenção em corretiva, preditiva, preventiva e TPM. A TPM significa:
Provas
Questão presente nas seguintes provas
Com relação à 1ª de Lei de Ohm, é correto afirmar:
Provas
Questão presente nas seguintes provas
Que número positivo é uma unidade maior que seu inverso?
Provas
Questão presente nas seguintes provas
Um técnico industrial necessita calcular o diâmetro menor de um parafuso (d1) para uma rosca de diâmetro externo (d) de 20 mm e passo (p) de 2,5 mm, a rosca é do tipo triangular métrica normal. Qual o resultado aproximado obtido?
Provas
Questão presente nas seguintes provas
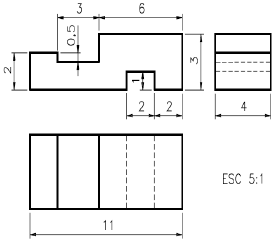
O uso de escalas em desenhos é muito utilizado. A figura abaixo apresenta a escala 5:1; isso significa dizer que

Provas
Questão presente nas seguintes provas
Machos são ferramentas usadas para a fabricação de roscas internas. Observando os machos com passo no sistema Inglês de unidades e os procedimentos para execução dessas roscas, e, dadas as afirmativas abaixo,
I. O ângulo dos filetes da rosca é de 60º.
II. A broca usada para fazer o furo onde a rosca será produzida deve ser igual ao Diâmetro externo do parafuso menos 1,2 vezes o passo da rosca, ou seja, !$ D_{broca}= D_{externo \, parafuso} !$ – 1,2 x Passo.
III. A altura do filete é dada por H = 0,64033 x Passo da rosca.
verifica-se que está(ão) correta(s) apenas
Provas
Questão presente nas seguintes provas
Num circuito elétrico, o valor eficaz da tensão (elétrica) é igual
Provas
Questão presente nas seguintes provas
Existem várias técnicas e métodos para medição de dureza dos metais, cada uma das técnicas usa um penetrador característico, de acordo com o material ensaiado, profundidade da camada de material que se deseja conhecer a dureza, dentre outras variáveis. O penetrador corretamente usado para medir a dureza na escala Rockwell C é um(a)
Provas
Questão presente nas seguintes provas
Com relação à 2ª de Lei de Ohm, dadas as afirmativas sobre a resistência de um condutor,
I. Depende do tipo do material com que o condutor é fabricado.
II. É proporcional à área da seção transversal do condutor.
III. É proporcional ao comprimento do condutor.
verifica-se que está(ão) correta(s) apenas
Provas
Questão presente nas seguintes provas
A montagem em corte apresentada na figura abaixo é composta por um garfo, uma chapa e um parafuso. Nessa montagem, o parafuso está submetido somente a esforço de cisalhamento “Q”, que é de 3kN, e a tensão cisalhante é de 15 MPa. Qual deve ser a área da seção transversal do parafuso para suportar o esforço ao qual está submetido?

Provas
Questão presente nas seguintes provas
Cadernos
Caderno Container