Foram encontradas 70 questões.
Texto 2 para responder a questão.

AGOSTINHO, Marcos. Patrimônio Arquitetônico. Disponível em:
<http://www.cultura.gov.br/noticias-iphan1//asset_publisher/QRV5ft
QkjXuV/content/patrimonio-arqueologico-548132/11061?
redirect=http%3A%2F%2Fwww.cultura.gov.br%2
Fnoticias>. Acesso em: 19/11/2013, com adaptações.
Provas
Texto 2 para responder a questão.

AGOSTINHO, Marcos. Patrimônio Arquitetônico. Disponível em:
<http://www.cultura.gov.br/noticias-iphan1//asset_publisher/QRV5ft
QkjXuV/content/patrimonio-arqueologico-548132/11061?
redirect=http%3A%2F%2Fwww.cultura.gov.br%2
Fnoticias>. Acesso em: 19/11/2013, com adaptações.
Provas
Provas
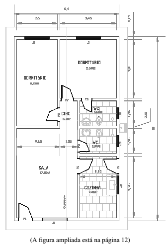
Observe a planta baixa de uma residência térrea com pé-direito igual a 2,80 m.

Com base na planta baixa apresentada, assinale a alternativa que indica a quantidade de argamassa para assentamento de azulejo nas áreas laváveis da residência, considerando a espessura de 2 cm e revestimento até o teto e desprezando-se as áreas dos vãos.
Provas
- Organização do EstadoOrganização do Estado: Municípios
- Organização dos PoderesRepartição de Competências Constitucionais
Provas
Provas
Provas
Provas
Provas
Provas
Caderno Container