Foram encontradas 186 questões.
- AcessibilidadeAcessibilidade e Desenho Universal
- AcessibilidadeDimensionamentos Mínimos
- AcessibilidadeEquipamentos e Mobiliários
Com relação ao item 8 da NBR 9050, que trata dos equipamentos urbanos, julgue os itens a seguir.
I Em cinemas, as distâncias mínimas para a localização dos espaços para pessoa em cadeira de rodas (PCR) e os assentos para pessoa com mobilidade reduzida (PMR) devem ser calculados traçando-se um ângulo visual de, no máximo, 30º (tan 30º = 0,58 m), a partir do limite superior da tela até a linha do horizonte visual com altura de 1,15 m do piso. Considerando essa regra, se a primeira fila estiver localizada a 4,30 m da tela e a PMR sentar-se na primeira fileira, a tela deverá ter, aproximadamente, 2,5 m de altura, e seu limite inferior deverá estar localizado a 1,15 m do piso.
II Os assentos para pessoa obesa (PO) devem ter largura equivalente à de dois assentos e possuir um espaço livre frontal de, no mínimo, 0,60 m. Esses assentos devem suportar uma carga de, no mínimo, de 250 kg.
III Quando houver desnível entre o palco e a plateia, esse desnível poderá ser vencido por uma rampa com inclinação máxima de 1:6 (16,66%) para vencer uma altura máxima de 0,60 m; essa rampa poderá, ainda, ser substituída por um equipamento eletromecânico.
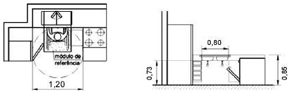
IV Nas cozinhas acessíveis, as pias devem possuir altura de, no mínimo, 0,85 m com altura livre inferior de, no máximo, 0,73 m, além de um raio de giro de, no mínimo, 1,20 m em planta para a cadeira de rodas, conforma ilustrado abaixo.

V Em auditórios com capacidade acima de 1.000 lugares, a distribuição dos assentos especiais deve respeitar o disposto na tabela abaixo.

Estão certos apenas os itens
I Em cinemas, as distâncias mínimas para a localização dos espaços para pessoa em cadeira de rodas (PCR) e os assentos para pessoa com mobilidade reduzida (PMR) devem ser calculados traçando-se um ângulo visual de, no máximo, 30º (tan 30º = 0,58 m), a partir do limite superior da tela até a linha do horizonte visual com altura de 1,15 m do piso. Considerando essa regra, se a primeira fila estiver localizada a 4,30 m da tela e a PMR sentar-se na primeira fileira, a tela deverá ter, aproximadamente, 2,5 m de altura, e seu limite inferior deverá estar localizado a 1,15 m do piso.
II Os assentos para pessoa obesa (PO) devem ter largura equivalente à de dois assentos e possuir um espaço livre frontal de, no mínimo, 0,60 m. Esses assentos devem suportar uma carga de, no mínimo, de 250 kg.
III Quando houver desnível entre o palco e a plateia, esse desnível poderá ser vencido por uma rampa com inclinação máxima de 1:6 (16,66%) para vencer uma altura máxima de 0,60 m; essa rampa poderá, ainda, ser substituída por um equipamento eletromecânico.
IV Nas cozinhas acessíveis, as pias devem possuir altura de, no mínimo, 0,85 m com altura livre inferior de, no máximo, 0,73 m, além de um raio de giro de, no mínimo, 1,20 m em planta para a cadeira de rodas, conforma ilustrado abaixo.

V Em auditórios com capacidade acima de 1.000 lugares, a distribuição dos assentos especiais deve respeitar o disposto na tabela abaixo.

Estão certos apenas os itens
Provas
Questão presente nas seguintes provas

Com relação à ergonomia e considerando as figuras acima, que mostram uma estação de trabalho na escala de um computador e dois leiautes na escala de cozinhas industriais, assinale a opção correta.
Provas
Questão presente nas seguintes provas
Com relação à teoria da Gestalt, assinale a opção correta.
Provas
Questão presente nas seguintes provas
Em relação à Lei n.º 8.429/1992, que dispõe sobre improbidade administrativa, assinale a opção correta.
Provas
Questão presente nas seguintes provas
Com base na Lei n.º 8.666/1993 e em suas posteriores alterações, assinale a opção correta.
Provas
Questão presente nas seguintes provas

Provas
Questão presente nas seguintes provas
Cadernos
Caderno Container