Foram encontradas 40 questões.
Como tratamento de proteção de entrada de água de precipitação em uma laje de cobertura de 25m x 45m de um prédio residencial, recomenda-se que esta laje
Provas
Questão presente nas seguintes provas
Considere as seguintes afirmações com relação ao canteiro de obra.
I - O elevador de obra pode ser usado tanto para transporte de materiais e equipamentos, como de operários, desde que separadamente.
II - O elevador, a cabo ou cremalheira, deve ser colocado, preferencialmente, na fachada frontal da edificação.
III - Atualmente, existe uma tendência à utilização de andaime fachadeiro durante a execução da estrutura de concreto, por representar uma proteção passiva aos operários; porém, sua utilização não dispensa a exigência de que se faça, concomitantemente, a montagem da linha de vida, uma vez que essa é uma forma de proteção ativa.
Quais estão corretas?
Provas
Questão presente nas seguintes provas
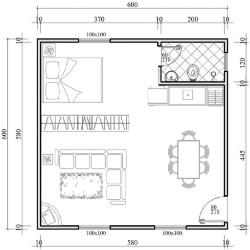
Observe a figura abaixo.

A quantidade de blocos cerâmicos de 6 furos (9x14x24cm), assentados com furos na horizontal, para elevar as paredes da edificação representada na planta baixa acima, considerando um pé direito de 2,80m, uma espessura de argamassa de 1cm nas juntas horizontais e junta seca na vertical, sem descontar os vãos das esquadrias, é de aproximadamente
Provas
Questão presente nas seguintes provas
Considere as seguintes afirmações com relação ao armazenamento de materiais em obra.
I - Uma forma de evitar a corrosão das barras de aço durante a obra é armazená-las em local aberto, arejadas e afastadas do solo.
II - Os sacos de cimento, por serem de papel, devem ser armazenados em local coberto e fechado, afastados do solo, por períodos inferiores a 7 dias, em pilhas de no máximo 25 sacos.
III - Os blocos cerâmicos podem ser estocados em local aberto, desde que por um período inferior a dois meses.
Quais estão corretas?
Provas
Questão presente nas seguintes provas
Considere as seguintes afirmações com relação ao dimensionamento de peças de concreto armado.
I - O domínio 4 é caracterizado por ruptura do concreto à compressão e aço tracionado sem escoamento. Peças dimensionadas nesse domínio apresentam ruptura frágil, independentemente da existência de armadura de compressão.
II - A capacidade de rotação de elementos estruturais é função da posição da linha neutra (x) no estado limite último. Para proporcionar o adequado comportamento dútil em vigas e lajes, a posição da linha neutra deverá ser maior que 0,45d para concretos com fck<=50MPa, onde d é a altura útil da seção transversal.
III - Para a consideração do estado limite último, a análise de esforços em lajes pode ser realizada através da teoria de charneiras plásticas. Para lajes retangulares, pode ser adotada uma razão mínima de 1:1 entre os momentos de borda (com continuidade e apoio indeslocável) e momentos no vão.
Quais estão corretas?
Provas
Questão presente nas seguintes provas
- UniãoExecutivoDecreto 1.171/1994: Código de Ética do Servidor Público Civil do Poder Executivo Federal
Conforme o Decreto nº 1.171/94, que aprovou o Código de Ética do Servidor Público Civil do Poder Executivo Federal, assinale a afirmativa que NÃO contempla dever fundamental do servidor público.
Provas
Questão presente nas seguintes provas
Para minimizar a ocorrência de fissuras em edificações vizinhas, em função de impactos e vibrações, a melhor opção técnica do ponto de vista de tipologia de fundações, é estaca
Provas
Questão presente nas seguintes provas
Considere as afirmativas abaixo, relativas ao Programa de Avaliação de Desempenho, conforme o Decreto nº 7.825/2006.
I - A aplicação do processo de avaliação de desempenho deverá ocorrer no mínimo uma vez por ano, ou em etapas necessárias a compor a avaliação anual, de forma a atender à dinâmica de funcionamento da Instituição Federal de Ensino – IFE.
II - Participarão do processo de avaliação, os superiores hierárquicos do servidor avaliado.
III - Os instrumentos a serem utilizados para a avaliação de desempenho deverão ser estruturados com base no princípio da subjetividade, observando-se sempre as peculiaridades de cada servidor.
Quais estão corretas?
Provas
Questão presente nas seguintes provas
Considere as afirmativas abaixo, tendo em vista as disposições do Decreto nº 5.707/2006.
I - São considerados eventos de capacitação: cursos presenciais e a distância, aprendizagem em serviço, grupos formais de estudos, intercâmbios, estágios, seminários e congressos, que contribuam para o desenvolvimento do servidor e que atendam aos interesses da administração pública federal direta, autárquica e fundacional.
II - Após cada triênio de efetivo exercício, o servidor poderá solicitar ao dirigente máximo do órgão ou da entidade onde se encontrar em exercício licença remunerada, por até três meses, para participar de ação de capacitação.
III - A licença para capacitação não poderá ser parcelada.
Quais estão corretas?
Provas
Questão presente nas seguintes provas
Considere as afirmativas abaixo, tendo em vista as disposições da Constituição Federal.
I - É garantido ao servidor público o direito à livre associação sindical.
II - Os vencimentos dos cargos do Poder Legislativo e do Poder Judiciário poderão ser superiores aos pagos pelo Poder Executivo.
III - A lei estabelecerá os prazos de prescrição para ilícitos praticados por qualquer agente, servidor ou não, que causem prejuízos ao erário, ressalvadas as respectivas ações de ressarcimento.
Quais estão corretas?
Provas
Questão presente nas seguintes provas
Cadernos
Caderno Container