Foram encontradas 50 questões.
Considere uma obra com a composição de custos descrita a seguir.
- Custo direto da obra = R$ 1.500,00
- Custo indireto da obra = R$ 500,00
- Custo da administração central = R$ 250,00
- Impostos = R$ 200,00
- Lucro = R$ 100,00
A alternativa que apresenta corretamente o percentual do BDI é
Provas
Questão presente nas seguintes provas
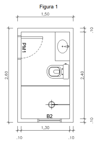
Considere as seguintes informações referentes à planta baixa do banheiro apresentada na Figura 1:
Dados de projeto: PM1 Porta em madeira 0,60x2,10m; B2 Balancim em alumínio e vidro 0,6x0,6m; Pé
direito 2,60m. Para o cálculo, efetue o desconto integral dos vãos, quando necessário.

Com base na leitura da planta baixa do banheiro apresentada na Figura 1, é correto afirmar:

Com base na leitura da planta baixa do banheiro apresentada na Figura 1, é correto afirmar:
Provas
Questão presente nas seguintes provas
Segundo a ABNT NBR 8160, que trata do projeto e execução de sistemas prediais de esgoto sanitário,
é necessária a execução de um prolongamento do tubo de queda acima do ramal mais alto a ele ligado
e com extremidade superior aberta à atmosfera situada acima da cobertura do prédio. Isto evita a
propagação de mau cheiro na edificação devido à eliminação do fecho hídrico de dispositivos sifonados.
Este dispositivo de prolongamento é denominado
Provas
Questão presente nas seguintes provas
- Edificações
- Estruturas
- Gerenciamento, Planejamento e Controle de Obras
- Resistência dos Materiais e Análise EstruturalEstruturas de Concreto
- Materiais de Construção Civil
- Orçamento no Planejamento e Controle de Obras na Engenharia Civil
Ao executar um orçamento de obras de concreto armado, um engenheiro usou a composição unitária
apresentada na Tabela 2 para o serviço de armação de sapata, utilizando aço CA-60 de 5 mm.
Considerando a composição apresentada e que são necessários 100 kg de aço 5 mm para o referido serviço de armação de sapata, analise as seguintes afirmativas.
I. A equipe de armação possui a proporção de 1 armador para 1 servente.
II. São necessários 105 kg de aço 5 mm para a execução do serviço.
III. Para a execução do serviço em 20 horas trabalhadas, são necessários 02 armadores e 01 ajudante.
IV. O custo total do serviço de armação é de R$1.259,00.
Está(ão) correta(s)
Considerando a composição apresentada e que são necessários 100 kg de aço 5 mm para o referido serviço de armação de sapata, analise as seguintes afirmativas.
I. A equipe de armação possui a proporção de 1 armador para 1 servente.
II. São necessários 105 kg de aço 5 mm para a execução do serviço.
III. Para a execução do serviço em 20 horas trabalhadas, são necessários 02 armadores e 01 ajudante.
IV. O custo total do serviço de armação é de R$1.259,00.
Está(ão) correta(s)
Provas
Questão presente nas seguintes provas
Uma empresa está responsável pela execução de uma obra pública composta por 5 etapas. O
planejamento físico e os valores de cada etapa estão representados na Tabela 1.

Com base no cronograma apresentado, avalie as seguintes afirmativas.
I. O mês que apresenta o maior desempenho planejado é o 4º mês.
II. Apenas no 2º mês é previsto um gasto de R$ 20.000,00.
III. Ao final do 3º mês, é planejado um gasto acumulado de R$ 60.000,00.
IV. O desempenho planejado da obra ao final do 5º mês é superior a 95%.
Está(ão) correta(s)

Com base no cronograma apresentado, avalie as seguintes afirmativas.
I. O mês que apresenta o maior desempenho planejado é o 4º mês.
II. Apenas no 2º mês é previsto um gasto de R$ 20.000,00.
III. Ao final do 3º mês, é planejado um gasto acumulado de R$ 60.000,00.
IV. O desempenho planejado da obra ao final do 5º mês é superior a 95%.
Está(ão) correta(s)
Provas
Questão presente nas seguintes provas
A ABNT NBR 8160, que trata do projeto e execução de sistemas prediais de esgoto sanitário, define
algumas regras/critérios/características em relação aos desconectores. Quanto a essas
regras/critérios/características, analise as afirmativas seguintes.
I. As caixas sifonadas que coletam despejos de mictórios devem ter tampas cegas e podem receber contribuições de outros aparelhos sanitários, quando providos de desconector próprio.
II. Todos os aparelhos sanitários devem ser protegidos por desconectores.
III. Os despejos provenientes de máquinas de lavar roupas ou tanques situados em pavimentos sobrepostos devem ser descarregados em tubos de queda exclusivos com caixa sifonada especial instalada no seu final.
Está(ão) correta(s)
I. As caixas sifonadas que coletam despejos de mictórios devem ter tampas cegas e podem receber contribuições de outros aparelhos sanitários, quando providos de desconector próprio.
II. Todos os aparelhos sanitários devem ser protegidos por desconectores.
III. Os despejos provenientes de máquinas de lavar roupas ou tanques situados em pavimentos sobrepostos devem ser descarregados em tubos de queda exclusivos com caixa sifonada especial instalada no seu final.
Está(ão) correta(s)
Provas
Questão presente nas seguintes provas
A Resolução Conama (Conselho Nacional do Meio Ambiente) nº 307/2002 estabelece diretrizes, critérios
e procedimentos para a gestão dos resíduos da construção civil. Em relação à classificação dos
resíduos, analise as afirmativas seguintes.
I. Classe A são os resíduos reutilizáveis ou recicláveis.
II. Classe B são os resíduos para os quais não foram desenvolvidas tecnologias ou aplicações economicamente viáveis que permitam a sua reciclagem ou recuperação.
III. Classe C são os resíduos recicláveis para outras destinações.
IV. Classe D são resíduos perigosos oriundos do processo de construção, ou aqueles contaminados ou prejudiciais à saúde oriundos de demolições, além de materiais que contenham amianto ou outros produtos nocivos à saúde.
Estão corretas
I. Classe A são os resíduos reutilizáveis ou recicláveis.
II. Classe B são os resíduos para os quais não foram desenvolvidas tecnologias ou aplicações economicamente viáveis que permitam a sua reciclagem ou recuperação.
III. Classe C são os resíduos recicláveis para outras destinações.
IV. Classe D são resíduos perigosos oriundos do processo de construção, ou aqueles contaminados ou prejudiciais à saúde oriundos de demolições, além de materiais que contenham amianto ou outros produtos nocivos à saúde.
Estão corretas
Provas
Questão presente nas seguintes provas
Nos termos da Lei Geral de Proteção de Dados Pessoais (LGPD), Lei 13.709/2018, a disciplina da
proteção de dados tem como fundamento o(a)
Provas
Questão presente nas seguintes provas
No seu Art. 55, a Lei nº 14.133/2021 de Licitações e contratos administrativos estabelece os prazos
mínimos para apresentação de propostas e lances, contado a partir da data de divulgação do edital no
caso de serviços e obras. Em relação a esses prazos, analise as afirmativas seguintes.
I. 10 (dez) dias úteis, quando adotados os critérios de julgamento de menor preço ou de maior desconto, no caso de serviços comuns e de obras e serviços comuns de engenharia.
II. 25 (vinte e cinco) dias úteis, quando adotados os critérios de julgamento de menor preço ou de maior desconto, no caso de serviços especiais e de obras e serviços especiais de engenharia.
III. 60 (sessenta) dias úteis, quando o regime de execução for de contratação integrada.
IV. 35 (trinta e cinco) dias úteis, quando o regime de execução for o de contratação semi-integrada ou nas hipóteses não abrangidas pelas alíneas “a”, “b” e “c” deste inciso.
Está(ão) correta(as)
I. 10 (dez) dias úteis, quando adotados os critérios de julgamento de menor preço ou de maior desconto, no caso de serviços comuns e de obras e serviços comuns de engenharia.
II. 25 (vinte e cinco) dias úteis, quando adotados os critérios de julgamento de menor preço ou de maior desconto, no caso de serviços especiais e de obras e serviços especiais de engenharia.
III. 60 (sessenta) dias úteis, quando o regime de execução for de contratação integrada.
IV. 35 (trinta e cinco) dias úteis, quando o regime de execução for o de contratação semi-integrada ou nas hipóteses não abrangidas pelas alíneas “a”, “b” e “c” deste inciso.
Está(ão) correta(as)
Provas
Questão presente nas seguintes provas
A Lei nº 14.133/2021 de Licitações e Contratos Administrativos prevê no seu Art. 17 que o processo de
licitação observará as seguintes fases, em sequência:
I. Preparatória II. De divulgação do edital de licitação III. De apresentação de propostas e lances, quando for o caso IV. De julgamento V. De habilitação VI. Recursal VII. De homologação
Com relação às fases de um processo de licitação, é correto afirmar:
I. Preparatória II. De divulgação do edital de licitação III. De apresentação de propostas e lances, quando for o caso IV. De julgamento V. De habilitação VI. Recursal VII. De homologação
Com relação às fases de um processo de licitação, é correto afirmar:
Provas
Questão presente nas seguintes provas
Cadernos
Caderno Container