Magna Concursos

Foram encontradas 441 questões.

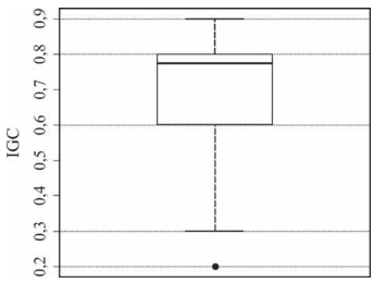
enunciado 857684-1

Com base na figura antecedente, que apresenta a distribuição dos indicadores de governança corporativa (IGC) observados em uma amostra de empresas prestadoras de serviços terceirizados, assinale a opção correta.

 

Provas

Questão presente nas seguintes provas

enunciado 857683-1

Tendo como referência o gráfico precedente, que mostra os valores, em bilhões de reais, relativos à arrecadação de receitas e aos gastos com despesas do estado do Paraná nos doze meses do ano de 2015, assinale a opção correta.
 

Provas

Questão presente nas seguintes provas
857682 Ano: 2016
Disciplina: Estatística
Banca: CESPE / CEBRASPE
Orgão: TCE-PR
Os métodos A e B utilizados na construção de casas populares proporcionam custos médios (por metro quadrado) respectivamente iguais a μA e μB, e variâncias populacionais enunciado 857682-1 e enunciado 857682-2 , respectivamente. Os custos seguem distribuições normais tais que enunciado 857682-3 enunciado 857682-4 . Em um estudo estatístico realizado para comparar esses custos médios mediante aplicação de um teste t de Student para comparação de duas médias, as hipóteses foram H0: μA = μB e H1: μA μB. O quadro a seguir apresenta informações a respeito desse estudo estatístico. enunciado 857682-5
Considerando-se as informações no quadro e que as amostras sejam independentes, é correto afirmar que o valor absoluto da estatística desse teste (|T|) é
 

Provas

Questão presente nas seguintes provas
857681 Ano: 2016
Disciplina: Estatística
Banca: CESPE / CEBRASPE
Orgão: TCE-PR
Em um teste estatístico para a média populacional μ, com nível de significância α = 5%, a hipótese nula H0 deverá ser rejeitada se enunciado 857681-1 > 30 ou se enunciado 857681-3 < 10, em que enunciado 857681-2 denota a média amostral. Supondo que a variância populacional seja conhecida e que o tamanho da amostra seja igual a 10, assinale a opção correta.
 

Provas

Questão presente nas seguintes provas
857680 Ano: 2016
Disciplina: Estatística
Banca: CESPE / CEBRASPE
Orgão: TCE-PR

Sabendo que Z segue uma distribuição normal padrão e que \( T_{n} \) segue uma distribuição t de Student com n graus de liberdade, assinale a opção correta.

 

Provas

Questão presente nas seguintes provas
857679 Ano: 2016
Disciplina: Estatística
Banca: CESPE / CEBRASPE
Orgão: TCE-PR

A quantidade de parcelas (X) escolhida por um cliente para o pagamento de determinado serviço é uma variável aleatória discreta com função de probabilidade \( P(X = k)= \large { 7 - k \over 21} \), para \( k \in \{1, \, 2, \, \cdots , \, 6 \} \), e \( P(X=k)=0 \), para \( k \notin \{1, \, 2, \, \cdots , \, 6\} \)

No que se refere a essa variável aleatória , assinale a opção correta.

 

Provas

Questão presente nas seguintes provas
857678 Ano: 2016
Disciplina: Estatística
Banca: CESPE / CEBRASPE
Orgão: TCE-PR
Por meio de uma pesquisa, estimou-se que, em uma população, o percentual p de famílias endividadas era de 57%. Esse resultado foi observado com base em uma amostra aleatória simples de 600 famílias.

Nessa situação, considerando a hipótese nula H0 : p 60%,a hipótese alternativa H1 : p < 60% e P(Z 2) = 0,977, em que Z representa a distribuição normal padrão, bem como sabendo que o teste se baseia na aproximação normal, assinale a opção correta,a respeito desse teste de hipóteses.
 

Provas

Questão presente nas seguintes provas
857676 Ano: 2016
Disciplina: Administração Geral
Banca: CESPE / CEBRASPE
Orgão: TCE-PR
Em relação às funções administrativas planejamento, organização, direção e controle, assinale a opção correta.
 

Provas

Questão presente nas seguintes provas
857675 Ano: 2016
Disciplina: Administração Geral
Banca: CESPE / CEBRASPE
Orgão: TCE-PR
Assinale a opção correta, acerca de motivação e liderança, comunicação, descentralização e delegação.
 

Provas

Questão presente nas seguintes provas
857672 Ano: 2016
Disciplina: Administração Geral
Banca: CESPE / CEBRASPE
Orgão: TCE-PR
Assinale a opção correta, no que se refere a planejamento estratégico, tático e operacional, administração por objetivos e balanced scorecard.
 

Provas

Questão presente nas seguintes provas