Foram encontradas 395 questões.
Estruturas de concreto armado em ambientes agressivos podem desenvolver manchas escuras e reduzir o pH, acelerando a corrosão das armaduras. A patologia responsável por esse tipo de deterioração nas armaduras do concreto armado é denominada:
Provas
A destilação é um processo de separação de misturas baseado nas diferenças nos pontos de ebulição dos componentes. Sobre esse aspecto, é CORRETO o que se afirma em:
Provas
Revestir paredes com tinta não só melhora a estética do ambiente, mas também aumenta sua resistência, durabilidade, valorização e higiene. O preparo da superfície a ser pintada, a especificação do tipo adequado de tinta, as condições climáticas, entre outros fatores, necessitam de atenção para evitar patologias.
Entre as opções abaixo, todas são exemplos de patologias em pinturas, EXCETO:
Provas
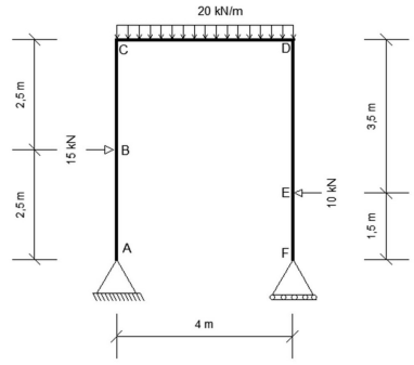
Um pórtico isostático é um tipo de estrutura composta por vigas e colunas conectadas formando um quadro, onde o número de apoios e barras (elementos estruturais) é exatamente suficiente para garantir o equilíbrio da estrutura. Observe a esquematização de um pórtico isostático, biapoiado, reproduzido a seguir:

Sobre os diagramas de esforços internos presentes na estrutura:
I) O trecho BC está submetido a um esforço cortante de 15 kN.
II) O trecho CD está submetido a um esforço normal de 10 kN de tração.
III) O trecho CD apresenta um momento fletor máximo de 12.5 KN.m.
Sabendo que o apoio no ponto A é do segundo gênero e que o apoio no ponto F é do primeiro gênero, pode-se afirmar que:
Provas
Considere a lista de vidrarias a seguir:

São vidrarias que NÃO podem ser secadas sob condições de aquecimento em estufa de circulação forçada as contidas nos itens:
Provas
Considerando os benefícios do Plano de Seguridade Social do servidor e dependentes previstos na Lei 8.112/90. São disposições deste regime jurídico, EXCETO:
Provas
Sobre tratamento e descarte de resíduos em laboratórios de análise químicas, considere as afirmativas abaixo.
I. Compostos orgânicos como açúcares, amido, aminoácidos e ácido cítrico podem ser descartados no lixo comum.
II. Soluções ácidas de dicromato de potássio, desde que devidamente neutralizadas com hidróxido de sódio, podem ser descartadas na pia sob água corrente.
III. Os resíduos devem ser separados em categorias, considerando-se as características físico-químicas, periculosidade e compatibilidade química, por exemplo.
IV. Soluções de metais pesados podem ser tratadas com solução alcalina em excesso, sendo a mistura descartada em recipientes apropriados para posterior destinação adequada.
V. Os resíduos de bases devem ser descartados em recipientes de vidro borossilicato.
Marque a alternativaCORRETA:
Provas
Estruturas isostáticas são aquelas que possuem um número suficiente de vínculos para garantir o seu equilíbrio. Considere a viga isostática, biapoiada, com dois balanços, mostrada na figura abaixo.

Pode-se afirmar em relação à estrutura apresentada que:
Provas
O ácido clorídrico (HCl) é um ácido inorgânico forte bastante utilizado em laboratórios e indústrias, tendo aplicações em análises químicas, na produção de cloretos, no tratamento de metais e na regulação do pH. Devido sua reatividade e natureza corrosiva, alguns cuidados devem ser tomados no manuseio e armazenamento dessa substância. Em relação ao correto armazenamento, por questões de segurança, o ácido clorídrico NÃO deve ser armazenado próximo às seguintes substâncias:
Provas
Motores elétricos podem ser utilizados em diversos sistemas para movimentar objetos e/ou pessoas, tais como elevadores, carros elétricos e afins. Considere um motor elétrico de 48,0 W de potência total utilizado para levantar uma massa máxima de 30,0 kg na vertical por uma altura de 30,0 cm levando 3,00 s para isso. Sendo assim, e considerando-se g = 10,0 m/s², pode-se afirmar que o rendimento desse motor é de:
Provas
Caderno Container