Foram encontradas 609 questões.
Com relação ao projeto de rede de abastecimento de água, as premissas para dimensionamento e
análise são:
Provas
Questão presente nas seguintes provas
Seguindo os critérios da ABNT NBR ____________, que trata dos sistemas prediais de água fria e água
quente (projeto, execução, operação e manutenção), a pressão dinâmica requerida para o adequado
funcionamento da peça de utilização ou do correspondente aparelho sanitário operando com vazão de
projeto pode ser obtida junto ao respectivo fabricante ou responsável pela colocação do produto no
mercado nacional ou à especificação técnica do componente. Em qualquer caso, a pressão dinâmica
da água no ponto de utilização não pode ser inferior a ____________. Para a pressão estática nos
pontos de utilização, não pode superar ____________.
Assinale a alternativa que preenche, correta e respectivamente, as lacunas do texto acima.
Assinale a alternativa que preenche, correta e respectivamente, as lacunas do texto acima.
Provas
Questão presente nas seguintes provas
Com base no conceito de escoamento da água por orifício e nos seus conhecimentos sobre o
comportamento da água durante o esvaziamento ou enchimento de reservatórios, analise a situação
dos reservatórios da Figura 2.
Observe ainda a Figura 3 abaixo.
Considerando que o reservatório a) começou cheio e os demais estavam vazios no momento inicial, assinale a alternativa que descreve corretamente o comportamento dos níveis de cada reservatório, com base no gráfico de resposta da Figura 3.
Observe ainda a Figura 3 abaixo.
Considerando que o reservatório a) começou cheio e os demais estavam vazios no momento inicial, assinale a alternativa que descreve corretamente o comportamento dos níveis de cada reservatório, com base no gráfico de resposta da Figura 3.
Provas
Questão presente nas seguintes provas
- Sistemas de Abastecimento e Tratamento de Água
- Sistemas de Abastecimento de Água
- Instalações Hidráulicas
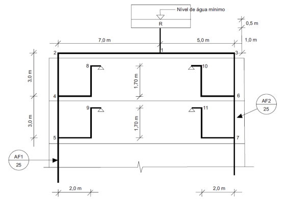
Observe a Figura 1, que representa um sistema de abastecimento predial de água fria.
Figura 1 – Esquema de uma instalação predial de água fria.
Sobre essa Figura, considere as seguintes informações:
• Os chuveiros estão instalados nos pontos 8, 9, 10 e 11;
• O barrilete possui, em toda a sua extensão, o diâmetro de 32 mm;
• As colunas de água fria possuem diâmetro de 25 mm;
• As vazões que abastecem as duas colunas de água fria são idênticas;
• Cada um dos ramais que levam a qualquer um dos chuveiros possui uma perda de carga equivalente a 0,50 m.
Com base nessas informações, analisando a perda de carga e a pressão dinâmica, é correto afirmar que a água chega com menor pressão no(nos) chuveiro(s)
Figura 1 – Esquema de uma instalação predial de água fria.
Sobre essa Figura, considere as seguintes informações:
• Os chuveiros estão instalados nos pontos 8, 9, 10 e 11;
• O barrilete possui, em toda a sua extensão, o diâmetro de 32 mm;
• As colunas de água fria possuem diâmetro de 25 mm;
• As vazões que abastecem as duas colunas de água fria são idênticas;
• Cada um dos ramais que levam a qualquer um dos chuveiros possui uma perda de carga equivalente a 0,50 m.
Com base nessas informações, analisando a perda de carga e a pressão dinâmica, é correto afirmar que a água chega com menor pressão no(nos) chuveiro(s)
Provas
Questão presente nas seguintes provas
3668697
Ano: 2025
Disciplina: TI - Organização e Arquitetura dos Computadores
Banca: UFPA
Orgão: UFOPA
Disciplina: TI - Organização e Arquitetura dos Computadores
Banca: UFPA
Orgão: UFOPA
Provas:
Em se tratando de processadores utilizados para a implementação de sistemas embarcados, assinale
a alternativa que NÃO representa um processador comumente utilizado nos sistemas atuais.
Provas
Questão presente nas seguintes provas
3668696
Ano: 2025
Disciplina: TI - Organização e Arquitetura dos Computadores
Banca: UFPA
Orgão: UFOPA
Disciplina: TI - Organização e Arquitetura dos Computadores
Banca: UFPA
Orgão: UFOPA
Provas:
Para os conceitos mostrados a seguir sobre hardware usado em sistemas embarcados, assinale V
(verdadeiro) ou F (falso) nas afirmativas abaixo.
(__) Memória volátil é temporária e requer uma fonte de energia para reter os dados.
(__) As memórias RAM e ROM são do tipo volátil.
(__) Pinos GPIO de interfaces digitais de microcontroladores são raros e obsoletos.
(__) UART, SPI e I2C são interfaces comuns de comunicação de dados em microcontroladores.
A sequência correta é
(__) Memória volátil é temporária e requer uma fonte de energia para reter os dados.
(__) As memórias RAM e ROM são do tipo volátil.
(__) Pinos GPIO de interfaces digitais de microcontroladores são raros e obsoletos.
(__) UART, SPI e I2C são interfaces comuns de comunicação de dados em microcontroladores.
A sequência correta é
Provas
Questão presente nas seguintes provas
Em relação a regras básicas para a multiplicação binária, assinale V (verdadeiro) ou F (falso) nos itens
seguintes.
(__) 0x0 = 1
(__) 0x1 = 0
(__) 1x0 = 0
(__) 1x1 = 1
A sequência correta é
(__) 0x0 = 1
(__) 0x1 = 0
(__) 1x0 = 0
(__) 1x1 = 1
A sequência correta é
Provas
Questão presente nas seguintes provas
Em relação a regras básicas para a subtração binária, assinale V (verdadeiro) ou F (falso) nos itens
seguintes.
(__) 0-0 = 1
(__) 1-0 = 1
(__) 1-1 = 0
(__) 10-1 = 1 (“empresta 1” do dígito de ordem superior)
A sequência correta é
(__) 0-0 = 1
(__) 1-0 = 1
(__) 1-1 = 0
(__) 10-1 = 1 (“empresta 1” do dígito de ordem superior)
A sequência correta é
Provas
Questão presente nas seguintes provas
Em relação a regras básicas para a adição binária, assinale V (verdadeiro) ou F (falso) nos itens
seguintes.
(__) 0+0 = 0
(__) 0+1 = 1
(__) 1+0 = 1
(__) 1+1 = 0 (e “vai 1” para o dígito de ordem superior)
A sequência correta é
(__) 0+0 = 0
(__) 0+1 = 1
(__) 1+0 = 1
(__) 1+1 = 0 (e “vai 1” para o dígito de ordem superior)
A sequência correta é
Provas
Questão presente nas seguintes provas
Considere o circuito lógico mostrado na figura a seguir.

Com base na figura acima, assinale a alternativa que corresponde à expressão Booleana do circuito.
Provas
Questão presente nas seguintes provas
Cadernos
Caderno Container