Foram encontradas 360 questões.
- UniãoExecutivoDecreto 1.171/1994: Código de Ética do Servidor Público Civil do Poder Executivo Federal
Nos termos do Decreto nº 1.171/94, são regras deontológicas, EXCETO:
Provas
Questão presente nas seguintes provas
- UniãoExecutivoDecreto 1.171/1994: Código de Ética do Servidor Público Civil do Poder Executivo Federal
José, ocupante do cargo de assistente em administração da UFAC, observou que alguns de seus colegas de setor estavam praticando condutas que não seriam permitidas por lei. Diante disso, resolveu fazer a leitura do decreto nº 1.171/94, no qual pôde constatar que é vedado ao servidor público:
Provas
Questão presente nas seguintes provas
- Desenho Técnico na Engenharia Civil
- Estruturas
- Resistência dos Materiais e Análise EstruturalEstruturas de Concreto
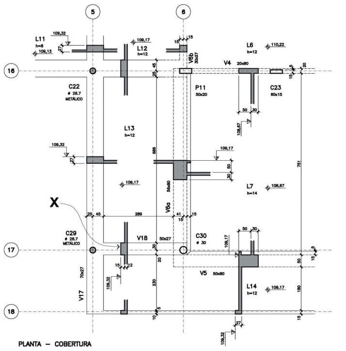
Nos projetos de estruturas, a planta de formas deve mostrar a posição dos elementos estruturais, identificá-los por nome ou número e indicar suas dimensões.
O elemento estrutural assinalado com o X na planta de forma acima é:
O elemento estrutural assinalado com o X na planta de forma acima é:
Provas
Questão presente nas seguintes provas
Considerando o levantamento topográfico do desenho abaixo:

O perfil do terreno representado pelo corte AB é:
Provas
Questão presente nas seguintes provas
Considere a Figura abaixo.
Ela corresponde o desenho topográfico de:

Provas
Questão presente nas seguintes provas
Assinale a alternativa correta. A definição: “São soluções de gomas ou resinas, naturais ou sintéticas, em um veículo; solução estas que são convertidas em uma película útil transparente ou translúcida, após a aplicação em camadas finas”, define os/as:
Provas
Questão presente nas seguintes provas
Assinale a alternativa correta. Nas propriedades dos corpos sólidos a definição: “É a capacidade que tem os corpos de se reduzirem a fios sem se romperem”, define o/a:
Provas
Questão presente nas seguintes provas
São considerados bases flexíveis para pavimentos:
I. Macadame de Cimento
II. Macadame Hidráulico
III. Macadame Betuminoso
IV. Solo-cimento
V. Solo estabilizado
Assinale a alternativa correta:
Provas
Questão presente nas seguintes provas
Nas estruturas metálicas os conectares são instalados em furos feitos nas chapas. A execução desses furos é onerosa, tornando-se necessária a padronização de dimensões e espaçamentos, a fim de permitir furações múltiplas nas fábricas. O furo-padrão para parafusos comuns deverá ter uma folga em relação ao diâmetro nominal do parafuso; essa tolerância é necessária para permitir a montagem das peças. O processo mais econômico de furar é o puncionamento no diâmetro definitivo, o que pode ser feito para espessura t de chapa até o diâmetro nominal do conector acrescido de:
Provas
Questão presente nas seguintes provas
Assinale a alternativa correta. Nas propriedades dos corpos sólidos a definição: “É a perda de qualidades ou de dimensões com o uso contínuo”, define o/a:
Provas
Questão presente nas seguintes provas
Cadernos
Caderno Container