Foram encontradas 522 questões.
Observe a planta do projeto executivo de estruturas de concreto armado.

Está correto o que se afirma em:
Provas
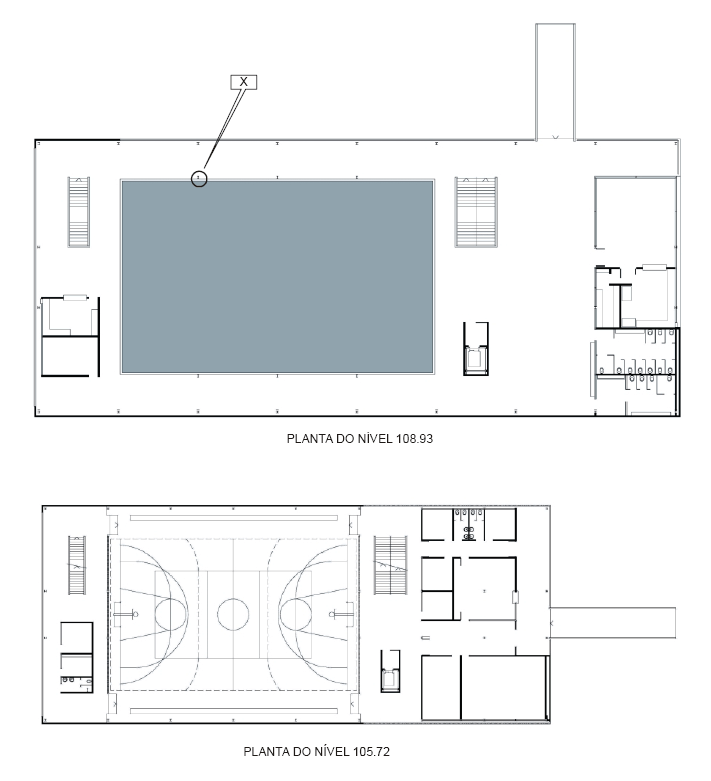
Observe a Escola Estadual Jardim Angélica III (2004, 2006), projeto do escritório paulista Núcleo de Arquitetura.



Analisando-se a relação entre estrutura metálica, distribuição na planta dos dois pavimentos superiores e o corte da escola, constata-se que o elemento construtivo assinalado com um X é:
Provas
Observe a figura:

Analisando o corte esquemático do equipamento de condicionamento de ar, podemos constatar que o mesmo trata de
Provas
Quando a concessionária pública não pode garantir a continuidade de abastecimento de água potável, tampouco a pressão mínima de fornecimento, deve-se optar pelo seguinte sistema de abastecimento e distribuição predial:
Provas
O trabalho de planejamento para espaços empresariais busca reconhecer a filosofia de trabalho de cada empresa e, através de metodologia sistemática de projeto, fornecer as condições adequadas para implantação de suas instalações administrativas.
As preocupações mais importantes que constituem um projeto de arquitetura de interiores aplicada aos escritórios são:
Provas
Entre as principais etapas que integram o conjunto de atividades do projeto de arquitetura estão a Concepção e a Execução.
Considere os seguintes itens que uma planta, na etapa de Projeto Executivo, deve conter:
I. Indicação dos elementos do sistema estrutural, com distinção gráfica entre estes e as vedações.
II. Indicação de enchimentos, dutos e prumadas das instalações.
III. Indicação dos cortes gerais, elevações, detalhes e secções.
Está correto o que se afirma em
Provas
I. Citação de funcionário público, na repartição em que trabalhar.
II. Citação de pessoa que estiver assistindo a qualquer ato de culto religioso.
III. Citação de qualquer parente do morto, consangüíneo ou afim na linha colateral em segundo grau, no dia do falecimento e nos 7 (sete) dias seguintes.
IV. Citação de noivos, nos 5 (cinco) primeiros dias de bodas.
De acordo com o Código de Processo Civil, dentre outras hipóteses, não se fará a citação, salvo para evitar o perecimento do direito, nas situações indicadas, APENAS, em
Provas
Provas
I. Desembargadores dos Tribunais de Justiça dos Estados.
II. Chefes de missão diplomática de caráter permanente.
III. Governador do Distrito Federal.
IV. Membros do Tribunal de Contas da União.
V. Membros dos Tribunais Regionais Eleitorais.
Compete ao Supremo Tribunal Federal processar e julgar, originariamente, nos crimes comuns, as autoridades indicadas APENAS em
Provas
Provas
Caderno Container