Foram encontradas 876 questões.
Para que a ventilação seja mais bem aproveitada em um projeto urbanístico, a melhor direção para as
ruas de maior caixa a serem desenhadas no assentamento é
Provas
Questão presente nas seguintes provas
A aplicação de relações de testada e fundo de lotes em terrenos planos, com declividade pequena e
homogênea de 1:1, 1:2, 1:3 e 1:5, terá diferentes aproveitamentos no desenho de loteamentos. A alternativa
correta, quanto à relação nas dimensões de lotes, é
Provas
Questão presente nas seguintes provas
O nome do item que compõe a fase preparatória de instrução de processos licitatórios, para serviços de
projetos e obras civis a serem contratados pelo setor público, conforme a Lei de Licitações (Lei nº
14.133/2021), é
Provas
Questão presente nas seguintes provas
A confluência entre sinalização, wayfinding em inglês (encontrando caminhos, em tradução livre), e
acessibilidade universal (alinhada com a norma 9050/2022) leva à necessidade de integrar orientações para
rotas de saída, localização de banheiros e elevadores, entre outros. A alternativa que associa corretamente
uma qualidade de projeto com sua aplicação em edifícios públicos é
Provas
Questão presente nas seguintes provas
A compatibilização do sistema viário de projetos urbanísticos de loteamentos urbanos e o sistema viário
urbano demandam uma adequação de desenho das vias internas com o entorno. Para tal, utiliza-se a
classificação funcional de vias conforme uma hierarquia. Neste sentido, é correto afirmar que
Provas
Questão presente nas seguintes provas
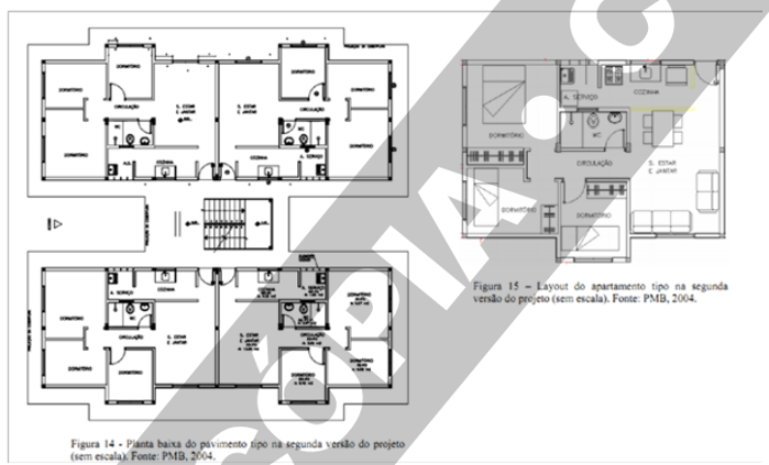
A adoção de plantas baixas em “H” em projetos de habitação de interesse social, conforme pode ser
observado na figura, tem vantagens em termos de conforto ambiental, funcionalidade e custos.
Considerando a imagem abaixo, a alternativa que define corretamente uma vantagem desta opção projetual
é


Provas
Questão presente nas seguintes provas
O controle da densidade de construção nos bairros, estabelecido pela legislação urbanística, é alcançado
pela aplicação de índices urbanísticos. Essa aplicação ocorre com o estabelecimento de um coeficiente de
aproveitamento máximo estabelecido por lote. Considerando o lote de 400m2 e coeficiente de
aproveitamento igual a 2, a alternativa correta, quanto ao porte do edifício que poderá ser construído no lote,
é
Provas
Questão presente nas seguintes provas
O material de construção encontrado em edificações históricas que tem suas características físicas e
químicas relacionadas ao que é denominado “biscoito” e “vidrado” é
Provas
Questão presente nas seguintes provas
Segundo a NBR 9050/2020, as informações e sinalizações essenciais aos espaços nas edificações, no
mobiliário e nos equipamentos urbanos, devem ser utilizadas de forma visual, sonora ou tátil, de acordo com
o princípio dos dois sentidos. Em se tratando de suas instalações, é correto afirmar que
Provas
Questão presente nas seguintes provas
Os parâmetros visuais previstos na NBR 9050/2020 variam conforme ângulos definidos conforme planos
visuais para pessoa em pé e sentada. Considerando que o cone visual é definido com acréscimos de 8º, a
alternativa correta, quanto à variação entre pessoas em pé e pessoas sentadas, é
Provas
Questão presente nas seguintes provas
Cadernos
Caderno Container