Foram encontradas 2.633 questões.
Disciplina: Serviços Gerais
Banca: CESPE / CEBRASPE
Orgão: Pref. Rio Branco-AC

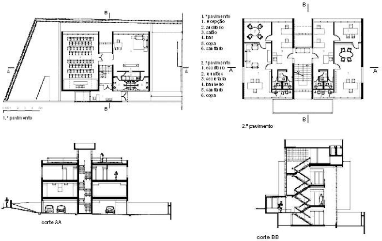
Acerca dos desenhos acima, que correspondem ao projeto do Espaço Pacaembu (1996), de autoria do arquiteto Marcos Acayaba, julgue os itens que se seguem.
Todos os escritórios possuem banheiro privativo.
Provas
Disciplina: Serviços Gerais
Banca: CESPE / CEBRASPE
Orgão: Pref. Rio Branco-AC

Acerca dos desenhos acima, que correspondem ao projeto do Espaço Pacaembu (1996), de autoria do arquiteto Marcos Acayaba, julgue os itens que se seguem.
No corte BB, o espaço assinalado com a letra X corresponde à recepção.
Provas
Disciplina: Engenharia Civil
Banca: CESPE / CEBRASPE
Orgão: Pref. Rio Branco-AC
Na construção civil, a pintura tem diversas finalidades além da decorativa, servindo também para proteger o substrato, sinalizar, isolar termicamente, controlar luminosidade, entre outras. Com relação aos cuidados que devem ser levados em conta em relação à superfície que será pintada, julgue os seguintes itens.
As madeiras resinosas ou que contêm nós devem ser seladas com verniz e logo pintadas com pintura esmalte ou à base de óleo.
Provas
Disciplina: Engenharia Civil
Banca: CESPE / CEBRASPE
Orgão: Pref. Rio Branco-AC
Na construção civil, a pintura tem diversas finalidades além da decorativa, servindo também para proteger o substrato, sinalizar, isolar termicamente, controlar luminosidade, entre outras. Com relação aos cuidados que devem ser levados em conta em relação à superfície que será pintada, julgue os seguintes itens.
Para pintura de superfícies de cimento amianto, é imprescindível a aplicação de um fundo resistente à alcalinidade para, em seguida, se aplicar látex acrílico.
Provas
Disciplina: Engenharia Civil
Banca: CESPE / CEBRASPE
Orgão: Pref. Rio Branco-AC
Na construção civil, a pintura tem diversas finalidades além da decorativa, servindo também para proteger o substrato, sinalizar, isolar termicamente, controlar luminosidade, entre outras. Com relação aos cuidados que devem ser levados em conta em relação à superfície que será pintada, julgue os seguintes itens.
Superfícies de alumínio podem ser pintadas, mas deve-se aplicar inicialmente um primer para, em seguida, aplicar a pintura propriamente dita.
Provas
Disciplina: Engenharia Civil
Banca: CESPE / CEBRASPE
Orgão: Pref. Rio Branco-AC
Na construção civil, a pintura tem diversas finalidades além da decorativa, servindo também para proteger o substrato, sinalizar, isolar termicamente, controlar luminosidade, entre outras. Com relação aos cuidados que devem ser levados em conta em relação à superfície que será pintada, julgue os seguintes itens.
Só podem ser pintados os pisos porosos, mas não os pisos vitrificados (concreto liso, ladrilhos).
Provas
Disciplina: Engenharia Civil
Banca: CESPE / CEBRASPE
Orgão: Pref. Rio Branco-AC
O orçamento de um projeto baseia-se na previsão de ocorrência de atividades futuras logicamente encadeadas, e que representam custos. Com base nos princípios que regem a elaboração de orçamentos e a composição de custos, julgue os itens que se seguem.
O valor do BDI considerado para compor o preço total deverá ser explicitado no orçamento.
Provas
Disciplina: Engenharia Civil
Banca: CESPE / CEBRASPE
Orgão: Pref. Rio Branco-AC
O orçamento de um projeto baseia-se na previsão de ocorrência de atividades futuras logicamente encadeadas, e que representam custos. Com base nos princípios que regem a elaboração de orçamentos e a composição de custos, julgue os itens que se seguem.
Os encargos sociais que incidem sobre a mão-de-obra diferem conforme o operário seja horista ou mensalista.
Provas
Disciplina: Engenharia Civil
Banca: CESPE / CEBRASPE
Orgão: Pref. Rio Branco-AC
O orçamento de um projeto baseia-se na previsão de ocorrência de atividades futuras logicamente encadeadas, e que representam custos. Com base nos princípios que regem a elaboração de orçamentos e a composição de custos, julgue os itens que se seguem.
A elaboração de um orçamento torna-se menos precisa na medida em que diminui o nível de especialização da mão-deobra disponível.
Provas
Disciplina: Engenharia Civil
Banca: CESPE / CEBRASPE
Orgão: Pref. Rio Branco-AC
O orçamento de um projeto baseia-se na previsão de ocorrência de atividades futuras logicamente encadeadas, e que representam custos. Com base nos princípios que regem a elaboração de orçamentos e a composição de custos, julgue os itens que se seguem.
A composição do custo unitário é feita a partir de coeficientes técnicos de consumo extraídos de publicações especializadas ou compilados por cada empresa em função da experiência adquirida no controle e no planejamento de outras obras por ela executadas.
Provas
Caderno Container