Foram encontradas 40 questões.
De acordo com NBR 6492/2021, na Figura 3 abaixo, a letra A representa:

Figura 3 – Exemplo de uso de linha – Planta de pavimento térreo
Provas
Disciplina: Ética e Regulação Profissional
Banca: FUNDATEC
Orgão: Pref. Itaara-RS
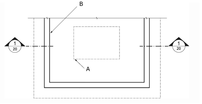
De acordo com a NBR 9077/2001, na Figura 2 abaixo, as letras A e B referem-se, respectivamente, a escadas do tipo:

Figura 2 – sem escala
Provas
- Tecnologia das ConstruçõesSistemas e Elementos ConstrutivosSistemas EstruturaisEstruturas de Concreto
De acordo com a NBR 14931/2023, que estabelece os requisitos para a execução de estruturas de concreto armado, analise as assertivas abaixo:
I. Ancoragem é o dispositivo capaz de manter o cabo em estado de tensão, transmitindo força de protensão à estrutura.
II. Suporte é a peça que faz a concordância da bainha com a ancoragem.
III. Sistemas de fôrmas são estruturas provisórias que servem para moldar o concreto fresco, resistindo a todas as ações provenientes das cargas variáveis resultantes das pressões do lançamento do concreto fresco, até que o concreto se torne autoportante.
Quais estão corretas?
Provas
- Tecnologia das ConstruçõesSistemas e Elementos ConstrutivosSistemas EstruturaisMorfologia e Funcionamento das Estruturas
Sobre os blocos destinados à execução de alvenaria com ou sem função estrutural, analise as assertivas abaixo, assinalando V, se verdadeiras e F, se falsas.
( ) Bloco vazado de concreto simples é o componente para execução de alvenaria, com ou sem função estrutural, vazado nas faces superior e inferior, cuja área líquida é igual ou inferior a 75% da área bruta.
( ) Bloco tipo canaleta são componentes de alvenaria, somente vazados, criados para racionalizar a execução de cintas.
( ) Bloco compensador é um componente de alvenaria destinado para ajuste de modulação.
( )Dimensões nominais são as dimensões efetivas verificadas diretamente nos blocos.
A ordem correta de preenchimento dos parênteses, de cima para baixo, é:
Provas
Sobre a Lei nº 14.133/2021, é correto afirmar que:
Provas
- Legislação e NormasNormas sobre Processos de Projetos na Arquitetura
- Processos de Projeto
- Tecnologia das ConstruçõesAcabamentos
- Tecnologia das ConstruçõesSistemas e Elementos ConstrutivosMateriais para Construção
Em relação aos vidros na construção civil, abordados pela NBR 7199/2016, analise as assertivas abaixo:
I. Quanto à transparência, os vidros são classificados em dois tipos: transparente e translúcido.
II. Painel colado (structural glazing) é um sistema composto por vidros colados em seu perímetro em estrutura portante usando adesivos ou fitas estruturais.
III. São exemplos de tipos de vidro o espelho e o vidro serigrafado.
Quais estão corretas?
Provas
Sobre o planejamento e o desenvolvimento de projetos urbanísticos ao longo de todas as suas etapas, abordado pela NBR 16636-3/2020, analise as assertivas abaixo:
I. Plano de controle ambiental é o documento elaborado por profissional(is) habilitado(s), que norteia os programas, as ações mitigadoras e os projetos executivos, para minimização de impactos ambientais avaliados de acordo com a legislação vigente.
II. Urbanização é o conjunto de técnicas, instalações e obras inseridas na paisagem que permitem dotar uma área ou região de condições de infraestrutura, inclusive com a transformação das características rurais para características urbanas.
III. Plano de desenvolvimento integrado de turismo é a peça técnica pela qual, com fundamento nos objetivos gerais de uma área sujeita a regime especial de proteção, são estabelecidos o seu zoneamento e as normas que orientam o uso da área objeto do plano e o manejo dos recursos naturais, inclusive a implantação das estruturas físicas necessárias à sua gestão.
Quais estão corretas?
Provas
Considerando a NBR 16636-1/2017, é INCORRETO afirmar que:
Provas
Sobre a NBR 15575-3/2021, que estabelece os requisitos e critérios de desempenho que se aplicam ao sistema de pisos da edificação habitacional, analise as assertivas abaixo, assinalando V, se verdadeiras, ou F, se falsas.
( ) Áreas molhadas são áreas da edificação que recebem respingos de água decorrentes da sua condição de uso e exposição e que não resulte na formação de lâmina d’água pelo uso normal a que o ambiente se destina.
( )Camada de contrapiso é o estrato com as funções de regularizar o substrato, proporcionando uma superfície uniforme de apoio, coesa, aderida ou não, e adequada à camada de acabamento, podendo eventualmente servir como camada de embutimento, caimento ou declividade.
( ) A camada de acabamento do sistema de piso é composta por um ou mais componentes destinados a revestir a superfície do sistema de piso e atender a funções de proteção e acabamento estético e funcional.
( ) Fresta é a fenda não planejada entre componentes do sistema de piso que esteja preenchida.
A ordem correta de preenchimento dos parênteses, de cima para baixo, é:
Provas
Para garantir que uma rampa seja acessível, são definidos limites máximos de inclinação, desníveis a serem vencidos e o número máximo de segmentos. Considerando a Figura 1 abaixo, analise as assertivas que seguem

Figura 1 – Vista superior – sem escala
I. A inclinação das rampas deve ser calculada conforme a seguinte equação i = hx100/c, onde c é o comprimento da projeção horizontal.
II. Para inclinação entre 6,25% e 8,33%, é recomendado criar áreas de descanso nos patamares, a cada 100 m de percurso. Incluem-se nesse requisito as rampas de plateia e palcos, piscinas e praias.
III. Os patamares no início e no término das rampas devem ter dimensão longitudinal mínima de 1,10 m. Entre os segmentos de rampa, devem ser previstos patamares intermediários com dimensão longitudinal mínima de 1,10 m
Quais estão corretas? .
Provas
Caderno Container