Foram encontradas 30 questões.
Disciplina: Desenho Técnico e Industrial
Banca: FEPESE
Orgão: Pref. Concórdia-SC
Assinale a alternativa que indica corretamente as características da medida angular de rumo, empregada no desenho topográfico.
Provas
Disciplina: Desenho Técnico e Industrial
Banca: FEPESE
Orgão: Pref. Concórdia-SC
O procedimento de desenho geométrico que divide segmentos de reta de medidas quaisquer em duas partes iguais, com o uso do compasso, se chama:
Provas
Disciplina: Desenho Técnico e Industrial
Banca: FEPESE
Orgão: Pref. Concórdia-SC
Todas as esquadrias da edificação caracterizada no projeto arquitetônico devem estar representadas no desenho:
Provas
Disciplina: Desenho Técnico e Industrial
Banca: FEPESE
Orgão: Pref. Concórdia-SC
Analise as linhas abaixo utilizadas na representação de objetos em vistas em corte.

Assinale a alternativa que indica corretamente as funções das linhas enumeradas.
Provas
Disciplina: Desenho Técnico e Industrial
Banca: FEPESE
Orgão: Pref. Concórdia-SC
Assinale a alternativa que indica corretamente a opção que se deve selecionar no comando de configuração de unidades de comprimento e angulares do arquivo .dwg (UNITS), para configuração de ângulos em azimute, utilizado no desenho topográfico, na versão em inglês do AutoCAD.
Provas
Disciplina: Desenho Técnico e Industrial
Banca: FEPESE
Orgão: Pref. Concórdia-SC
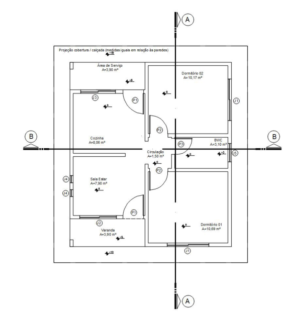
Analise a planta abaixo:

Assinale a alternativa que apresenta corretamente o corte AA representado na planta.
Provas
Disciplina: Desenho Técnico e Industrial
Banca: FEPESE
Orgão: Pref. Concórdia-SC
Assinale a alternativa que indica corretamente o nome do comando do AutoCAD, na versão em inglês, utilizado para realizar a concordância entre linhas.
Provas
Disciplina: Desenho Técnico e Industrial
Banca: FEPESE
Orgão: Pref. Concórdia-SC
Assinale a alternativa que indica corretamente todos os instrumentos necessários para a realização de desenho técnico à mão livre.
Provas
Os três elementos fundamentais da geometria são:
Provas
Os ângulos de 45°, 150° e 90° possuem, respectivamente, as seguintes classificações quanto à sua abertura:
Provas
Caderno Container