Foram encontradas 850 questões.
Observe a figura a seguir.

Como exemplificado na figura acima, duas pessoas do mesmo tamanho desenhadas em posições diferentes parecem possuir alturas distintas. Isso ocorre devido a qual fenômeno de ilusão ótica?
Provas
Observe a figura a seguir.

De acordo com Oberg (1997), em uma instalação hidráulica, o símbolo acima indica:
Provas
Num formato AO, quantas folhas do formato A4 podem ser desenhadas?
Provas
Analise a figura a seguir.

A simbologia acima indica, conforme a NBR 6492/1994:
Provas
De acordo com Patrícia Ferreira (2008), assinale a opção correta em relação às regras de cotagem para arquitetura.
Provas
De acordo com L.Oberg (1997), o vão de abertura mínimo para ventilação e iluminação de um dormitório, cujas dimensões são 5mx3m, deverá ser de:
Provas
Qual é águas, caimento a altura m1n1ma com vão de 12m, é de 1/6? da cumeeira de um telhado de duas para uso de telha francesa, cujo
Provas
Em relação à caixa de diálogo do Autocad, em que se determina a área a ser impressa (PLOT AREA), assinale a opção que plota a porção do desenho apresentada na tela.
Provas
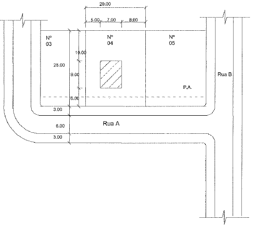
A figura abaixo é uma representação de uma planta de situação.

Com base nas informações da planta acima, pode-se afirmar que a taxa de ocupação é de:
Provas
De acordo com a NBR 5410/2004, o critério utilizado para o cálculo de pontos de tomada de uso geral para unidades residenciais prevê que um cômodo com dimensões de 4mx3m deverá ter, no mínimo, quantas tomadas?
Provas
Caderno Container