Magna Concursos

Foram encontradas 375 questões.

1977921 Ano: 2019
Disciplina: Engenharia Mecânica
Banca: FUNDEP
Orgão: DMAE-Uberlândia
Provas:

Com relação aos processos de usinagem dos metais, relacione a COLUNA II com COLUNA I, associando a nomenclatura à sua respectiva definição.

COLUNA I

1. Torneamento

2. Perfilamento

3. Fresamento

4. Retificação

5. Brunimento

COLUNA II

( ) Processo que determina uma forma definida pelo perfil da ferramenta.

( ) Processo de usinagem por abrasão para obtenção de superfícies.

( ) Processo de usinagem empregado no acabamento de furos cilíndricos com auxílio de uma ferramenta abrasiva.

( ) Processo de usinagem destinado à obtenção de superfície quaisquer com ferramentas geralmente multicortantes.

( ) Processo destinado à obtenção de superfícies de revolução com auxílio de ferramentas monocortantes.

Assinale a sequência correta.

 

Provas

Questão presente nas seguintes provas
1977920 Ano: 2019
Disciplina: Engenharia Mecânica
Banca: FUNDEP
Orgão: DMAE-Uberlândia
Provas:

Em relação à perda de carga em uma instalação hidráulica, assinale com V as afirmativas verdadeiras e com F as falsas.

( ) O material empregado na fabricação do tubo pode alterar a perda de carga.

( ) A perda de carga em uma tubulação independe do processo de fabricação deste tubo.

( ) O revestimento interno de uma tubulação pode ser aplicado para reduzir a perda de carga.

( ) A natureza de um fluido, o diâmetro da tubulação e o regime de escoamento influenciam a perda de carga em uma tubulação.

Assinale a sequência correta.

 

Provas

Questão presente nas seguintes provas
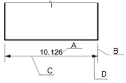
1977919 Ano: 2019
Disciplina: Engenharia Mecânica
Banca: FUNDEP
Orgão: DMAE-Uberlândia
Provas:

Observe o desenho a seguir.

Enunciado 3554073-1

FRENCH, 2005.

Sobre os elementos de cotagem nesse desenho técnico, A, B, C e D são respectivamente,

 

Provas

Questão presente nas seguintes provas
1977918 Ano: 2019
Disciplina: Engenharia Mecânica
Banca: FUNDEP
Orgão: DMAE-Uberlândia
Provas:

Um dos objetivos dos ensaios não-destrutivos (END) é inspecionar as soldas.

Nesse contexto, relacione a COLUNA II com a COLUNA I, associando os ensaios às suas características específicas.

COLUNA I

1. Líquido penetrante

2. Radiografia por raios X

3. Teste de estanqueidade

4. Partículas Magnéticas

COLUNA II

( ) Sua principal vantagem é a possibilidade de detecção de descontinuidades internas.

( ) Aplica-se em reservatórios, podendo ser por ensaiado pelo método da capilaridade.

( ) Pode ser utilizado para verificar descontinuidades em chapas mais espessas.

( ) Permite detectar descontinuidades como trincas, falta de fusão e porosidade que estão abertas na superfície.

Assinale a sequência correta.

 

Provas

Questão presente nas seguintes provas
1977917 Ano: 2019
Disciplina: Engenharia Mecânica
Banca: FUNDEP
Orgão: DMAE-Uberlândia
Provas:

Analise as afirmativas a seguir sobre o ajuste de tolerância dimensional H6g8 e a relação proposta entre elas.

I. O ajuste é com folga, porém a tolerância fundamental do eixo (IT) possui maior valor dimensional em relação ao (IT) do furo, ISSO

PORQUE

II. o IT 8 está à direita do IT 6 na tabela ISO do sistema de qualidade de tolerâncias.

A respeito dessas afirmativas e de sua inter-relação, é correto afirmar:

 

Provas

Questão presente nas seguintes provas
1977916 Ano: 2019
Disciplina: Engenharia Mecânica
Banca: FUNDEP
Orgão: DMAE-Uberlândia
Provas:

Em montagens industriais, é aceitável que se faça alguma complementação de fabricação em campo, em geral quando se tem as seguintes situações, exceto:

 

Provas

Questão presente nas seguintes provas
1977915 Ano: 2019
Disciplina: Engenharia Mecânica
Banca: FUNDEP
Orgão: DMAE-Uberlândia
Provas:

Sobre ART de cargo ou função, assinale com V as afirmativas verdadeiras e com F as falsas.

( ) O registro da ART de cargo ou função de profissional integrante do quadro técnico da pessoa jurídica não exime o registro de ART de execução de obra ou prestação de serviço.

( ) O vínculo entre o profissional e a pessoa jurídica pode ser comprovado por meio de contrato de trabalho anotado na Carteira de Trabalho e Previdência Social – CTPS, contrato de prestação de serviço, livro ou ficha de registro de empregados, contrato social, ata de assembleia ou ato administrativo de nomeação ou designação do qual constem a indicação do cargo ou função técnica, o início e a descrição das atividades a serem desenvolvidas pelo profissional.

( ) O vínculo para desempenho de cargo ou função técnica, tanto com pessoa jurídica de direito público quanto de direito privado, obriga à anotação de responsabilidade técnica no Crea em cuja circunscrição for exercida a atividade.

( ) Compete a pessoa jurídica cadastrar a ART de cargo ou função no sistema eletrônico de um profissional prestador de serviço e efetuar o recolhimento do valor relativo ao registro no CREA da circunscrição onde for exercida a atividade.

Assinale a sequência correta.

 

Provas

Questão presente nas seguintes provas
1977914 Ano: 2019
Disciplina: Engenharia Eletrônica
Banca: FUNDEP
Orgão: DMAE-Uberlândia
Provas:

A descoberta de materiais semicondutores permitiu a construção de diversos dispositivos eletrônicos, entre os quais podem ser destacados os diodos e transistores.

Sobre esses materiais e dispositivos, assinale a alternativa correta.

 

Provas

Questão presente nas seguintes provas
1977913 Ano: 2019
Disciplina: Engenharia Eletrônica
Banca: FUNDEP
Orgão: DMAE-Uberlândia
Provas:

Os CLPs (controladores lógicos programáveis) são amplamente utilizados na indústria para a automação e o controle dos mais diversos tipos de processos.

Assinale a alternativa que apresenta linguagens de programação definidas pela Norma IEC 61131.

 

Provas

Questão presente nas seguintes provas
1977912 Ano: 2019
Disciplina: Engenharia Eletrônica
Banca: FUNDEP
Orgão: DMAE-Uberlândia
Provas:

A conversão entre bases numéricas é um dos pilares da teoria de sistemas digitais.

Assinale a alternativa que indica a representação decimal para o número binário 110110.

 

Provas

Questão presente nas seguintes provas