Foram encontradas 40 questões.
Alguém paga
Trinta anos após a Declaração de Alma-Ata, aprovada na Conferência Internacional sobre Cuidados Primários de Saúde, cuja meta era levar “Saúde para Todos no Ano 2000”, um terço da população mundial continua sem acesso a serviços básicos de saúde. Em todo o mundo, centenas de milhões de pessoas sofrem com a falta de alimentos, água potável, moradia, saneamento básico e educação.
A situação persiste e desafia a liderança e a capacidade de ação de autoridades e especialistas porque lida com uma complexa conjunção de fatores políticos, sociais, econômicos e científico-tecnológicos. Problemas globais demandam soluções globais. Nesta categoria está a ampliação do acesso das populações aos medicamentos.
E o ponto central quando se aborda a questão da oferta de medicamentos a “preços acessíveis” são as fontes de financiamento para a pesquisa e o desenvolvimento (P&D) de substâncias para o tratamento de doenças de larga incidência em países pobres e ricos.
Pois os custos envolvidos nas diversas etapas de P&D de um medicamento são estimados em centenas de milhões de dólares. E o dinheiro precisa vir de algum lugar: Poder Público (isto é, a população), empresas (acionistas e investidores), etc.
Recentemente, um laboratório público anunciou a venda de um novo medicamento a “preço de custo”. Na verdade, a pesquisa do produto foi paga por um consórcio de países e organizações não-governamentais. O tal preço de custo referia-se apenas aos gastos de fabricação. Se o medicamento tivesse de ser desenvolvido integralmente – da pesquisa básica à última fase da pesquisa clínica –, seu preço seria muito maior.
Para o economista Jeffrey Sachs, assessor especial do secretário-geral da ONU para as Metas de Desenvolvimento do Milênio, doenças como a malária poderiam ser superadas por meio de investimentos coordenados mundialmente. Ele reconhece, no entanto, que faltam fundos globais para que este objetivo seja alcançado.
Enquanto a comunidade internacional não chega a um consenso sobre um grande pacto que defina fontes de financiamento, a indústria farmacêutica realiza os elevados investimentos necessários ao desenvolvimento de moléculas inovadoras, que serão mais tarde recuperados no preço de venda desses produtos.
Sem a decisiva contribuição da indústria, a mobilização para o controle da epidemia de Aids não teria tido o sucesso que alcançou, no bojo de um processo que levou à criação de 88 medicamentos e atualmente financia o teste de 92 novas substâncias.
Em 2006, a indústria farmacêutica mundial investiu mais de US$ 75 bilhões na pesquisa de moléculas para o tratamento de milhares de doenças, como tuberculose (19 substâncias), malária (20), doenças materno-infantis (219), doenças predominantes entre as mulheres (mais de 700), etc.
Para além da retórica e de projetos ainda incipientes, o fato é que os principais avanços das últimas décadas na síntese de medicamentos resultaram da iniciativa da indústria farmacêutica e não de governos, organismos internacionais ou ONGs.
(Ciro Mortella, O Globo, 25/08/2008)
O objetivo do texto é:
Provas
Questão presente nas seguintes provas
Alguém paga
Trinta anos após a Declaração de Alma-Ata, aprovada na Conferência Internacional sobre Cuidados Primários de Saúde, cuja meta era levar “Saúde para Todos no Ano 2000”, um terço da população mundial continua sem acesso a serviços básicos de saúde. Em todo o mundo, centenas de milhões de pessoas sofrem com a falta de alimentos, água potável, moradia, saneamento básico e educação.
A situação persiste e desafia a liderança e a capacidade de ação de autoridades e especialistas porque lida com uma complexa conjunção de fatores políticos, sociais, econômicos e científico-tecnológicos. Problemas globais demandam soluções globais. Nesta categoria está a ampliação do acesso das populações aos medicamentos.
E o ponto central quando se aborda a questão da oferta de medicamentos a “preços acessíveis” são as fontes de financiamento para a pesquisa e o desenvolvimento (P&D) de substâncias para o tratamento de doenças de larga incidência em países pobres e ricos.
Pois os custos envolvidos nas diversas etapas de P&D de um medicamento são estimados em centenas de milhões de dólares. E o dinheiro precisa vir de algum lugar: Poder Público (isto é, a população), empresas (acionistas e investidores), etc.
Recentemente, um laboratório público anunciou a venda de um novo medicamento a “preço de custo”. Na verdade, a pesquisa do produto foi paga por um consórcio de países e organizações não-governamentais. O tal preço de custo referia-se apenas aos gastos de fabricação. Se o medicamento tivesse de ser desenvolvido integralmente – da pesquisa básica à última fase da pesquisa clínica –, seu preço seria muito maior.
Para o economista Jeffrey Sachs, assessor especial do secretário-geral da ONU para as Metas de Desenvolvimento do Milênio, doenças como a malária poderiam ser superadas por meio de investimentos coordenados mundialmente. Ele reconhece, no entanto, que faltam fundos globais para que este objetivo seja alcançado.
Enquanto a comunidade internacional não chega a um consenso sobre um grande pacto que defina fontes de financiamento, a indústria farmacêutica realiza os elevados investimentos necessários ao desenvolvimento de moléculas inovadoras, que serão mais tarde recuperados no preço de venda desses produtos.
Sem a decisiva contribuição da indústria, a mobilização para o controle da epidemia de Aids não teria tido o sucesso que alcançou, no bojo de um processo que levou à criação de 88 medicamentos e atualmente financia o teste de 92 novas substâncias.
Em 2006, a indústria farmacêutica mundial investiu mais de US$ 75 bilhões na pesquisa de moléculas para o tratamento de milhares de doenças, como tuberculose (19 substâncias), malária (20), doenças materno-infantis (219), doenças predominantes entre as mulheres (mais de 700), etc.
Para além da retórica e de projetos ainda incipientes, o fato é que os principais avanços das últimas décadas na síntese de medicamentos resultaram da iniciativa da indústria farmacêutica e não de governos, organismos internacionais ou ONGs.
(Ciro Mortella, O Globo, 25/08/2008)
Assinale a alternativa que estabelece relação de tempo à estrutura sintática em que ocorre:
Provas
Questão presente nas seguintes provas
Alguém paga
Trinta anos após a Declaração de Alma-Ata, aprovada na Conferência Internacional sobre Cuidados Primários de Saúde, cuja meta era levar “Saúde para Todos no Ano 2000”, um terço da população mundial continua sem acesso a serviços básicos de saúde. Em todo o mundo, centenas de milhões de pessoas sofrem com a falta de alimentos, água potável, moradia, saneamento básico e educação.
A situação persiste e desafia a liderança e a capacidade de ação de autoridades e especialistas porque lida com uma complexa conjunção de fatores políticos, sociais, econômicos e científico-tecnológicos. Problemas globais demandam soluções globais. Nesta categoria está a ampliação do acesso das populações aos medicamentos.
E o ponto central quando se aborda a questão da oferta de medicamentos a “preços acessíveis” são as fontes de financiamento para a pesquisa e o desenvolvimento (P&D) de substâncias para o tratamento de doenças de larga incidência em países pobres e ricos.
Pois os custos envolvidos nas diversas etapas de P&D de um medicamento são estimados em centenas de milhões de dólares. E o dinheiro precisa vir de algum lugar: Poder Público (isto é, a população), empresas (acionistas e investidores), etc.
Recentemente, um laboratório público anunciou a venda de um novo medicamento a “preço de custo”. Na verdade, a pesquisa do produto foi paga por um consórcio de países e organizações não-governamentais. O tal preço de custo referia-se apenas aos gastos de fabricação. Se o medicamento tivesse de ser desenvolvido integralmente – da pesquisa básica à última fase da pesquisa clínica –, seu preço seria muito maior.
Para o economista Jeffrey Sachs, assessor especial do secretário-geral da ONU para as Metas de Desenvolvimento do Milênio, doenças como a malária poderiam ser superadas por meio de investimentos coordenados mundialmente. Ele reconhece, no entanto, que faltam fundos globais para que este objetivo seja alcançado.
Enquanto a comunidade internacional não chega a um consenso sobre um grande pacto que defina fontes de financiamento, a indústria farmacêutica realiza os elevados investimentos necessários ao desenvolvimento de moléculas inovadoras, que serão mais tarde recuperados no preço de venda desses produtos.
Sem a decisiva contribuição da indústria, a mobilização para o controle da epidemia de Aids não teria tido o sucesso que alcançou, no bojo de um processo que levou à criação de 88 medicamentos e atualmente financia o teste de 92 novas substâncias.
Em 2006, a indústria farmacêutica mundial investiu mais de US$ 75 bilhões na pesquisa de moléculas para o tratamento de milhares de doenças, como tuberculose (19 substâncias), malária (20), doenças materno-infantis (219), doenças predominantes entre as mulheres (mais de 700), etc.
Para além da retórica e de projetos ainda incipientes, o fato é que os principais avanços das últimas décadas na síntese de medicamentos resultaram da iniciativa da indústria farmacêutica e não de governos, organismos internacionais ou ONGs.
(Ciro Mortella, O Globo, 25/08/2008)
Quanto ao tipo textual, o texto “Alguém paga a conta” é:
Provas
Questão presente nas seguintes provas
OpenOffice é uma suíte de aplicativos para escritório livre, multiplataforma, sendo distribuída para Microsoft
Windows, Unix, Solaris, Linux e Mac OS X. A suíte usa o formato ODF (OpenDocument) e é compatível com o
formato do Microsoft Office. Assinale qual dos componentes abaixo NÃO faz parte dessa suíte:
Provas
Questão presente nas seguintes provas
O Outlook Express é um programa responsável por enviar e receber emails e mensagens de grupo de notícias.
Assinale o que deverá ser feito para adicionar uma conta de email ou de notícias:
Provas
Questão presente nas seguintes provas
Assinale o programa abaixo adequado para o gerenciamento de Arquivos no Windows XP:
Provas
Questão presente nas seguintes provas
- Geografia do BrasilEnergia no BrasilProdução e consumo no Brasil
- Geografia GeralEnergia e IndústriaFontes de Energia e Recursos Naturais
- Geologia e Geomorfologia
O Brasil possui 6.430.000 km² de bacias sedimentares, das quais 4.880.000 km² são continentais. Ou seja, as bacias
sedimentares correspondem a 64% das terras emersas brasileiras e são importantes do ponto de vista econômico,
pois abrigam jazidas de minerais usados como fontes de energia, no caso do petróleo. No Brasil, a principal área de
produção e reserva está no(s) estado(s):
Provas
Questão presente nas seguintes provas
Com relação aos multiplexadores, assinale a afirmativa correta:
Provas
Questão presente nas seguintes provas
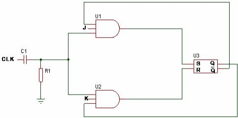
O circuito RC, no flip-flop mestre-escravo abaixo, possui como finalidade:

Provas
Questão presente nas seguintes provas
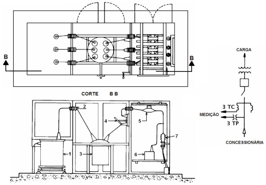
Analise a planta, o corte e o diagrama unifilar de uma subestação abaixadora. De acordo com a figura, os números 1, 2, 3, 4, 5, 6 e 7 indicam, respectivamente:

Provas
Questão presente nas seguintes provas
Cadernos
Caderno Container