Foram encontradas 750 questões.

A figura acima apresenta o croqui de um cômodo de uma residência onde as cotas indicadas estão em metros. No layout do programa AutoCad é acessada a ferramenta Add Scale e, na caixa de diálogo que se abre, são lançadas as informações mostradas na figura abaixo.

Diante do exposto, o croqui será plotado na escala:
Provas
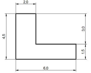
Um gestor ficou encarregado de gerenciar uma obra de construção civil, composta de várias atividades, com uma duração total planejada de 12 meses.
A tabela abaixo mostra a avaliação realizada por esse gestor ao fim do 5º mês da obra, referente a apenas uma atividade específica da obra.

A duração remanescente da atividade é de:
Provas
Na figura a seguir está representado de forma resumida um sistema predial de distribuição de água fria.

Na figura acima, I, II, III e IV correspondem, respectivamente, a:
Provas

A figura acima mostra o Teatro da Ribeira dos Icós, o mais antigo teatro do estado do Ceará, projetado pelo arquiteto Henrique Théberge e construído em 1860. Essa obra exemplifica um estilo arquitetônico que se iniciou com a chegada da missão cultural francesa ao Rio de Janeiro, em 1816.
Da análise do estilo arquitetônico do teatro e da época de sua construção, é correto concluir que o teatro é um exemplo da Arquitetura:
Provas
Provas
- Legislação e NormasNormas sobre Processos de Projetos na Arquitetura
- Processos de ProjetoEtapas do Processo
Segundo a Lei nº 8666/93, o Projeto Básico é o conjunto de elementos necessários e suficientes, com nível de precisão adequado, para caracterizar a obra ou serviço, ou complexo de obras ou serviços objeto da licitação, elaborado com base nas indicações dos estudos técnicos preliminares, que assegurem a viabilidade técnica e o adequado tratamento do impacto ambiental do empreendimento, e que possibilite a avaliação do custo da obra e a definição dos métodos e do prazo de execução.
De modo a atender o que prescreve a Lei, o Projeto Básico deverá apresentar:
Provas
No processo físico de filtração, o projeto da estação do tratamento de águas é robustamente impactado pela qualidade e volume de água a ser tratada, dentre outras características.
Nesse contexto, considerando as variáveis e características do processo de filtração lenta e do processo de filtração rápida, é correto afirmar que:
Provas
Disciplina: Ética e Regulação Profissional
Banca: FGV
Orgão: Câm. Salvador-BA
Provas
A tabela da esquerda apresenta um conjunto de elementos construtivos e a tabela da direita um conjunto de descrições.
Elemento Construtivo
1. Rufo
2. Batente
3. Pingadeira
4. Claraboia
5. Bandeira
Descrição
( ) Janela localizada acima do vão da porta, separada deste por um travessão.
( ) Marco de um vão de uma porta, que possui dois montantes e uma travessa.
( ) Lâmina fina de chapa metálica ou outro material impermeável, com função de evitar a penetração da água através das juntas de uma edificação.
( ) Abertura em um teto, vedada com material transparente ou translúcido, para permitir a iluminação natural.
( ) Dispositivo para escoamento das águas pluviais, de modo a impedir que escorram por uma parede.
A correta associação entre os elementos construtivos à sua respectiva descrição, de cima para baixo, é:
Provas
Com o fim da Segunda Guerra Mundial, processos de intervenção em centros urbanos internacionais ocorreram com objetivos, estratégias e resultados diferentes. Destaca-se aqui a Renovação e a Preservação Urbana.
Nesse contexto, é correto afirmar que:
Provas
Caderno Container