Foram encontradas 40 questões.
A figura abaixo ilustra um conjunto de cinco símbolos usados nas instalações elétricas, de acordo com a NBR5444:1989.

Esses símbolos representam, respectivamente:
Provas
Na figura abaixo, que contém parte de um projeto elétrico, estão representados alguns símbolos gráficos usadoseminstalações elétricas prediais.

Para os símbolos indicados pelas setas pontilhadas, identificados pelas letras A e B, é correto afirmar que representam,em sequência:
Provas
Diagrama funcional detalhado típico de uma malha de controle.

O elemento responsável pela setpoint da malha de controle é indicado por:
Provas
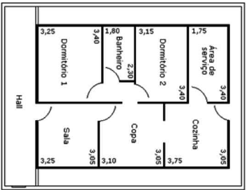
Tomando como base a planta baixa a seguir, determine o somatório das potências atribuídas às cargas de iluminação e tomadas de uso geral para a cozinha.

Considere:
Cos \( \varphi \) = 1 para cargas de ilumina
Cos \( \varphi \)= 0,8 para cargas de tomadas
Provas
O diagrama unifilar a seguir representa um sistema de partida estrela -triângulo. O contator responsável por conectar em estrela os terminais do motor deve ser capaz de conduzir uma corrente igual a:

Provas
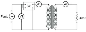
Considere o circuito abaixo, onde foram lidos os seguintes valores nos instrumentos.

V1 = voltímetro de ferro móvel > 120 V
A1 = amperímetro de ferro móvel > 1A
A2 = amperímetro de ferro móvel > 1,5A
W= wattímetro dinamométrico > 100W
O valor da potência elétrica transformada em trabalho e o fator de potência do circuito são, respectivamente:
Provas
No circuito da figura abaixo, o amperímetro registra uma corrente \( i = 0,2\,A \). Cada um dos três resistores representados na figura tem resistência \( R = 40\,\Omega \). Qual é a potência dissipada pelo par de resistores associado sem paralelo?

Provas
No sistema pneumático ilustrado abaixo, a indicação “a0” representa a válvula:

Provas
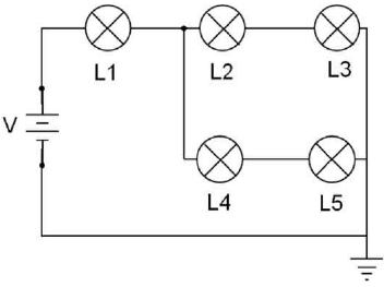
O circuito da figura a seguir representa um esquema de ligação de cinco lâmpadas de mesma resistência, cujo valor é dado por R. Admita que a tensão da fonte e as resistências no circuito se mantêm constantes. Após um intervalo de tempo longo, a lâmpada L3 queimou, ou seja, rompeu seu filamento e permaneceu apagada. Assim, com a queima da lâmpada L3, a(s) potência(s) dissipada(s) pela(s) lâmpada(s):

Provas
No Windows Explorer, a tecla ou combinação de teclas de atalho que permite recortar um arquivo ou uma pasta é:
Provas
Caderno Container