Magna Concursos

Foram encontradas 721 questões.

610959 Ano: 2017
Disciplina: Engenharia Civil
Banca: FCC
Orgão: ARTESP

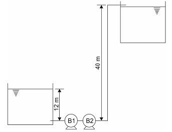
Em um edifício foram instaladas duas bombas iguais ligadas em série como ilustrado na figura abaixo.

Enunciado 610959-1

O sistema deve recalcar 0,01 m3/s do reservatório inferior para o superior. A perda de carga total no sistema é de 14 m. Como o rendimento das bombas é de 80%, a potência de cada bomba é, em CV,

 

Provas

Questão presente nas seguintes provas
610958 Ano: 2017
Disciplina: Engenharia Civil
Banca: FCC
Orgão: ARTESP
Uma viga de madeira, simplesmente apoiada, submetida a uma carga distribuída acidental de longa duração, será utilizada em ambiente de classe 2 de umidade. As tensões médias de compressão e de tração paralelas às fibras referidas ao teor de umidade de 12% são, respectivamente, 40 MPa e 100 MPa e o coeficiente de modificação kmod = kmod1 x kmod2 x kmod3= 0,54. As tensões resistentes de projeto paralelas às fibras de compressão e de tração, em MPa, são, respectivamente,
 

Provas

Questão presente nas seguintes provas
610957 Ano: 2017
Disciplina: Engenharia Civil
Banca: FCC
Orgão: ARTESP
Para o projeto e dimensionamento das peças de estruturas de aço de edifícios, o coeficiente de ponderação das resistências utilizado para a verificação das peças metálicas no estado-limite de serviço é
 

Provas

Questão presente nas seguintes provas
610956 Ano: 2017
Disciplina: Engenharia Civil
Banca: FCC
Orgão: ARTESP
Segundo a Lei n° 7.804/1989, que altera a Lei n° 9.433/1997, que dispõe sobre a Política Nacional do Meio Ambiente, o poluidor que expuser a perigo a incolumidade humana, animal ou vegetal, ou estiver tornando mais grave a situação de perigo existente, fica sujeito à pena de reclusão de
 

Provas

Questão presente nas seguintes provas
610955 Ano: 2017
Disciplina: Engenharia Civil
Banca: FCC
Orgão: ARTESP
No dimensionamento de estruturas metálicas no estado limite último, os coeficientes de segurança parciais aplicados para as combinações normais das ações permanentes de pesos próprios das estruturas metálicas e das estruturas pré-moldadas são, respectivamente,
 

Provas

Questão presente nas seguintes provas
610954 Ano: 2017
Disciplina: Engenharia Civil
Banca: FCC
Orgão: ARTESP
Após a execução da impermeabilização, recomenda-se realizar ensaio de estanqueidade com água limpa, para verificação de falhas na execução do tipo de impermeabilização utilizado, com duração mínima de
 

Provas

Questão presente nas seguintes provas
610953 Ano: 2017
Disciplina: Engenharia Civil
Banca: FCC
Orgão: ARTESP
No projeto e execução de sistemas prediais de esgoto sanitário de um edifício, a tubulação de ventilação, com comprimento de 10 m, deve ser instalada em aclive, em uma laje. A diferença mínima de cotas entre o ponto a jusante e a montante é, em centímetros,
 

Provas

Questão presente nas seguintes provas
610952 Ano: 2017
Disciplina: Engenharia Civil
Banca: FCC
Orgão: ARTESP
Durante a realização de sondagem de simples reconhecimento do subsolo de um terreno com SPT (Standard Penetration Test − Ensaio de Penetração Padrão) o tubo de revestimento deve ficar a uma distância de, no mínimo, X cm do fundo do furo, quando da operação de ensaio e amostragem. Somente em casos de fluência do solo para o interior do furo, deve ser admitido deixá-lo à mesma profundidade do fundo do furo. O valor de X, em centímetros, é
 

Provas

Questão presente nas seguintes provas
610951 Ano: 2017
Disciplina: Engenharia Civil
Banca: FCC
Orgão: ARTESP
Nos projetos de pavimentação, para identificação das diversas camadas de solo, pela inspeção expedita no campo, são feitas sondagens no eixo e nos bordos da estrada, devendo estas, de preferência, serem executadas a X m do eixo. O espaçamento máximo, entre dois furos de sondagem no sentido longitudinal, é de Y m a Z m, tanto em corte como em aterro, devendo reduzir-se, no caso de grande variação de tipos de solos. Os valores de X, Y e Z, são, respectivamente, em metros,
 

Provas

Questão presente nas seguintes provas
610950 Ano: 2017
Disciplina: Engenharia Civil
Banca: FCC
Orgão: ARTESP

Considere o projeto de estaqueamento para o pilar 1-A e os dados abaixo:

Enunciado 610950-1

Sobre o estaqueamento do pilar 1-A, considerando o recalque estrutural admissível de 15 mm, a carga admissível é

 

Provas

Questão presente nas seguintes provas