Foram encontradas 60 questões.

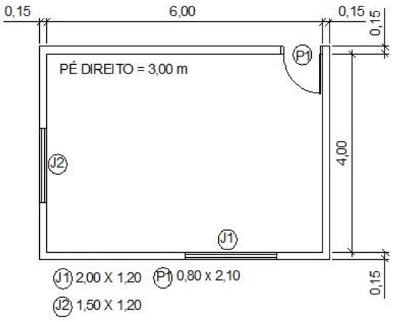
Considerando as dimensões indicadas na figura, para efeito de medição de serviços realizados, foram aferidas as áreas aproximadas de: reboco externo, interno e da laje de forro. Qual alternativa apresenta a área total de reboco?
Provas
Para a continuação de uma edificação, será necessária a concretagem dos pilares do pavimento térreo, sendo 30 pilares de seção quadrada, medindo 20 cm x 20 cm x 320 cm; 20 pilares de seção retangular, medindo 30 cm x 40 cm x 320 cm. Considera-se um acréscimo de 4% para perdas durante a concretagem. Qual alternativa corresponde ao volume aproximado de concreto em metros cúbicos (m³) a ser utilizado na concretagem?
Provas
Disciplina: Segurança e Saúde no Trabalho (SST)
Banca: UFSCAR
Orgão: UFSCAR
Os dispositivos ou produtos de uso individual utilizados pelo trabalhador, destinado a proteção contra riscos à segurança e saúde, recebem o nome de EPI (Equipamento de Proteção Individual). Qual é a alternativa incorreta sobre EPIs?
Provas
Qual das alternativas corresponde ao ensaio comumente utilizado em canteiros de obra para o recebimento do concreto usinado e qual sua finalidade?
Provas
No carregamento manual de uma betoneira, qual alternativa corresponde à sequência adequada de colocação dos materiais para mistura de um concreto?
Provas
Assinale a alternativa correta, quanto à inassiduidade habitual do servidor público:
Provas
Considere as seguintes afirmativas:
I. As indenizações são vantagens que integram o conceito de remuneração apenas para os fins de estabelecimento do teto remuneratório, atualmente fixado no valor de subsídio recebido pelos ministros do STF.
II. O servidor que acumular mais de dois períodos sem gozar férias receberá as férias vencidas em dobro, no momento em que vier a usufruir o direito.
III. O servidor que trabalha em condições insalubres e perigosas não pode acumular os adicionais de insalubridade e periculosidade e deixará de receber qualquer um dos adicionais quando não mais existirem as condições ou exposição aos riscos que derem causa à concessão.
Assinale a alternativa correta:
Provas
Uma vez detectada a acumulação ilegal de cargos, empregos ou funções públicas, a autoridade a que se refere o art. 143 da Lei nº 8.112/90:
Provas
Sobre a posse do servidor público, é correto afirmar que:
Provas
A Lei 8.112/90 e suas alterações posteriores prevê as seguintes penalidades disciplinares:
Provas
Caderno Container