Foram encontradas 890 questões.
Entre as afirmativas a seguir, assinale a opção correta que caracteriza as soluções de modelagem que utilizam a tecnologia BIM (Building Information Modeling).
Provas
Durante a leitura de um levantamento de campo, sem informações sobre ângulos entre as linhas de limite, o desenhista se deparou com o seguinte croquis:

Para garantir a correta reprodução do ângulo A, o valor da dimensão “x” deve ser de:
Provas
Ao verificar o quadro de áreas de um dos pavimentos de um projeto executivo, o desenhista percebeu a ausência de informação sobre a área útil do compartimento apresentado pela figura seguinte:

Dentre as alternativas a seguir, assinale a que expressa o valor correto a ser preenchido no quadro de áreas.
Provas
Considerando as coordenadas estabelecidas para o ponto (A) [2,0;-3,0;-3,0], pode-se afirmar que:
Provas
Um desenhista precisa identificar uma dimensão não cotada no desenho antigo, em escala de 1:20. Entretanto, só dispõe de uma régua comum. Ao utilizá-la, lê a dimensão de 15 cm. Assinale, dentre as opções a seguir, a que indica a medida correta, na escala indicada.
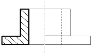
Provas
Analise a figura a seguir e identifique, dentre as alternativas, o tipo de perspectiva utilizado na representação da peça a ser fabricada.

Provas
Nos desenhos de arquitetura, as plantas baixas são representadas a partir da seção por um plano horizontal a uma cota aproximada de:
Provas
A NBR 8404/1984 fixa os símbolos para a identificação do estado das superfícies em projetos técnicos. De acordo com essa norma, o símbolo a seguir representa:

Provas
Nos desenhos de arquitetura, a representação de projeções de elementos superiores, acima ou anteriores ao plano de corte deve ser feita por:
Provas
Com base na NBR 10067/1995 pode-se afirmar que o desenho a seguir representa:

Provas
Caderno Container