Foram encontradas 876 questões.
A figura apresentada abaixo é bastante utilizada no acompanhamento e fiscalização de obras.

Efeito Trata-se de um diagrama de

Efeito Trata-se de um diagrama de
Provas
Questão presente nas seguintes provas
- Tecnologia das ConstruçõesSistemas e Elementos ConstrutivosSistemas EstruturaisPrincípios e Fundamentos
- Tecnologia das ConstruçõesSistemas e Elementos ConstrutivosSistemas EstruturaisMorfologia e Funcionamento das Estruturas
Na figura I, o galho da árvore apresenta uma variação nas dimensões de suas seções, aumentando da extremidade para o tronco. Tal variação tem uma razão estrutural de ser. Suponha uma fruta pendurada no extremo de um galho (figura II).

Considere:
I. A fruta, sob a ação da gravidade, aplica à extremidade do galho uma força igual ao seu peso.
II. Para que o equilíbrio se estabeleça, é necessário que, internamente, na seção considerada ocorra uma força igual e de sentido contrário ao peso da fruta (momento fletor).
III. As duas forças, de ação e reação, resultam num binário.
IV. As forças de ação e reação, tendem a provocar o giro da seção analisada, aplicando a ela um par de forças que tende a tracionar as fibras superiores e a comprimir as fibras inferiores (força cortante).
Está correto o que se afirma em

Considere:
I. A fruta, sob a ação da gravidade, aplica à extremidade do galho uma força igual ao seu peso.
II. Para que o equilíbrio se estabeleça, é necessário que, internamente, na seção considerada ocorra uma força igual e de sentido contrário ao peso da fruta (momento fletor).
III. As duas forças, de ação e reação, resultam num binário.
IV. As forças de ação e reação, tendem a provocar o giro da seção analisada, aplicando a ela um par de forças que tende a tracionar as fibras superiores e a comprimir as fibras inferiores (força cortante).
Está correto o que se afirma em
Provas
Questão presente nas seguintes provas
- Tecnologia das ConstruçõesSistemas e Elementos ConstrutivosSistemas EstruturaisPrincípios e Fundamentos
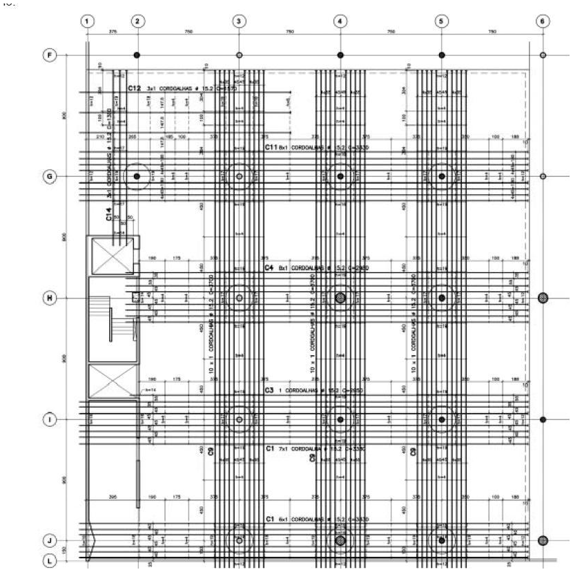
Considere o projeto de armação da laje do projeto executivo da estrutura de concreto armado e respectivas notas anexadas ao desenho:

Notas:

Verifica-se que a laje utilizada é do tipo

Notas:

Verifica-se que a laje utilizada é do tipo
Provas
Questão presente nas seguintes provas
Considere dois edifícios não-residenciais, caracterizados pela exigência de flexibilidade e pela importância da colocação dos serviços e circulações em suas plantas.

Neles,

Neles,
Provas
Questão presente nas seguintes provas
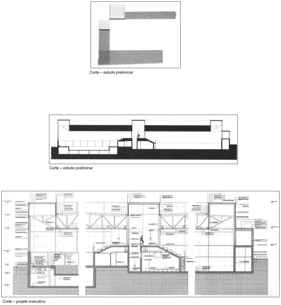
O corte é uma peça gráfica de grande importância tanto para o desenvolvimento quanto para a representação da espacialidade de um projeto arquitetônico, pois permite a compreensão de informações distintas daquelas presentes na planta. Considere os desenhos abaixo, cortes de distintas fases do desenvolvimento do projeto do Centro Desportivo em Galdácano (1996-2000), na Espanha, de autoria dos arquitetos Sol Madridejos e Juan Carlos Sancho Osinaga.

Em relação à quantidade de informações que os cortes podem fornecer, verifica-se que

Em relação à quantidade de informações que os cortes podem fornecer, verifica-se que
Provas
Questão presente nas seguintes provas
Considere o Piccolo Teatro del Mondo, projeto de Aldo Rossi (1979), realizado com estrutura tubular e placas de madeira sobre um barco, em Veneza.

Constata-se que essa obra
I. expressa a vontade de referenciar os monumentos que definem a memória de Veneza.
II. é uma contundente crítica ao modernismo e nada tem do movimento moderno.
III. é uma celebração da matéria, sendo a forma somente o veículo que a torna possível.
IV. apoia-se na iconografia como suporte do sentimento.
Está correto o que se afirma em

Constata-se que essa obra
I. expressa a vontade de referenciar os monumentos que definem a memória de Veneza.
II. é uma contundente crítica ao modernismo e nada tem do movimento moderno.
III. é uma celebração da matéria, sendo a forma somente o veículo que a torna possível.
IV. apoia-se na iconografia como suporte do sentimento.
Está correto o que se afirma em
Provas
Questão presente nas seguintes provas
Considere o projeto de James Stirling e equipe para uma série de residências estudantis da Universidade de St. Andrews (1964-68), paradigma nas discussões que envolvem conjuntos habitacionais:


Considerando tais edifícios, constata-se que


Considerando tais edifícios, constata-se que
Provas
Questão presente nas seguintes provas
- História da Arte e ArquiteturaArquitetura e Urbanismo Modernos
- ProjetosAnálise Projetual
- UrbanismoHistória e Teoria do Urbanismo
Considere os croquis do projeto para o Rio de Janeiro, de Le Corbusier (1929), e as fotomontagens realizadas a partir de matriz informática e de fotografias de época, a seguir,


e as afirmativas:
I. Os projetos revelam a observação minuciosa de Le Corbusier e um conhecimento notável dos lugares.
II. Le Corbusier queria "autoestrada" praticável e, portanto, realizável, negociando, de um jeito ou de outro, com as curvas de nível, a cidade existente.
III. Nenhuma inovação tecnológica adicional era necessária para a realização dessa "serpente" diante do mar.
IV. Para Le Corbusier, a arquitetura participa de maneira decidida, prática, total e mesmo totalitária do desejo de transformação do mundo.
Está correto o que se afirma em


e as afirmativas:
I. Os projetos revelam a observação minuciosa de Le Corbusier e um conhecimento notável dos lugares.
II. Le Corbusier queria "autoestrada" praticável e, portanto, realizável, negociando, de um jeito ou de outro, com as curvas de nível, a cidade existente.
III. Nenhuma inovação tecnológica adicional era necessária para a realização dessa "serpente" diante do mar.
IV. Para Le Corbusier, a arquitetura participa de maneira decidida, prática, total e mesmo totalitária do desejo de transformação do mundo.
Está correto o que se afirma em
Provas
Questão presente nas seguintes provas
Considere o conjunto arquitetônico do Museu do Pão, projeto de autoria do escritório Brasil Arquitetura (2008) e o seguinte poema de Augusto de Campos:
Eu defenderei até a morte o novo
por causa do antigo e até a vida o
antigo por causa do novo. O antigo
que foi novo é tão novo como o mais novo.


Analisando-se os princípios fundamentais desse projeto, é correto afirmar:
I. A dialética permanente entre tradição e invenção, somada à abertura crítica para assimilar e recriar linguagens e informações produzidas em outros cantos do planeta, é um traço central da cultura brasileira.
II. Tem-se de preservar o que de melhor cria-se e constrói-se em história, sob pena de aprisionar-se num presente desfigurador.
III. Tem-se de apostar no novo, porque ele é ingrediente fundamental de afirmação e de transformação das comunidades e do conjunto da sociedade.
IV. Nessa intervenção arquitetônico/museológica, tudo se tornou objeto expositivo: a estrutura dos edifícios, os fechamentos, o controle da luz, os passadiços, os materiais empregados, até os nichos para exposição.
Está correto o que se afirma em
Eu defenderei até a morte o novo
por causa do antigo e até a vida o
antigo por causa do novo. O antigo
que foi novo é tão novo como o mais novo.


Analisando-se os princípios fundamentais desse projeto, é correto afirmar:
I. A dialética permanente entre tradição e invenção, somada à abertura crítica para assimilar e recriar linguagens e informações produzidas em outros cantos do planeta, é um traço central da cultura brasileira.
II. Tem-se de preservar o que de melhor cria-se e constrói-se em história, sob pena de aprisionar-se num presente desfigurador.
III. Tem-se de apostar no novo, porque ele é ingrediente fundamental de afirmação e de transformação das comunidades e do conjunto da sociedade.
IV. Nessa intervenção arquitetônico/museológica, tudo se tornou objeto expositivo: a estrutura dos edifícios, os fechamentos, o controle da luz, os passadiços, os materiais empregados, até os nichos para exposição.
Está correto o que se afirma em
Provas
Questão presente nas seguintes provas
Considere os desenhos e imagens de seis obras de Lina bo Bardi, abaixo,

e a seguinte frase de Lina:
Mas o tempo linear é uma invenção do Ocidente, o tempo não é linear, é um maravilhoso emaranhado onde, a qualquer instante, podem ser escolhidos pontos e inventadas soluções, sem começo nem fim.
Observando-se tais obras constata-se que
I. sua criação é um mosaico capaz de juntar o impensável, não porque parta de projetos, não porque tenha fantasias, mas, ao contrário, porque trabalha com o material disponível.
II. ela exercia a arquitetura pela arquitetura, sem ficar pincelando em seu trabalho referências de outros campos como arte, filosofia, antropologia, literatura e psicanálise.
III. seu trabalho apoia-se na ideia anti-intervencionista, representando a defesa do caráter sagrado dos edifícios con- siderados monumentos.
IV. Lina foi uma defensora do novo, sem se deixar perturbar pelo pré-existente, sem necessidade de contar com o entorno para recriá-lo ou traduzir em sua obra. Está correto o que se afirma APENAS em

e a seguinte frase de Lina:
Mas o tempo linear é uma invenção do Ocidente, o tempo não é linear, é um maravilhoso emaranhado onde, a qualquer instante, podem ser escolhidos pontos e inventadas soluções, sem começo nem fim.
Observando-se tais obras constata-se que
I. sua criação é um mosaico capaz de juntar o impensável, não porque parta de projetos, não porque tenha fantasias, mas, ao contrário, porque trabalha com o material disponível.
II. ela exercia a arquitetura pela arquitetura, sem ficar pincelando em seu trabalho referências de outros campos como arte, filosofia, antropologia, literatura e psicanálise.
III. seu trabalho apoia-se na ideia anti-intervencionista, representando a defesa do caráter sagrado dos edifícios con- siderados monumentos.
IV. Lina foi uma defensora do novo, sem se deixar perturbar pelo pré-existente, sem necessidade de contar com o entorno para recriá-lo ou traduzir em sua obra. Está correto o que se afirma APENAS em
Provas
Questão presente nas seguintes provas
Cadernos
Caderno Container