Foram encontradas 1.700 questões.
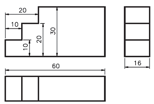
Se uma peça real tem, para maior dimensão, 6 mm, qual a escala usada no desenho abaixo que apresenta as medidas da peça em mm?

Provas
O ensaio de tração é amplamente utilizado na indústria de componentes mecânicos, devido às vantagens de fornecer quantitativos das características dos materiais.

No gráfico Tensão (T) x Deformação (ε) apresentado acima, o item (B) e (A’) representam, respectivamente, os limites
Provas
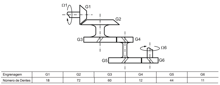
A Figura abaixo representa um arranjo de engrenagens onde um torque é fornecido ao eixo da engrenagem G1.

Nesse arranjo de engrenagens, a razão Ω6/Ω1 entre as velocidades é
Provas
Provas
Em uma oficina mecânica o técnico recebeu a tarefa de elaborar o desenho de uma peça que deveria ser cortada em toda a sua extensão por mais de um plano de corte.
Dependendo da forma particular da peça e dos detalhes a serem mostrados, o tipo de corte a ser representado será
Provas
Considere a Figura abaixo:

No arranjo de engrenagens da Figura, a razão entre o torque que equilibra a massa m, presa à extremidade da barra de massa desprezível e de comprimento L = 1 m, e o peso P da mesma massa, na posição mostrada, é
Provas
Uma viga engastada em uma de suas extremidades e livre na outra é solicitada por uma força F, concentrada no meio de seu comprimento.
Se a distância entre as extremidades da viga é L, o momento fletor atuante na extremidade engastada é calculado pela expressão
Provas
Provas
Provas
Dado calor específico do ouro: 130 J kg-1 K-1
Provas
Caderno Container