Foram encontradas 50 questões.
A projeção em plano horizontal da área construída situada acima do nível do solo é a área:
Provas

O símbolo complementar, apresentado na imagem acima, indica:
Provas
Para ser considerada uma rampa, a inclinação da superfície de piso, longitudinal ao sentido de caminhamento, deve ter declividade igual ou superior a
Provas
Nos projetos de acessibilidade há elementos ou condições que podem interferir no fluxo de pedestres, como, por exemplo, mobiliário urbano, entradas de edificações junto ao alinhamento, vegetação, postes de sinalização, entre outros. Segundo a Norma Técnica sobre o assunto, esses elementos ou condições recebem o nome de
Provas

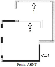
A imagem acima representa uma planta de reforma de uma pequena edificação, onde haverá paredes a construir, paredes que deverão ser mantidas e paredes que devem ser demolidas. Dessa maneira, e conforme Norma Técnica de representações arquitetônicas, assinale a alternativa que traz a convenção correta, conforme as indicações da figura.
Provas

A figura acima representa a estrutura de um telhado. Assinale a alternativa que traga a nomenclatura correta das estruturas indicadas pelas letras A; B e C.
Provas
Analise as assertivas e assinale a alternativa correta. De acordo com o art. 325 da Lei Orgânica de Maricá, a conservação do solo é de interesse público em todo território do Município, impondo-se a coletividade e ao Poder Público o dever de preservá-lo e cabendo a este:
I. estabelecer regimes de conservação e elaborar normas de preservação dos recursos do solo e da água, assegurando o uso múltiplo desta.
II. orientar os produtores rurais sobre técnicas de manejo e recuperação de solo, através de serviços de extensão rural.
III. desenvolver e estimular pesquisa de tecnologia de conservação do solo.
IV. desenvolver infraestrutura física e social que garanta o emprego na zona urbana criando condições de êxodo rural para o homem no campo.
V. proceder ao zoneamento agrícola, considerando os objetivos e as ações de política agrícola previstas neste capítulo.
Provas
De acordo com a Lei Orgânica de Maricá, informe se verdadeiro (V) ou falso (F) para o que se afirma e assinale a alternativa com a sequência correta.
( ) O Prefeito e Vice-Prefeito, os Vereadores Municipais, bem como as pessoas ligadas a qualquer deles por matrimônio ou parentesco, afim ou consanguíneo, até o segundo grau ou por doação, não poderão contratar com o Município, subsistindo a proibição até três meses após findas as respectivas funções.
( ) A Prefeitura e a Câmara são obrigadas a fornecer a qualquer interessado, no prazo máximo de quinze dias, certidões e informações de atos, contratos e decisões, desde que requeridas para fim de direito determinado, sob pena de responsabilidade da autoridade ou funcionário que negar ou retardar sua expedição. No mesmo prazo deverão atender às requisições judiciais se outro não for fixado pelo Juiz.
( ) Cabe ao Prefeito a administração de todos os bens municipais, inclusive os utilizados pela Câmara em seus serviços.
( ) A devolução de tributos indevidamente pagos, ou pagos a maior, será feita pelo seu valor original pago indevidamente, sem obrigatoriedade de correção.
Provas

A convenção de material exemplificado na figura acima, em um projeto de arquitetura representa
Provas
A última revisão do projeto executivo, em que a representação gráfica constante no projeto da edificação está condizente com a obra acabada, ou seja, todas as alterações realizadas durante a obra devem estar devidamente registradas deste documento e podem facilitar as manutenções ou intervenções na edificação, é o documento denominado de
Provas
Caderno Container