Foram encontradas 104 questões.
O texto refere-se as características do(s)
Provas
Leia o fragmento e responda à questão.
Foi um período da História do Brasil em que houve cassação de direitos políticos de opositores ao regime; repressão aos movimentos sociais e manifestações políticas de oposição; censura aos meios de comunicação; censura aos artistas; aproximação dos Estados Unidos; controle dos sindicatos; e implantação do bipartidarismo.
O texto refere-se as características do(s)
Provas
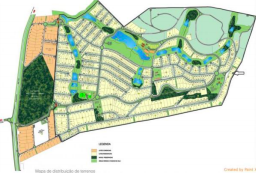
Analise as imagens abaixo e responda à questão.
Imagem 1 – Favela Sol Nascente: Ceilândia-DF

Imagem 2 – Vista aérea do Parque Flamboyant - Goiânia

Imagem 3 – Mapa de distribuição de terrenos em condomínio fechado em Goiânia

Imagem 4 – Vista aérea e parcial de Goiânia e de
Aparecida de Goiânia

Qual das imagens apresenta o fenômeno da conurbação?
Provas
Imagem 2 – Vista aérea do Parque Flamboyant - Goiânia

Imagem 3 – Mapa de distribuição de terrenos em condomínio fechado em Goiânia
Imagem 4 – Vista aérea e parcial de Goiânia e de Aparecida de Goiânia
Qual das imagens apresenta o fenômeno da conurbação?
Provas
Provas
Disciplina: Administração de Recursos Materiais
Banca: Itame
Orgão: Pref. Campinorte-GO
- Classificação de MateriaisTipos de Classificação de MateriaisAplicação, Perecibilidade e Periculosidade
Provas
Provas
Provas
Provas
Provas
Caderno Container