Magna Concursos

Foram encontradas 690 questões.

No ciclo do nitrogênio, a fixação biológica é realizada por algumas bactérias, cianobactérias ou fungos que transformam o nitrogênio (N2 ) em
 

Provas

Questão presente nas seguintes provas
Relacione o tipo de bomba a sua característica.
1. Centrífuga 2. De êmbolo manual 3. Compressor
( ) Baixa eficiência (25% a 60%), porém de baixo custo e de operação muito simples. Bomba de deslocamento com vazão variando entre 10 e 50L/min.
( ) Boa eficiência (50% a 85%) e simples manutenção. Bomba de velocidade com vazão variável a partir de 5L/min. ( ) Baixa eficiência (25% a 60%), porém requer cuidado permanente. Bomba a ar comprimido com vazão variando entre 25L/min e 10000L/min
Assinale a opção que indica a relação correta, na ordem apresentada.
 

Provas

Questão presente nas seguintes provas
Deseja-se projetar um conjunto elevatório (motor-bomba) paravencer a diferença de nível entre o ponto de captação de água eo ponto de armazenamento. Para esse projeto, levantaram-se asseguintes informações:

• Altura de sucção = 2m

• Altura de recalque = 9m

• Perdas de carga = 1m

• Rendimento global do conjunto = 67%

• Vazão = 0,2m3 /s

Admitindo que o peso específico da água é de 1000kgf/m3 , a potência desse conjunto deve ser de

 

Provas

Questão presente nas seguintes provas
Na construção de redes de abastecimento de água, diferentes tipos de materiais podem ser usados.
As opções a seguir apresentam alguns deles, à exceção de uma.
Assinale-a.
 

Provas

Questão presente nas seguintes provas
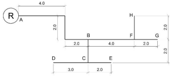
A figura a seguir apresenta a rede de abastecimento de água de uma cidade (dimensões em km).
Enunciado 3553004-1
Sabendo que a vazão no reservatório R é de 92L/s e desprezando as perdas de carga ao longo da rede, a vazão no trecho BF da rede é de
 

Provas

Questão presente nas seguintes provas
Sobre a captação de água para a implantação de um sistema de abastecimento, analise as afirmativas a seguir.
I. A captação de água de um lençol artesiano é realizado normalmente em fundos de vale ou nas suas proximidades utilizando o sistema de drenos coletores ou poços rasos. II. A captação de água em lençóis freáticos se faz mediante a perfuração de poços tubulares profundos. III. Na captação e tomada de água em mananciais superficiais, deverão ser avaliados os elementos referentes às características físicas, químicas e bacteriológicas da água a ser aproveitada, atentando à determinação dos eventuais focos poluidores à montante do local de captação escolhido.
Está correto o que se afirma em
 

Provas

Questão presente nas seguintes provas
A população futura estimada no projeto de abastecimento deágua de uma cidade é de 36.000 habitantes.
Considere que: • a taxa de consumo per capita de água na cidade é de180L/habitante por dia. os coeficientes do dia e da hora de maior consumo são iguais a 1,2 e 1,6, respectivamente.
• o abastecimento será direto, ininterrupto, sem reservatório de distribuição.

A vazão na adutora que abastecerá essa cidade deverá ser de

 

Provas

Questão presente nas seguintes provas
Sobre os padrões de potabilidade da água, assinale V para a afirmativa verdadeira e F para a afirmativa falsa.
( ) A água para consumo humano deve possuir pH no intervalo de 6,5 a 8,5 e concentração mínima de cloro residual livre, em qualquer ponto da rede de distribuição, igual a 0,2mg/L. ( ) Águas mais duras, devido à presença de cloretos, sulfatos ou bicarbonatos de cálcio e magnésio, são convenientes para a indústria, pois minimizam a corrosão de equipamentos. ( ) A presença de nitrogênio amoniacal na água indica poluição recente, enquanto os nitratos indicam poluição ocorrida há mais tempo.
As afirmativas são, respectivamente,
 

Provas

Questão presente nas seguintes provas
O abastecimento de água potável à população tem importância sanitária, social e econômica. Assinale a opção que apresenta um aspecto sanitário e outro econômico, nessa ordem, associado ao abastecimento de água.
 

Provas

Questão presente nas seguintes provas
2841436 Ano: 2022
Disciplina: Direitos Humanos
Banca: FGV
Orgão: POLITEC-AP

Analise, em consonância com as disposições da Lei nº 10.216/2001, as assertivas a seguir:

I. Internação involuntária é aquela determinada pela Justiça.

II. É responsabilidade do Estado o desenvolvimento da política de saúde mental, a assistência e a promoção de ações de saúde aos portadores de transtornos mentais, com a devida participação da sociedade e da família.

III. É permitida a internação de pacientes portadores de transtornos mentais em instituições com características asilares.

Está correto o que se afirma em

 

Provas

Questão presente nas seguintes provas