Foram encontradas 1.200 questões.
Assinale a opção que completa corretamente as lacunas da sentença abaixo.
As são peças deformáveis que se intercalam nas tubulações com a finalidade de absorver total ou parcialmente as dilatações provenientes das variações de e também, em alguns casos, com a finalidade de impedir a propagação de ou de esforços mecânicos.
Provas
No forjamento por martelo de forja, a pressão de forjamento atinge o seu valor máximo
Provas
Observe a figura a seguir.

O elevador representado na figura acima se encontra projetado para suportar carga máxima Cmáx = 8 kN (10 pessoas). O peso do elevador é Pe = 1 kN e o contrapeso possui a mesma carga CP = 1 kN. Determine a potência do motor M, em W, para que o elevador se desloque com velocidade constante v = 1 m/s, e, a seguir, assinale a opção correta.
Provas
Com relação às especificações dos cordões de soldas por fusão (a arco ou gás) em desenho mecânico, é correto afirmar que:
Provas
Observe as ilustrações a seguir.

Assinale a opção que identifica, respectivamente, de I a V, os símbolos de solda acima.
Provas
Observe o gráfico a seguir.

Em relação ao gráfico acima, é correto afirmar que, quando se aumenta a porcentagem de carbono no aço, observa-se uma mudança no diagrama tensão-deformação. Esta mudança produz
Provas
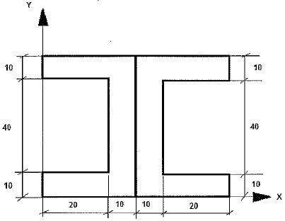
Observe a figura a seguir.

Determine as coordenadas XG e YG, em mm, do centro de gravidade do perfil duplo C acima, considerando que as dimensões indicadas na figura estão representadas em mm. Em seguida, assinale a opção correta.
Provas
Observe a figura a seguir.

Determine as trações nos pinos das polias B e C, e a força P nos cabos, necessárias para sustentar a carga de 600 N, utilizando o sistema de polias sem atrito, conforme representado na figura acima, assinalando em seguida a opção correta.
Provas
Assinale a opção que apresenta dois tipos de compressores rotativos.
Provas
Observe a figura a seguir.

Para a viga bi-apoiada acima, assinale a opção que descreve o valor do momento fletor máximo.
Provas
Caderno Container