Foram encontradas 730 questões.
A medida de dureza Rockwell, indicada para metais que foram submetidos a tratamento de cementação, utiliza pré-carga de
Provas
A radiografia industrial de peças fabricadas com materiais de engenharia baseia-se na
Provas
A força eletromotriz de um termopar como função da temperatura é um exemplo de uma relação entre um estímulo e a resposta correspondente, sob condições definidas, que pode ser expressa na forma de uma equação matemática, uma tabela numérica ou um gráfico. Esse conceito é conhecido como
Provas

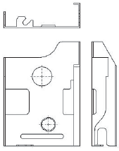
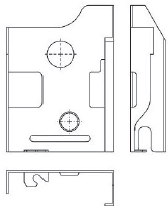
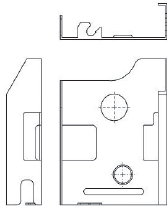
A figura acima é a representação em vista isométrica, no primeiro diedro, de uma peça do mecanismo de travamento eletrônico de uma porta.
As vistas frontal, lateral esquerda e superior, no primeiro diedro, estão representadas em
Provas
A expressão do cálculo da correção devido à temperatura é dada por
\( C = [ \alpha_{SM} (T_{SM} - 20^{ \circ} C) - \alpha_{Peça} ( T_{peça} - 20^{ \circ}C)]. L \)
Uma barra de zinco, cujo coeficiente de dilatação térmica é igual a 28 x 10-6/K, a uma temperatura de 28 ºC é medida por um paquímetro de aço, cujo coeficiente de dilatação térmica é igual a 12 x 10-6/K, guardado em uma sala a 22 ºC. O resultado da medição é 37,412 mm. A parcela do erro devido à temperatura, a correção e a indicação corrigida, em milímetros, são, respectivamente, iguais a
Provas

A figura acima representa um engrenamento de
Provas
Nos processos metrológicos, a rastreabilidade é uma propriedade do resultado de uma medição relacionada a
Provas
Um aço possui um módulo de elasticidade de 200 GPa. Se esse valor foi obtido com base em um ensaio de tração de uma barra, na qual a deformação específica foi de 2.000\( \mu \), a tensão normal, em MPa, atuante na barra relativamente a essa deformação é
Provas
Uma barra de 20 cm de comprimento é carregada por tração até apresentar uma deformação de 0,02 mm. Para essa condição, a deformação específica, em \( \mu \), sofrida pela barra é
Provas

Uma viga biapoiada ABC é solicitada por uma força concentrada F atuante conforme mostrado na figura acima. O valor da reação no apoio B será
Provas
Caderno Container