Foram encontradas 566 questões.
- Instalações PrediaisInstalações Hidrossanitárias
- ProjetosAnálise Projetual
- Tecnologia das ConstruçõesCoberturas
- Tecnologia das ConstruçõesSistemas e Elementos Construtivos
Observe o projeto do Estádio Municipal de Braga, em Portugal (2000-03), do arquiteto português Eduardo Souto de Moura.





Em relação às instalações prediais, importantes em projetos desse porte e natureza, constata-se que as águas pluviais da cobertura principal são escoadas





Em relação às instalações prediais, importantes em projetos desse porte e natureza, constata-se que as águas pluviais da cobertura principal são escoadas
Provas
Questão presente nas seguintes provas
- ProjetosAnálise Projetual
- Tecnologia das ConstruçõesSistemas e Elementos ConstrutivosSistemas EstruturaisMorfologia e Funcionamento das Estruturas
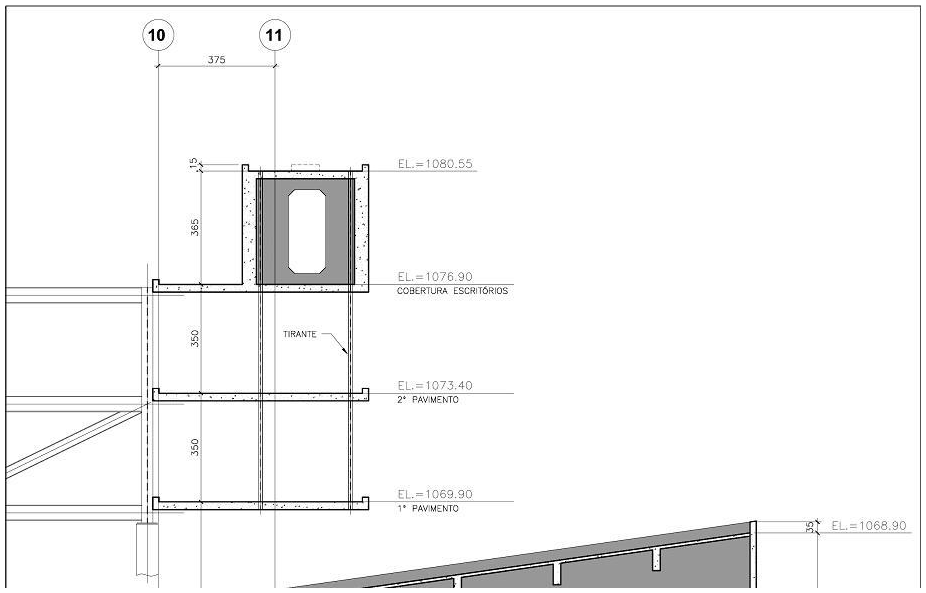
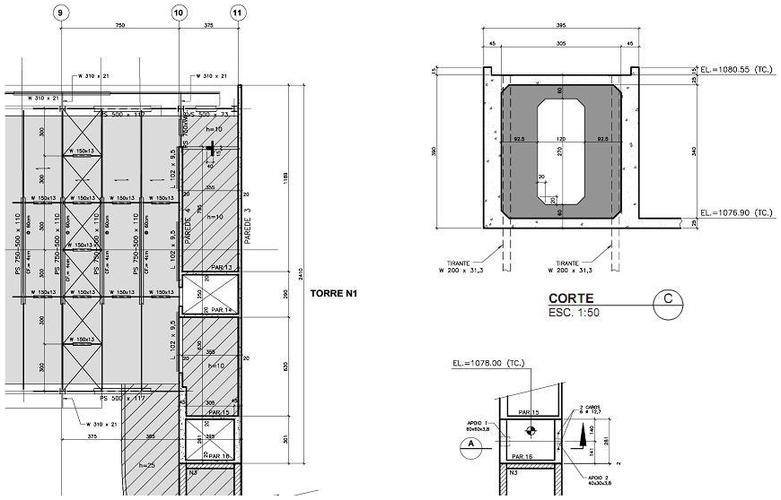
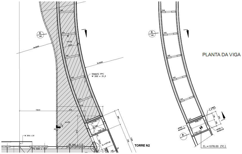
Observe, na obra da nova sede do Sebrae Nacional em Brasília, DF (2008-10), a solução das varandas de circulação penduradas na viga de cobertura.








Analisando as imagens, os desenhos das formas e armações do projeto executivo da estrutura, verifica-se que
I. as grandes vigas da cobertura são do tipo vierendel e bi-apoiadas.
II. as grandes vigas que sustentam as varandas penduradas utilizam o tipo de articulação chamada gerber, ou também dente gerber.
III. os tirantes que sustentam as varandas de circulação possuem massa linear de 31,3 kg/m.
IV. os tirantes que sustentam as varandas de circulação possuem diâmetro de 200 mm.
É correto o que consta em








Analisando as imagens, os desenhos das formas e armações do projeto executivo da estrutura, verifica-se que
I. as grandes vigas da cobertura são do tipo vierendel e bi-apoiadas.
II. as grandes vigas que sustentam as varandas penduradas utilizam o tipo de articulação chamada gerber, ou também dente gerber.
III. os tirantes que sustentam as varandas de circulação possuem massa linear de 31,3 kg/m.
IV. os tirantes que sustentam as varandas de circulação possuem diâmetro de 200 mm.
É correto o que consta em
Provas
Questão presente nas seguintes provas
- Tecnologia das ConstruçõesSistemas e Elementos ConstrutivosSistemas EstruturaisMorfologia e Funcionamento das Estruturas
A viga composta de barras resistentes na forma de quadros, unidas entre si por meio de ligações rígidas, que devem resistir às forças normais e cortantes e também aos momentos fletores, é denominada:


Provas
Questão presente nas seguintes provas
O corte é uma peça gráfica de grande importância, pois permite a compreensão de informações distintas daquelas presentes na planta. Os desenhos abaixo são cortes do projeto de um edifício habitacional em Colonia Juárez (2006-10), México DF, de autoria dos arquitetos Francisco Pardo e Julio Amezcua.


Em relação às informações que os cortes podem fornecer, verifica-se que


Em relação às informações que os cortes podem fornecer, verifica-se que
Provas
Questão presente nas seguintes provas
Observe o projeto da Biblioteca Municipal de Viana do Castelo em Portugal (2001-07), obra do arquiteto Álvaro Siza Vieira.





A expressão arquitetônica proposta resulta essencialmente das seguintes opções:
I. Sistema construtivo baseado fundamentadamente na pré-fabricação de componentes.
II. Predomínio de extensas aberturas horizontais complementadas por lanternins.
III. Definição volumétrica intencionalmente condicionada ao diálogo jardim/construção.
IV. Vistas sobre o rio em grande extensão do edifício, pela elevação da maior parte de sua superfície, com apoios nos dois extremos.
É correto o que consta em





A expressão arquitetônica proposta resulta essencialmente das seguintes opções:
I. Sistema construtivo baseado fundamentadamente na pré-fabricação de componentes.
II. Predomínio de extensas aberturas horizontais complementadas por lanternins.
III. Definição volumétrica intencionalmente condicionada ao diálogo jardim/construção.
IV. Vistas sobre o rio em grande extensão do edifício, pela elevação da maior parte de sua superfície, com apoios nos dois extremos.
É correto o que consta em
Provas
Questão presente nas seguintes provas
Nos estudos para a construção de Terminais de Passageiros deve-se levar em consideração a vocação comercial definida para aquele sítio aeroportuário. Para atender às necessidades operacionais das empresas aéreas e dos usuários dos serviços de transporte aéreo, é correto afirmar:
Provas
Questão presente nas seguintes provas
- ProjetosAnálise Projetual
- Tecnologia das ConstruçõesSistemas e Elementos ConstrutivosSistemas EstruturaisMorfologia e Funcionamento das Estruturas
Observe a residência na praia de Tijucopava, na cidade do Guarujá, SP (1996-97), obra do arquiteto Marcos Acayaba.



Analisando as imagens, constata-se que



Analisando as imagens, constata-se que
Provas
Questão presente nas seguintes provas
Observe o Plano Piloto para a urbanização da baixada compreendida entre a Barra da Tijuca, o Pontal de Sepetiba e Jacarepaguá, no Estado do Rio de Janeiro, projeto do arquiteto Lucio Costa (1969).





Considerando a preocupação com a ação do homem sobre o meio ambiente presentes no urbanismo e na arquitetura contemporâneos, considere:
I. Como o meio ambiente não era agenda da época, não houve grande preocupação em estudar o local sob o ponto de vista ecológico e energético.
II. A boa prática da arquitetura e do urbanismo sempre se preocupou em reduzir ou eliminar significativamente o impacto negativo dos edifícios em seus ocupantes e no meio ambiente.
III. Por ser área bloqueada pelos maciços da Tijuca e da Pedra Branca, que lhe dificultam o acesso, propõe-se um sistema de túneis e vias de acesso para possibilitar ocupação imobiliária indiscriminada e democrática.
IV. Trata-se essencialmente de solução urbanística adequada a um programa de caráter recreativo, residencial e turístico, permitindo a inevitável expansão urbana da cidade.
É correto o que consta em





Considerando a preocupação com a ação do homem sobre o meio ambiente presentes no urbanismo e na arquitetura contemporâneos, considere:
I. Como o meio ambiente não era agenda da época, não houve grande preocupação em estudar o local sob o ponto de vista ecológico e energético.
II. A boa prática da arquitetura e do urbanismo sempre se preocupou em reduzir ou eliminar significativamente o impacto negativo dos edifícios em seus ocupantes e no meio ambiente.
III. Por ser área bloqueada pelos maciços da Tijuca e da Pedra Branca, que lhe dificultam o acesso, propõe-se um sistema de túneis e vias de acesso para possibilitar ocupação imobiliária indiscriminada e democrática.
IV. Trata-se essencialmente de solução urbanística adequada a um programa de caráter recreativo, residencial e turístico, permitindo a inevitável expansão urbana da cidade.
É correto o que consta em
Provas
Questão presente nas seguintes provas
- Tecnologia das ConstruçõesSistemas e Elementos ConstrutivosSistemas EstruturaisPrincípios e Fundamentos
- Tecnologia das ConstruçõesSistemas e Elementos ConstrutivosSistemas EstruturaisMorfologia e Funcionamento das Estruturas
Os apoios, elementos que vinculam externamente a estrutura, podem ser imaginados substituídos por forças que são chamadas reações de apoio ou reações de vínculo. Tais vínculos podem ser
I. insuficientes para garantir a necessária mobilidade da estrutura, caso em que é denominada hipostática.
II. estritamente suficientes, caso em que a estrutura é denominada isostática.
III. superabundantes, caso em que a estrutura é denominada hiperestática.
IV. estáticos (invariáveis no tempo, ou variáveis muito lentamente) ou dinâmicos (variáveis bruscamente no tempo).
É correto o que consta em
I. insuficientes para garantir a necessária mobilidade da estrutura, caso em que é denominada hipostática.
II. estritamente suficientes, caso em que a estrutura é denominada isostática.
III. superabundantes, caso em que a estrutura é denominada hiperestática.
IV. estáticos (invariáveis no tempo, ou variáveis muito lentamente) ou dinâmicos (variáveis bruscamente no tempo).
É correto o que consta em
Provas
Questão presente nas seguintes provas
Os traçados das redes de distribuição de água, até os pontos de tomada das instalações prediais, podem ser agrupados do modo
I. espinha de peixe.
II. grelha.
III. anel.
IV. sobreposto.
É correto o que consta em
I. espinha de peixe.
II. grelha.
III. anel.
IV. sobreposto.
É correto o que consta em
Provas
Questão presente nas seguintes provas
Cadernos
Caderno Container