Magna Concursos

Foram encontradas 120 questões.

623152 Ano: 2016
Disciplina: Engenharia Mecânica
Banca: CESPE / CEBRASPE
Orgão: FUB
Provas:

A figura a seguir mostra um mancal com a indicação dos seguintes parâmetros operacionais: folga, velocidade de rotação do eixo, temperatura e carga.

enunciado 623152-1

Com referência ao mancal mostrado, julgue o próximo item, a respeito da ação da viscosidade do óleo lubrificante sobre os parâmetros indicados.

Quanto maior for a velocidade de rotação do eixo do mancal, menor deverá ser a viscosidade do óleo lubrificante a ser utilizado.

 

Provas

Questão presente nas seguintes provas
623148 Ano: 2016
Disciplina: Engenharia Mecânica
Banca: CESPE / CEBRASPE
Orgão: FUB
Provas:
Para a fabricação de uma peça de ferro fundido, um cliente solicitou que todos os desenhos do projeto fossem feitos no primeiro diedro, de acordo com as normas da ABNT. O desenhista apresentou, então, os desenhos mostrados nas figuras I e II seguintes.
enunciado 623148-1

Com base nessas informações e nas figuras mostradas, julgue o item subsequente.

A vista indicada por A na figura II é uma vista auxiliar de simples rebatimento, que substitui a vista lateral.

 

Provas

Questão presente nas seguintes provas
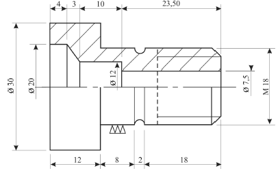
623147 Ano: 2016
Disciplina: Engenharia Mecânica
Banca: CESPE / CEBRASPE
Orgão: FUB
Provas:

A figura seguinte mostra o desenho técnico, em escala 1:2, de uma peça torneada confeccionada em aço.

enunciado 623147-1

Considerando a figura mostrada e as informações a ela correspondentes, julgue o item que se segue.

Uma das superfícies da peça deverá ser retificada, e uma outra, rosqueada.

 

Provas

Questão presente nas seguintes provas
623146 Ano: 2016
Disciplina: Engenharia Mecânica
Banca: CESPE / CEBRASPE
Orgão: FUB
Provas:

A respeito das características dos ferros fundidos, que podem ser alternativas ao aço em diversas aplicações, julgue o próximo item.

Os ferros fundidos nodulares possuem uma estrutura com nódulos de grafite, o que confere a eles ductilidade comparável à dos aços.

 

Provas

Questão presente nas seguintes provas
623144 Ano: 2016
Disciplina: Engenharia Mecânica
Banca: CESPE / CEBRASPE
Orgão: FUB
Provas:

A figura seguinte ilustra o uso de uma escala específica na medição de duas peças.

enunciado 623144-1

Com referência à figura, julgue o próximo item.

Os comprimentos A e B são iguais a 49 mm e 18 mm, respectivamente.

 

Provas

Questão presente nas seguintes provas
623143 Ano: 2016
Disciplina: Engenharia Mecânica
Banca: CESPE / CEBRASPE
Orgão: FUB
Provas:

Com relação à lubrificação industrial para controle de atrito, julgue o item que se segue.

Um princípio básico da lubrificação consiste na interposição de uma substância fluida entre duas superfícies, para que o atrito fluido-sólido prevaleça sobre o atrito sólido-sólido.

 

Provas

Questão presente nas seguintes provas
623142 Ano: 2016
Disciplina: Engenharia Mecânica
Banca: CESPE / CEBRASPE
Orgão: FUB
Provas:

O aço é fabricado de acordo com as seguintes etapas sequenciais: redução do minério de ferro em alto forno, refino em aciaria e laminação para finalização do produto. A respeito desse processo, julgue o item que se segue.

Na transformação do ferro-gusa em aço, o refino é feito em fornos especiais, mediante a queima do excesso de carbono por injeção de nitrogênio a alta pressão e adição de elementos de liga.

 

Provas

Questão presente nas seguintes provas
623141 Ano: 2016
Disciplina: Engenharia Mecânica
Banca: CESPE / CEBRASPE
Orgão: FUB
Provas:

A respeito das ligas metálicas não ferrosas, julgue o item subsecutivo.

Mancais de deslizamento são comumente fabricados com bronze devido à alta resistência ao desgaste por fricção que esse metal apresenta.

 

Provas

Questão presente nas seguintes provas
623140 Ano: 2016
Disciplina: Engenharia Mecânica
Banca: CESPE / CEBRASPE
Orgão: FUB
Provas:

O emprego de lubrificantes líquidos e graxas é comum na lubrificação de máquinas e equipamentos. Em relação a lubrificantes e suas características, julgue o item subsequente.

Os óleos minerais puros são obtidos do refino de certos sais minerais, como o cloreto de sódio, enquanto os óleos graxos são provenientes do refino do petróleo. O emprego de óleos graxos é bastante comum nas máquinas atuais, especialmente naquelas que operam em altas temperaturas.

 

Provas

Questão presente nas seguintes provas
623138 Ano: 2016
Disciplina: Engenharia Mecânica
Banca: CESPE / CEBRASPE
Orgão: FUB
Provas:

Para que a confecção de desenhos técnicos seja feita de forma mais ágil, as normas da ABNT estabelecem símbolos e representações convencionais simplificadas, como as mostradas nas figuras I e II a seguir.

enunciado 623138-1

Com base nessas figuras, julgue o próximo item.

A figura II mostra a representação convencional de uma engrenagem cilíndrica, de dentes helicoidais.

 

Provas

Questão presente nas seguintes provas