Foram encontradas 45 questões.
A planilha abaixo foi criada no Excel do pacote MSOffice 2010 BR.
◢ | A | B | C | D | E | F | G | H |
1 | EMGEPRON - LICITAÇÃO | |||||||
2 | ||||||||
3 | FORNECEDOR | MENOR | ||||||
4 | ITEM | QTD | DESCRIÇÃO | F1 | F2 | F3 | COTAÇÃO | VENCEDOR |
5 | 1 | 10 | Resma 500 fls | R$ 140,00 | R$ 130,00 | R$ 110,50 | R$ 110,50 | F3 |
6 | 2 | 6 | Pendrive 16 GB | R$ 120,00 | R$ 150,00 | R$ 180,00 | R$ 120,00 | F1 |
7 | 3 | 3 | Roteador 802.11n | R$ 510,00 | R$ 450,00 | R$ 330,00 | R$ 330,00 | F3 |
8 | 4 | 20 | Esferográfica | R$ 160,00 | R$ 40,00 | R$ 100,00 | R$ 40,00 | F2 |
9 | R$ 600,50 | |||||||
Nessa planilha foram inseridas expressões
- em G5, G6, G7 e G8 para determinar o menor valor entre todas as cotações dos fornecedores F1, F2 e F3.
- em G9 que determina a soma de todas as células de G5 a G8.
- em H5, H6, H7 e H8 para determinar qual dos fornecedores (se F1, F2 ou F3).
Nessas condições, a expressão inserida em H7 foi:
Provas
O Internet Explorer nas versões 9, 10 e 11/BR possibilita ao internauta ajustar as opções de zoom, por meio do aumento ou diminuição dos caracteres e figuras exibidas na tela do monitor de vídeo. Para isso, ele deve acionar a opção Zoom na janela indicada na figura abaixo.

Essa janela é mostrada na tela quando se aciona na barra
a seguinte opção de menu:
Provas

Provas
De acordo com a lei 6938/81, que dispõe sobre a Política Nacional do Meio Ambiente, a promoção, disciplina e avaliação da Política Nacional do Meio Ambiente cabe a(o) / às(aos):
Provas
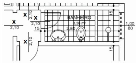
Atenção: Observe atentamente parte da planta baixa de uma edificação apresentada na figura abaixo:

Sobre essa figura, considerando a acessibilidade de deficientes físicos ao banheiro e demais cômodos da casa, responda às duas próximas quetões.
Sabendo que uma barra de apoio será colocada entre o lavatório e a bacia sanitária, a menor distância admissível entre esses equipamentos é de:
Provas
Atenção: Observe atentamente parte da planta baixa de uma edificação apresentada na figura abaixo:

Sobre essa figura, considerando a acessibilidade de deficientes físicos ao banheiro e demais cômodos da casa, responda às duas próximas quetões.
O menor valor admitido para a dimensão x é:
Provas
Sobre as condições térmicas em edificações localizadas em clima quente e úmido, é correto afirmar que:
Provas
No projeto de escadas, o dimensionamento dos degraus pode ser feito através de diferentes fórmulas e uma das mais utilizadas é a fórmula de Blondel. Sabendo que os degraus de uma escada tem espelho de 18cm, de acordo com essa fórmula, um valor possível para o piso desses degraus é:
Provas
A eficiência luminosa é definida com a relação entre a potência luminosa irradiada e a potência elétrica absorvida por uma lâmpada. Sabendo-se que, em um projeto de iluminação, se deseja a maior eficiência possível, a lâmpada a ser empregada, dentre as alternativas abaixo, é a lâmpada:
Provas
Observe atentamente as disposições de cozinhas apresentadas abaixo.

A disposição de cozinha adequada para pequenos espaços, mas com maior impacto sobre a circulação é indicada com o número:
Provas
Caderno Container