Foram encontradas 1.168 questões.
Considere os dados e a viga esquematizada a seguir:

De acordo com a viga esquematizada, considerando-se os esforços horizontais, a reação horizontal encontra-se no ponto
Provas
Para a pintura de um escritório da Eletronuclear, seriam necessárias duas demãos da tinta T1, cujo consumo estimado, em função do rendimento, era de 54 litros por demão. Ao efetuarem a compra do material, entretanto, a tinta T1 não estava disponível, tendo sido oferecida em seu lugar a tinta T2, cujo acabamento final era o mesmo, mas cujo rendimento era o dobro da tinta T1.
Sabendo-se que a tinta T2 é comercializada em galões de 3,6 litros, para realizar o serviço de pintura com a tinta T2, a quantidade de galões a ser adquirida deverá ser de:
Provas
Para as escavações das fundações de uma certa obra, o volume geométrico de corte calculado foi de 153,60 m3. Sabe-se que esse solo tem uma taxa de empolamento de 25%. Uma máquina, cujo trabalho é unicamente o de pegar o volume de solo já escavado e carregá-lo em caminhões, faz seu trabalho com a produção de 1,20 m3 a cada três minutos.
Quanto tempo essa máquina deverá trabalhar para retirar todo o material escavado?
Provas
Considere o seguinte croqui topográfico e suas curvas de nível.

O caminho marcado de P1 até P2 corresponde a um trecho percorrido que apresenta declives e aclives.
Quantos aclives e quantos declives existem nesse trecho?
| Aclives | Declives |
Provas
Em uma obra de instalações de água, um engenheiro estava fazendo algumas observações sobre componentes que combinam um ou mais elementos da tubulação, com finalidades diversas, como, por exemplo: união, interrupção, ramificação ou mudança de direção dos tubos.
Percebe-se, portanto, que ele estava se referindo às(aos)
Provas
Um desenho técnico, ainda sem cotas da planta baixa de um compartimento, está na escala 1:20. Ao fazer a leitura das medidas com o uso de escalímetro, o técnico constatou que a única face do escalímetro que estava em boas condições era a da escala 1:50. Usando essa escala 1:50, as medidas obtidas foram 5,80 m e 8,60 m.
Convertendo-se para a escala correta, esses valores representam, em metros, respectivamente,
Provas
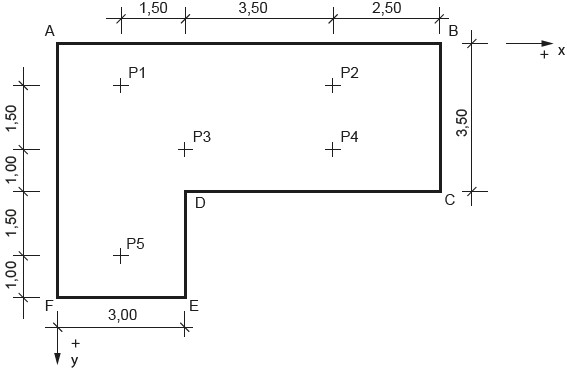
Observe o croqui a seguir, que representa o gabarito ABCDEFA de uma obra. Para marcar no gabarito os centros geométricos das fundações, foram criados os eixos x e y, a partir do ponto A.

Considere os seguintes dados:
- Todos os vértices do gabarito têm ângulo reto;
- As distâncias estão em metros;
- Os pontos P1, P2, P3, P4 e P5 são centros geométricos das fundações a serem marcadas;
- Os eixos x e y estão marcados sobre o gabarito, nos lados AB e AF, respectivamente, formando pares coordenados (x,y) nos centros das fundações, sendo a origem no ponto A, a partir do qual são formados os pontos representados como P(x,y).
Nessas condições, as marcações x e y das fundações P1, P2, P3, P4 e P5 serão:
| P1 | P2 | P3 | P4 | P5 |
Provas
Em uma obra de fundações, o técnico solicitou que sua equipe verificasse o nível da cota de arrasamento, tendo apresentado o seguinte desenho:

Pelo desenho esquematizado, ele estava se referindo ao nível indicado pelo número
Provas
Na manutenção de um telhado de telhas cerâmicas, serão necessárias intervenções em um ou mais rincões e em uma ou mais cumeeiras, dentre as quais algumas sofrerão reparos, e outras serão substituídas. Para facilitar a identificação, o técnico fez um croqui e numerou todas as peças, conforme mostrado a seguir:

As peças que estão sendo analisadas são as de números:
| Rincão | Cumeeira |
Provas
Para a construção de 10 paredes de tijolos de 10,00 m de comprimento e 3,00 m de altura, uma equipe de sete pedreiros e dez serventes trabalhou durante 60 horas.
A produtividade dos pedreiros nessa obra, em h/m2, foi
Provas
Caderno Container