Foram encontradas 1.207 questões.
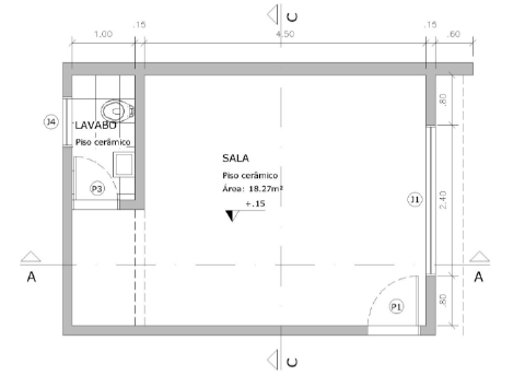
Analisando a figura a seguir e de acordo com as normativas de desenho técnico de projeto arquitetônico, quais são os erros de representação gráfica?


Provas
Questão presente nas seguintes provas
Além de selecionar a proposta mais
vantajosa para a administração, a licitação
visa garantir a observância de qual princípio
constitucional?
Provas
Questão presente nas seguintes provas
De acordo com a Lei nº 8.666/1993 (Lei de Licitações), o contrato administrativo firmado entre a Administração Pública e o vencedor da licitação pode ser alterado unilateralmente pela administração pública
Provas
Questão presente nas seguintes provas
Com relação às microempresas e empresas
de pequeno porte, as normas de licitações e
contratos devem privilegiar o tratamento
Provas
Questão presente nas seguintes provas
Um dos princípios básicos da licitação expõe
que esta
Provas
Questão presente nas seguintes provas
O conceito de cidadania tem origem no latim
civitas, que significa
Provas
Questão presente nas seguintes provas
Uma Empresa Pública iniciará procedimento
licitatório pretendendo adquirir um aparelho
de Raios X, o qual é fabricado por uma
única indústria, possuindo esta atestado
de exclusividade expedido pelo órgão
competente do local de realização da licitação.
Acerca do caso hipotético, de acordo com a
Lei nº 8.666/1993 (Lei de Licitações), assinale
a alternativa correta.
Provas
Questão presente nas seguintes provas
Quando houver a inviabilidade de competição
em determinadas aquisições ou contratações
de serviços pelo órgão público, a licitação é
denominada
Provas
Questão presente nas seguintes provas
A denominada lei de licitações (lei nº. 8.666/93) definiu “Projeto Básico” como o conjunto de elementos necessários e suficientes, com nível de precisão adequado, para caracterizar a obra ou serviço, ou complexo de obras ou serviços objeto da licitação, elaborado com base nas indicações dos estudos técnicos preliminares, que assegurem a viabilidade técnica e o adequado tratamento do impacto ambiental do empreendimento e que possibilite a avaliação do custo da obra e a definição dos métodos e do prazo de execução. Diante dessa definição, qual das alternativas a seguir NÃO corresponde a um elemento do projeto básico?
Provas
Questão presente nas seguintes provas
Qual das alternativas a seguir NÃO representa
uma característica de Autarquia?
Provas
Questão presente nas seguintes provas
Cadernos
Caderno Container