Foram encontradas 746 questões.
No software Autocad, o comando que permite visualização rápida do modelo 3D, possibilitando a mudança de direção e o sentido da visão de um modelo que será apresentado na tela, utilizando o quadro representado a seguir, é o

(Arquivo pessoal; imagem usada com autorização)
Provas
No AutoCAD, com a função DYN desativada, são opções para inserir coordenadas:
Provas
Durante a configuração da impressão no comando PLOT do software AutoCAD, o estilo de plotagem especifica a impressão de um objeto, como sua cor, espessura, desbotamento, acabamento das linhas. O nome dado ao arquivo de impressão, isto é, as tabelas que armazenam o estilo de plotagem são:
Provas
Existem duas estruturas principais de dados utilizadas no geoprocessamento: raster e vetorial. Quanto às estruturas de dados dos tipos raster e vetorial é correto afirmar:
Provas
Para vencer um desnível utilizando rampa, existem considerações quanto à inclinação máxima e desnível máximo por segmento e número máximo de segmentos da rampa, conforme tabela a seguir.
|
Desnível máximo de cada segmento de rampa (h) |
Inclinação de cada segmento de rampa (i)% |
Número máximo de segmento de rampa |
|
1,50 m |
5,00 |
Sem limites |
|
1,00 m |
5,00 < i ≤ 6,25 |
Sem limites |
|
0,80 m |
6,25 < i ≤ 8,33 |
15 |
Para vencer um desnível de 1,20 m de um segmento reto, em um único sentido, com a inclinação máxima recomendada, a opção de projeto mais adequada é:
Provas
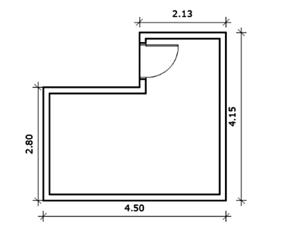
É preciso calcular a quantidade necessária de argamassa colante para assentamento de um piso no ambiente apresentado a seguir.

(Arquivo pessoal; imagem usada com autorização)
Considerando-se a espessura de 15 centímetros das paredes, o rendimento médio da argamassa de 5 kg/m2 (utilizando a desempenadeira com dentes pequenos), vendida em sacos de 20 kg e desprezando-se as perdas, a quantidade de sacos que devem ser comprados é, aproximadamente,
Provas
Em um determinado projeto, um ambiente será destinado para uma sala de raio X, prevendo, dessa forma, radiação no local. Para revestimento e acabamento das paredes desse local, o material indicado em razão das características do ambiente é a argamassa
Provas
Observe a representação gráfica a seguir.

(Arquivo pessoal; imagem usada com autorização)
Os números indicados 1, 2, 3 e 4 indicam, correta e respectivamente,
Provas
Em projetos de arquitetura ou desenhos técnicos, quando necessário, para a modulação espacial do projeto, deve-se fazer a marcação de coordenadas (pontos de encontro entre linhas longitudinais e transversais). Devendo ser representada da seguinte forma:
Provas
Os formatos de folha da série ISO A têm como formato básico um retângulo com área igual a 1 m2 , este denominado como A0.
Sendo o formato A0 representado por suas dimensões X (altura) e Y (base), o formato A2 pode ser representado por
Provas
Caderno Container