Foram encontradas 5.221 questões.

A figura acima mostra três vistas em corte de flanges muito utilizados em redes para condução de fluidos diversos, que atendem a várias funções, conforme o tipo de aplicação a que se destinem. Esses flanges apresentam tipos de faces para diferentes encaixes. Com referência a esse assunto e aos flanges mostrados, julgue os itens a seguir.
Provas

A figura acima mostra três vistas em corte de flanges muito utilizados em redes para condução de fluidos diversos, que atendem a várias funções, conforme o tipo de aplicação a que se destinem. Esses flanges apresentam tipos de faces para diferentes encaixes. Com referência a esse assunto e aos flanges mostrados, julgue os itens a seguir.
Provas

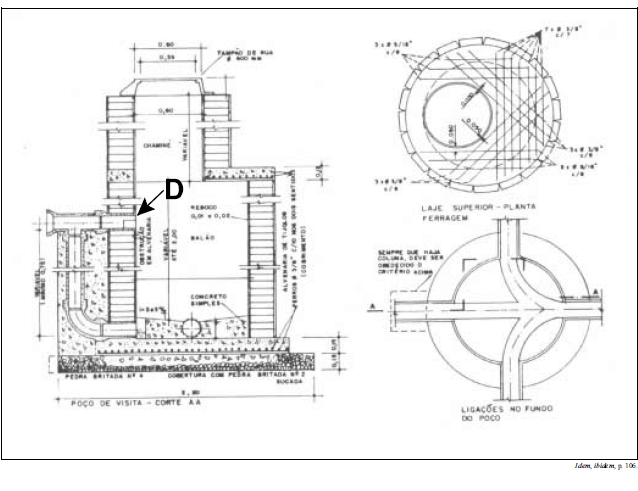
Com base na figura acima — que mostra o detalhamento de um poço de visita em alvenaria, com tubo de queda — julgue os itens a seguir.
A figura é uma perspectiva isométrica.
Provas

Com base na figura acima — que mostra o detalhamento de um poço de visita em alvenaria, com tubo de queda — julgue os itens a seguir.
A letra D indica a descarga do tubo de queda.
Provas

A respeito das informações contidas na figura acima, que mostra um exemplo de projeto de rede coletora de esgoto sanitário, julgue os itens subseqüentes.
A declividade do trecho da letra C é igual a 26,6 m/km.
Provas

A respeito das informações contidas na figura acima, que mostra um exemplo de projeto de rede coletora de esgoto sanitário, julgue os itens subseqüentes.
O PV da letra B tem profundidade igual a 1,50 m.
Provas

A respeito das informações contidas na figura acima, que mostra um exemplo de projeto de rede coletora de esgoto sanitário, julgue os itens subseqüentes.
O trecho da letra A não tem contribuição de montante.
Provas

Para uma edificação de serviço, está prevista a pavimentação de pátio externo, com forma e dimensões apresentadas na figura acima, que será revestido com piso cerâmico, assentado sobre contrapiso de concreto com espessura de 0,10. O traço de concreto será de 1:3:6 (cimento: areia: brita) em volume. Em face dessas informações e considerando que o volume de brita utilizado é igual ao volume de concreto produzido e que o saco de cimento de 50 kg tem volume de 20 litros, julgue os itens que se seguem.
O contrapiso pode receber armadura, para garantir a resistência do conjunto.
Provas

Para uma edificação de serviço, está prevista a pavimentação de pátio externo, com forma e dimensões apresentadas na figura acima, que será revestido com piso cerâmico, assentado sobre contrapiso de concreto com espessura de 0,10. O traço de concreto será de 1:3:6 (cimento: areia: brita) em volume. Em face dessas informações e considerando que o volume de brita utilizado é igual ao volume de concreto produzido e que o saco de cimento de 50 kg tem volume de 20 litros, julgue os itens que se seguem.
A superfície do contrapiso deverá proporcionar a declividade necessária para escoamento de águas.
Provas

Para uma edificação de serviço, está prevista a pavimentação de pátio externo, com forma e dimensões apresentadas na figura acima, que será revestido com piso cerâmico, assentado sobre contrapiso de concreto com espessura de 0,10. O traço de concreto será de 1:3:6 (cimento: areia: brita) em volume. Em face dessas informações e considerando que o volume de brita utilizado é igual ao volume de concreto produzido e que o saco de cimento de 50 kg tem volume de 20 litros, julgue os itens que se seguem.
Para o contrapiso, serão necessários entre 70 e 100 sacos de cimento de 50 kg.
Provas
Caderno Container