Foram encontradas 167 questões.
Num coletor da rede de drenagem de águas pluviais, a velocidade mínima aconselhável é de
Provas
Analise as afirmativas abaixo, com relação às instalações sanitárias/esgoto sanitário.
I. Caixa coletora é a caixa destinada a reunir despejos cujo esgotamento exija elevação mecânica.
II. Uma característica das fossas sépticas é não contaminar o lençol freático da região onde foi instalada, promovendo um tratamento parcial dos resíduos sólidos e uma infiltração controlada no solo do efluente.
III. Fossa séptica é um grande poço de coleta e armazenamento de esgoto, sendo o resíduo líquido direcionado a um sumidouro.
IV. Nos serviços de instalações de Esgoto Sanitário, entende-se por Tubulação Primária a tubulação à qual têm acesso gases provenientes do coletor público ou dos dispositivos de tratamento.
São CORRETAS as afirmativas
Provas
Considere um edifício de apartamentos de 4 pavimentos, com 4 apartamentos por pavimento, tendo cada apartamento 3 quartos sociais com 6 pessoas por apartamento. Os reservatórios de água de uma edificação deverão ser dimensionados para 2 dias de consumo diário, sendo que o reservatório inferior deverá armazenar 3/5 do consumo e o superior, 2/5.
Utilizando-se o consumo diário de 250 litros por pessoa, é CORRETO afirmar que os reservatórios inferior e superior do edifício terão, em litros, capacidades iguais a, respectivamente,
Provas
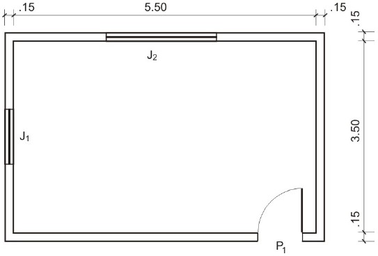
Analise o croqui abaixo.

Dados: P1 = 0,80 x 2,10 m
J1 = 1,00 x 1,50 m
J2 = 2,00 x 1,50 m
Pé direito = 2,80 m
No levantamento de quantitativos para revestimento, é comum o desconto das áreas de vazios de acordo com os critérios que se seguem:
I. descontar as áreas correspondentes a cada vão de 2,00 m2 ou mais;
II. descontar apenas as áreas correspondentes ao vão, no que exceder a 2,00 m2.
Dessa forma, adotando-se os critérios I e II, as áreas de esboço interno para as paredes, em m2, são, RESPECTIVAMENTE,
Provas
Considere que, no projeto de uma edificação, o pé direito entre dois pavimentos é igual a 3,15 m, de piso a piso.
Utilizando-se a fórmula de Blondel para o projeto da escada com altura do espelho de 17,5 cm, é CORRETO afirmar que a largura do piso será de
Provas
Analise a figura abaixo, que representa o esquema de um telhado.

O número de águas, a peça A e a peça B são, respectivamente,
Provas
Observe a figura abaixo, que representa o levantamento topográfico de um terreno com a cota dos pontos P1, P2, P3, P4 e P5.

Dado o coeficiente de empolamento como sendo igual a 1,2 e considerando-se que o objetivo é fazer um platô no nível 70, é CORRETO afirmar que o volume de terra a ser escavado, em m3, é de, aproximadamente,
Provas
Analise as definições abaixo e assinale a que está INCORRETA.
Provas
Considere a seguinte tabela de composição de serviço.
Serviço: Piso - Unidade: m2
|
Item |
Descrição | Unidade |
Quantidade |
| 01 | Cimento | kg | 8,00 |
| 02 | Agregado para piso | kg | 14,00 |
| 03 | Pedreiro | h | 1 |
Sabendo-se que o saco de cimento de 50 kg custa R$28,00 (vinte e oito reais), é CORRETO afirmar que o valor em reais, gasto em cimento, para a construção de 150 m2, é igual a
Provas
O Microsoft Outlook Express coloca o mundo da comunicação on-line no desktop do computador, seja para a troca de e-mails, seja para o ingresso em grupos de notícias para intercâmbio de idéias e informações.
O Microsoft Outlook Express NÃO permite
Provas
Caderno Container