Foram encontradas 50 questões.
O departamento de Biociências fez uma requisição à Superintendência de Infraestrutura solicitando um projeto de acessibilidade para o Laboratório de Habilidades, que está localizado no primeiro pavimento do CB. Sabe-se que o pé esquerdo desse pavimento é de 3,25m e que, para atender a solicitação, é necessária a construção de uma rampa. Para promover a acessibilidade nesse laboratório, serão necessários, portanto,
Provas
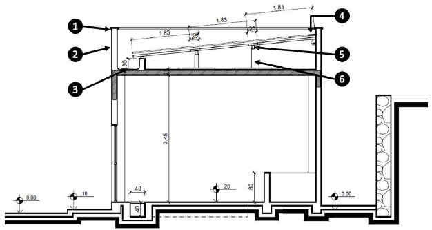
O desenho técnico a seguir traz a representação gráfica de um corte transversal de uma subestação situada no campus central da UFRN.

De acordo com essa representação gráfica, a nomenclatura dos elementos construtivos 1, 2, 3, 4, 5 e 6, respectivamente, são:
Provas
A Coordenadoria de Projetos da Superintendência de Infraestrutura designou um desenhista para analisar um processo de compatibilização do projeto arquitetônico de um prédio com Laboratórios para a FACISA. Na planta baixa desse projeto, vê-se a seguinte representação gráfica para as alvenarias:

Utilizando a convenção correta, o desenhista deve informar que essa é uma representação gráfica
Provas
O desenho arquitetônico lança mão de uma série de simbologias, convenções e elementos gráficos para padronizar a produção do desenho e facilitar sua leitura, independente de onde seja produzido e/ou recebido. Nesse contexto, observe as afirmativas a seguir:
| I |
a escala gráfica é comumente utilizada em desenhos que poderão passar por alguma distorsão na impressão, garantindo que a proporção entre a escala e o desenho permaneçam a mesma. |
| II |
a cota de nível é um elemento utilizado para representar o limite da cota. |
| III |
o norte deve ser indicado em todos os desenhos, sejam eles oriundos de planos horizontais ou verticais. |
| IV |
a indicação de “sobe” deve iniciar no primeiro degrau com uma circunferência, e finalizar com uma seta chegando ao último degrau. |
Em relação à padronização no desenho arquitetônico, estão corretas as afirmativas:
Provas
Quando se pretende representar um sólido que possui elementos internos os quais não ficam bem identificados pelas vistas, é necessária a realização de CORTES. Estes são representações em projeção, semelhantes às vistas, nos quais se considera que o sólido foi interceptado por um PLANO DE CORTE. Para que cumpram sua função, em todas as situações, os cortes devem apresentar
Provas
A projeção ortogonal cilíndrica permite a visualização de um objeto em vistas, mostrando sua verdadeira grandeza. Um exemplo dessa representação são as vistas axonométricas. Considere as vistas abaixo.

A peça que corresponde a essas vistas axonométricas é
Provas
Gaspar Monge criou um sistema projetivo que divide o espaço por meio da interseção de dois planos perpendiculares entre si, um horizontal e outro vertical, conforme figura ao lado. Os planos determinam, no espaço, quatro porções iguais denominadas diedros, e a intercepção dos dois planos conforma uma reta denominada linha de terra. As projeções do ponto (A), no primeiro diedro, são caracterizadas por apresentarem

(MICELI e FERREIRA, s/d; p.23)
Provas
Um escritório de arquitetura deve trabalhar com padrões, de maneira que todos seus funcionários utilizem a mesma linguagem no desenvolvimento dos projetos, e que erros e omissões sejam evitados. O setor de projetos da Superintendência de Infraestrutura designou um projetista para atualizar esses padrões conforme as normas vigentes. Com base nessa situação, considere as afirmativas:
| I |
As pranchas devem ser apresentadas nos diferentes tamanhos seguindo o formato A, com margem esquerda sempre 25mm e demais margens variando de acordo com o tamanho da folha. |
| II |
O carimbo deve apresentar conteúdo do desenho, método de projeção, unidade utilizada e escala. |
| III |
As larguras das linhas devem ser escolhidas conforme o tipo, a dimensão, a escala e a densidade de linhas no desenho. |
| IV |
Os limites da linha de cota podem ser representados com linhas oblíquas e pontos. |
Para que o projetista atualize os projetos da Superintendência de Infraestrutura de acordo com a norma, ele deverá observar o que se afirma em
Provas
A linha é o resultado do deslocamento de um ponto no espaço, e é caracterizada pelo seu comprimento, sua direção e sua posição. O segmento de reta é caracterizado por ser
Provas
Os polígonos regulares são passíveis de inscrição e circunscrição. O que determina a inscrição e a circunscrição de um polígono em uma circunferência, respectivamente, é que
Provas
Caderno Container