Foram encontradas 50 questões.
O estudo de processos de estabilização de taludes faz-se necessário para evitar desastrosas ocorrências de escorregamentos de solos. O tipo de escorregamento conhecido como Espalhamento (Spread) é caracterizado por
Provas
O índice de vazios é uma grandeza adimensional e representa uma característica importante para classificação dos solos. Desse resultado dependem, por exemplo, a permeabilidade, a compressibilidade e a resistência à ruptura. Uma amostra de solo cujo volume sólido (Vs) obtido pelo ensaio de Massa Específica Real do Grão é igual a 0,013 m3 e cujo volume total (V) é 0,028 m3 apresenta um valor de índice de vazios (e) igual a, aproximadamente,
Provas
Disciplina: Legislação Específica das Agências Reguladoras
Banca: UFPA
Orgão: UFPA
O Regulamento Técnico de Boas Práticas Sanitárias no Gerenciamento de Resíduos Sólidos, conforme capítulo III, art. 7º, do anexo à Resolução nº 56 da ANVISA, classifica os resíduos sólidos em diferentes grupos, para depois determinar o que são consideradas “boas práticas sanitárias” para cada caso. São classificados como grupo A:
Provas
Em sistemas prediais de água fria, de acordo com a norma ABNT-NBR 5626: 1998 (Instalação Predial de Água Fria), o ruído de escoamento proveniente de tubulação é gerado quando suas paredes sofrem vibração pela ação do escoamento da água. Este ruído não é significativo para a velocidade média da água inferior a
Provas
A norma ABNT-NBR 12693:1993 trata dos Sistemas de Proteção por Extintores de Incêndio. Quanto ao arranjo físico (localização), considere as seguintes afirmativas a respeito das alturas de montagem de extintores fixados em paredes.
I A posição da alça de manuseio não deve exceder 1,60 m do piso acabado.
II A parte inferior deve guardar distância de, no mínimo, 0,30 m do piso acabado.
III Os extintores portáteis não devem ficar em contato direto com o piso.
IV A posição da alça de manuseio não deve exceder 1,20 m do piso acabado.
Está(ão) correta(s) a(s) afirmativa(s)
Provas
O ensaio de profundidade de carbonatação realizado para inspeção de estruturas de concreto permite avaliar o avanço desta patologia com a utilização de fenolftaleína como sistema indicador. Este fenômeno patológico é provocado por
Provas
No dimensionamento de sistemas de esgoto sanitário, todos os trechos horizontais de coleta e transporte devem possibilitar o escoamento dos efluentes por gravidade, devendo, para isso, apresentar uma declividade constante. Quanto à recomendação de declividade mínima, considere os itens seguintes.
I 2% para tubulações com diâmetro nominal igual ou inferior a 75 mm.
II 2% para tubulações com diâmetro nominal igual ou superior a 100 mm.
III 1,5% para tubulações com diâmetro nominal igual ou superior a 100 mm.
IV 1% para tubulações com diâmetro nominal igual ou superior a 75 mm.
Está(ão) correto(s) o(s) item(itens)
Provas
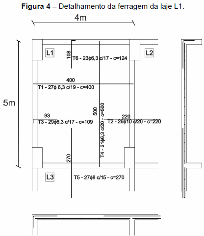
Observe a Figura 4, em que é demonstrado o detalhamento da ferragem da laje L1 de um edifício em concreto armado.

Considerando que se trata de uma laje maciça de 10 centímetros de espessura, é correto afirmar:
Provas
As fôrmas para estrutura de concreto armado são destinadas a sustentar o concreto fresco até que este atinja condições de autossuporte. Sobre o assunto, considere as seguintes afirmativas.
I Na confecção de lajes nervuradas, utilizam-se geralmente fôrmas plásticas denominadas de “cubetas” para permitir dar origem às nervuras, sendo que as fôrmas são permanentemente incorporadas à laje, sem a possibilidade de reutilização.
II Como recomendação para o período de desforma, se não for utilizado um cimento de alta resistência inicial ou processo que acelere o endurecimento, a retirada das fôrmas e do escoramento não deverá ocorrer antes de 07 dias para faces laterais; 14 dias para faces inferiores, deixando-se os pontaletes encunhados e convenientemente espaçados; 21 dias para faces inferiores sem pontaletes.
III Com relação ao custo de fôrmas e cimbramentos, um edifício sem simetria no pavimento tipo apresentará um custo maior com fôrmas que um edifício equivalente em área de pavimento que apresente dois planos de simetria.
IV Os custos das fôrmas representam a menor parcela do custo de produção do concreto armado de edifícios.
Está(ão) correta(s) a(s) afirmativa(s)
Provas
Observe a Figura 3.

Com base na estrutura apresentada na Figura 3, a magnitude do esforço cortante e do momento fletor na barra na seção transversal junto ao apoio são, respectivamente, de
Provas
Caderno Container