Foram encontradas 50 questões.
Provas
- Estruturas
- Resistência dos Materiais e Análise EstruturalEstruturas de Concreto
- Normas e Legislações
Provas
O AutoCAD é um software do tipo CAD — computer aided design ou desenho auxiliado por computador - criado e comercializado pela Autodesk Inc. desde 1982. É utilizado principalmente para a elaboração de peças de desenho técnico em duas dimensões (2D) e para criação de modelos tridimensionais (3D). Além dos desenhos técnicos, o software vem disponibilizando, em suas versões mais recentes, vários recursos para visualização em diversos formatos. É amplamente utilizado em arquitetura, design de interiores, engenharia civil, engenharia mecânica, engenharia geográfica, engenharia elétrica e em vários outros ramos da indústria. Diferente das versões anteriores, o Auto CAD 2015 traz uma tela inicial –new tab, onde o usuário pode iniciar um projeto novo, clicando em Start Drawing, ou trabalhar em um projeto anterior, escolhendo-o na coluna Recent Documents. Além disso, pode conectar-se ao Autodesk 360 ou enviar feedback. No desenvolvimento de desenhos cada entidade geométrica possui alguns pontos notáveis, como mediana, perpendicular, tangente, centro, etc. A ferramenta Object Snap faz com que o programa “rastreie” automaticamente esses pontos e os mostre ao usuário através de um pequeno símbolo, que, mesmo que o cursor não esteja exatamente em cima, será o próximo ponto ao clicarmos no mouse. O comando pode ser ativado pelo botão na Barra de Status ou pelo atalho F3. Pode-se selecionar os pontos que serão rastreados clicando com o botão direito do mouse na ferramenta na barra de status, pelo comando Osnap ou simplesmente “os”. De acordo com a figura abaixo, representando a configuração dos comandos de Osnap na Barra de Status do programa, escolha a alternativa correta em relação à função de cada comando:

Provas

Provas
Muros de gravidade de Gabião são estruturas armadas, flexíveis, drenantes e de grande durabilidade e resistência. São produzidos com malha de fios de aço doce recozido e galvanizado, em dupla torção, amarradas nas extremidades e vértices por fios de diâmetro maior. São preenchidos com rachões ou pedras britadas. São utilizados em estabilização de taludes, obras hidráulicas, viárias e diversos tipos de contenção, podendo ser encontrados em três formatos: caixas, colchões, e sacos em diferentes tamanhos. Os muros de gabiões são constituídos por gaiolas metálicas preenchidas com pedras arrumadas manualmente e construídas com fios de aço galvanizado em malha hexagonal com dupla torção. As dimensões usuais dos gabiões são: comprimento de 2m e seção transversal quadrada com 1m de aresta. No caso de muros de grande altura, gabiões mais baixos (altura = 0,5m), que apresentam maior rigidez e resistência, devem ser posicionados nas camadas inferiores, onde as tensões de compressão são mais significativas. As principais características dos muros de gabiões são a flexibilidade, que permite que a estrutura se acomode a recalques diferenciais e a permeabilidade. O muro de gabião caixa é vantajoso, pois permite alta permeabilidade e grande flexibilidade, o que favorece a construção de estruturas monolíticas, altamente drenantes e capazes de aceitar deslocamentos e deformações sem se romperem. A figura abaixo representa o perfil de um muro de contenção construído em gabião. De acordo com os dados apresentados, verifique a estabilidade do muro em relação ao tombamento e ao deslizamento. Em seguida, escolha a alternativa correta.

Dimensões do Muro:
H = 5,00m – altura do muro;
B = 3,00m – largura da base do muro;
b = 1,00m – largura do coroamento do muro;
h = 1,00m – altura da caixa do gabião;
d = 0,50m – largura do degrau do muro em gabião.
Dados:
Solo: areia, medianamente compacta;
γ = 18 kN/m3 – peso específico do solo;
φ = 32,5° - ângulo de atrito interno do solo:
δa = 21,67° – ângulo de atrito do solo com o gabião;
δSF = 32,5° - ângulo de atrito da fundação em contato com o solo;
γG = 23 kN/m3 - peso específico do muro em gabião;
Kah = 0,25 – coeficiente da componente de empuxo ativo horizontal;
tg δa = 0,33 – tangente do ângulo de atrito solo – gabião;
tg φ = 0,63 – tangente do ângulo de atrito interno do solo;
tg δSF = 0,63 – tangente do ângulo de atrito solo – fundação (coeficiente de atrito);
Gn – força devido ao peso próprio do muro em gabião;
y = 1,67m – braço de alavanca da componente do empuxo ativo horizontal;
xi = variável – braço de alavanca da componente vertical do peso próprio;
Fórmulas:
Eah = 0,5.Kah.γ.H2 - componente do empuxo ativo horizontal – (kN/m);
Eav = Eah . tg δa – componente vertical do empuxo ativo – (kN/m);
MH = - Eah .y – momento de tombamento – (kNm/m);
MBi = Gn .xi - componente do momento resistente ao tombamento – (kNm/m);
Segurança ao Tombamento:
ΣMBi > MH ;
Segurança ao Deslizamento:
Fv = (ΣG n + Eav).δSF > Eah ;
Tabela para preenchimento com o cálculo dos esforços e momentos:

Provas
A Granulometria é a distribuição, em porcentagem, dos diversos tamanhos de grãos. É a determinação das dimensões das partículas de um solo e de suas respectivas porcentagens de ocorrência. A composição granulométrica tem grande influência nas propriedades das argamassas, concretos e do solo utilizado na construção de aterros e para diversos fins na engenharia. É determinada através de peneiramento, através de peneiras com determinada abertura constituindo uma série padrão. Conhecer a distribuição granulométrica de um solo e representá-la através de uma curva, possibilita a determinação de suas características físicas. Esta curva é traçada por pontos em um diagrama semilogarítmico, no qual, sobre os eixos das abcissas são marcados os logaritmos das dimensões das partículas e sobre o eixo das ordenadas as porcentagens, em peso, de material que tem dimensão média menor que a dimensão considerada. A figura abaixo representa a curva granulométrica de um solo. De acordo com as porcentagens que passam nas peneiras representadas, calcule o Coeficiente de Uniformidade e classifique o solo quanto à sua graduação. Depois, marque a alternativa correta.

Dados:
CU é o coeficiente de uniformidade;
d60 é o diâmetro correspondente a 60% da porcentagem que passa;
d10 é o diâmetro correspondente a 10% da porcentagem que passa;
Considere d10 como a média aritmética entre os diâmetros imediatamente acima e abaixo representados na escala logarítmica do eixo das abcissas.
Fórmula:
![]()
Provas
- Gerenciamento, Planejamento e Controle de Obras
- Orçamento no Planejamento e Controle de Obras na Engenharia Civil
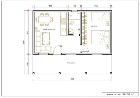
Para uma correta orçamentação de uma obra é necessário um correto levantamento das quantidades de materiais e serviços envolvidos em sua concepção. O profissional de engenharia deve conhecer o projeto em todos os seus detalhes, a partir das plantas baixas, cortes e fachadas definidos na arquitetura, assim como os projetos complementares de fundações, estrutura, impermeabilização, coberta e instalações. A partir da planta baixa do projeto de arquitetura uma pequena unidade residencial abaixo, calcule o quantitativo do que se pede, e escolha a opção correta.
Levantar o quantitativo do seguinte ambiente:
- Sala/Cozinha;

Especificações:
- Piso: cerâmica 30 x 30cm;
- Paredes: pintura látex PVA;
- Teto: Forro em placas de gesso 50 x 50cm;
- Janelas: esquadria em alumínio e vidro 1,20 x 1,00m;
- Porta de entrada: em madeira ficha de 0,90 x 2,10m;
- Porta do banheiro: em madeira paraná de 0,60 x 2,10m;
- Porta do quarto: em madeira paraná de 0,70 x 2,10m;
Informações complementares:
- Desconto de janelas e portas para o cálculo do quantitativo de pintura em paredes;
- Dimensões do hall de circulação: 1,35 x 1,60m;
- Pé direito: 3,00m.
Pede-se calcular o quantitativo da área de piso, paredes e teto da Sala/Cozinha.
Provas
Determinar o coeficiente de permeabilidade à carga constante e à carga variável, com percolação de água através do solo em regime de escoamento laminar. Na aplicação desses métodos podem ser utilizados corpos de prova talhados ou moldados, obtidos a partir de amostras indeformadas ou da compactação de amostras deformadas. O coeficiente de permeabilidade é uma constante de proporcionalidade relacionada com a facilidade pela qual o fluxo passa através de um meio poroso. Os métodos utilizados pela sua determinação em laboratório se baseiam na lei de Darcy, segundo a qual a velocidade de percolação é diretamente proporcional ao gradiente hidráulico. A partir de um permeâmetro de nível constante empregado para solos granulares, determine o valor de k, ou coeficiente de permeabilidade, sabendo que a amostra é imediatamente saturada, de acordo com os dados apresentados. A seguir, escolha a opção correta.

Dados:
L = 18cm;
h = 36cm;
d = 10cm;
n = 0,35;
t = 40s;
π = 3,14.
Onde:
k coeficiente de permeabilidade do solo – (cm/s);
Q quantidade ou volume de água que atravessa a amostra – (cm3);
L altura do corpo de prova no permeâmetro – (cm);
A área da seção do corpo de prova – (cm2 );
h diferença de nível da água nos recipientes – (cm);
t tempo em que a água atravessa a amostra – (s);
n porosidade do solo – adimensional;
Fórmulas:

Provas
A consistência do concreto é geralmente medida no ensaio de abatimento (slump test). O concreto fresco é compactado no interior de uma forma troncocônica, com altura de 30cm. Retirando-se a forma, por cima do concreto, este sofre um abatimento, cuja medida em centímetros é usada como valor comparativo da consistência. A consistência e a trabalhabilidade dependem da composição do concreto, e, em particular, da quantidade de água, da granulometria dos agregados, da presença de aditivos, entre outros. A dosagem do concreto deve levar em conta a consistência necessária para as condições da obra. Peças finas e fortemente armadas necessitam misturas mais fluidas que peças de grande largura e com pouca armação. De acordo com a figura abaixo e o enunciado da questão, marque a alternativa correta em relação aos valores dos limites do abatimento do slump test e sua correspondente consistência:

Provas
Para a execução das obras de edificações, o planejamento representa o estudo da melhor estratégia adotada para a execução de uma sequência de atividades com a melhor utilização de recursos baseando-se nas informações disponíveis, no momento, como projetos, especificações, processos construtivos e orçamento além do conhecimento e capacidade técnica das pessoas que serão responsáveis pela produção. Fazem parte do planejamento executivo de uma obra a determinação detalhada das atividades, seus prazos de execução, o momento no tempo em que as atividades acontecerão e a quantidade de recursos envolvidos. Pela análise do cronograma de Gantt abaixo apresentado, escolha a alternativa correta.

Provas
Caderno Container