Foram encontradas 526 questões.
Provas
Provas
I. Em seu Livro, Lynch afirma que as pessoas no geral, entendem a cidade ao seu redor de maneira consistente e previsível, formando mapas mentais utilizando-se de cinco elementos principais: Vias/Caminhos, Limites/Barreiras, Bairros, Nós/Pontos Nodais, Marcos. II. Segundo Amos Rapoport, esses conceitos e estruturas se modificam a depender do usuário/observador. A noção de filtros culturais e a diferença entre o mundo real e o mundo percebido, bem como a própria velocidade e o modal de deslocamento modificam de maneira importante os elementos estruturais propostos por Lynch a depender do observador e das características circunstanciais deste. III. Três grandes conceitos regem a percepção do ambiente urbano: a identidade, a estrutura e o significado. Apesar de não se aprofundar muito na noção específica de significado, dando mais ênfase aos outros dois conceitos, ele sustenta que um elemento urbano sempre tem um significado para o observador, ligado intrinsecamente ao seu caráter único (identidade), assumindo um papel importante dentro de uma estrutura urbana. IV. O autor cunha um novo termo: a Imageabilidade (Imageability, em inglês). Toda a teoria e metodologia de Lynch e mesmo o conceito de imageabilidade estariam ligados ao conceito de legibilidade, identidade e orientação, uma vez que imagens de elementos que ele classifica como “fortes” seriam capazes de construir uma visão mais clara e mais estruturada da imagem da cidade. Considerando o exposto acima, pode-se inferir que
Provas
Analise as afirmações a seguir, no que diz respeito à topografia:
I. Norte magnético é para onde apontam as agulhas da bússola.
II. Geodésia é a parte da cartografia que tem por objetivo o estudo da forma e dimensões da terra. A geodésia, em seus trabalhos, leva em consideração a esfericidade da terra e a refração do raio visual.
III. Topografia: (TOPOS = plano inclinado e GRAFIA = descrição, desenho). Trata da representação gráfica da superfície terrestre num plano horizontal (plano topográfico) de projeção.
IV. Curva de nível é o lugar geométrico dos pontos de cotas diferentes, ou seja, são linhas que ligam pontos, na superfície do terreno, que não têm a mesma cota em relação a um plano horizontal.
As afirmações INCORRETAS são:
Provas
Provas
Provas
Provas
Provas
Assinale a alternativa correta de acordo com a identificação acima.
Provas

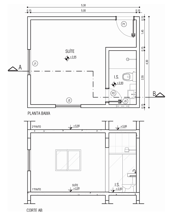
Analise as informações abaixo com o desenho em questão e assinale com V (verdadeiro) ou F (falso):
( ) Está faltando ser representada a janela J3 no Corte AB.
( ) A janela J2 foi equivocadamente desenhada no Corte AB.
( ) Está faltando ser representada a porta P1 no Corte AB.
( ) A janela J3 foi desenhada na planta baixa com linha de projeção, sendo que o correto é linha contínua.
A sequência correta é:
Provas
Caderno Container