Foram encontradas 50 questões.
Durante os levantamentos topográficos, os piquetes são utilizados para a materialização de um ponto topográfico no terreno. Julgue as assertivas acerca do piquete:
I. Só podem feitos de metal inoxidável de acordo com as Normas de Engenharia.
II. Assinalados (marcados) na sua parte superior com tachinhas de cobre, pregos ou outras formas de marcações que sejam permanentes.
III. Comprimento variável de 15 a 30cm (depende do tipo de terreno em que será realizada a medição).
IV. É cravado no solo, porém, parte dele (cerca de 3 a 5cm) deve permanecer visível.
Pode-se concluir que das assertivas lidas:
Provas
O Engenheiro Civil André está conferindo uma poligonal (de 7 pontos) obtida através de um levantamento planimétrico através Estação Total. Sabe que o azimute encontrado no último trecho do alinhamento da poligonal (caminhamento da poligonal no sentido horário) foi de 274°40’18”. O rumo correto para este ponto é de:
Provas
Nas atividades da Topografia utiliza-se equipamentos de alta precisão para fazer trabalhos com segurança e de forma célere. O equipamento da foto abaixo é utilizado principalmente nos levantamentos altimétricos, trata-se:

Provas
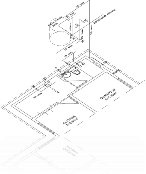
O perfil isométrico do projeto hidráulico detalha as tubulações, conexões e reservatório a serem utilizados no abastecimento residencial, para a correta execução da instalação hidráulica. Baseado na figura abaixo, a tubulação da rede que alimenta a caixa d’água é em mm:

Provas
Na obra de construção de um reservatório foi cortado 30.000m³ com uma retroescavadeira para ser levado até a obra. Uma amostra do solo escavado foi levado para o laboratório de solos e realizado ensaios para obter 1m³ de solo compactado, sendo este o perfil da amostra: fator de empolamento de 30%. A Construtora responsável pela obra tem uma frota com 10 caminhões com basculante de capacidade de 12m³. O número de viagens da frota para transportar o volume solto até o aterro é de:
Provas
Sistema construtivo que utiliza blocos de elevada resistência na construção de residências, prédios e outros e, por conseguinte, trazem o aumento de produtividade e o avanço no cronograma de obras. O sistema referido acima é:
Provas
O eletricista Henrique fez a lâmpada fluorescente de 35w (do tipo rosqueável e econômica) que ilumina uma da escada de um prédio comercial de 3 pavimentos(térreo e 2 pavimetos superiores), no sistema two way. Neste caso, os condutores usados para a ligação da lâmpada são:
Provas
No chuveiro elétrico constatou-se a queima deste equipamento de potência igual a 4400W e tensão de 220V. O administrador, sem consultar um engenheiro civil, resolveu por conta própria mandar instalar um chuveiro de maior potência. Ao acionar o chuveiro, o disjuntor bipolar de 20A do chuveiro começou a desarmar durante os banhos. O procedimento correto para tentar solucionar deve ser:
Provas
De acordo com a NBR 5628/2018, as tubulações das instalações hidráulicas prediais de água fria devem ser dimensionadas, em que a velocidade máxima da água é de 3m/s, em qualquer trecho de tubulação. Supondo que a água oriunda da caixa d’água na tubulação de 50mm seja de 2m/s, a vazão aproximada na tubulação em m³/s: (adotar \( \pi =3,14 \))
Provas
Para obter curvas de nível, no desenho topográfico, une-se as pontos de mesma cota. De acordo a figura abaixo, as curvas de nível representam o acidente geográfico:

Provas
Caderno Container