Foram encontradas 801 questões.
Nas afirmações abaixo, em relação com a NBR 6118:2014 de projetos de estrutura de concreto armado – procedimentos, assinale (V) se forem verdadeiras e (F) se forem falsas, e em seguida marque a alternativa com a sequência correta
: ( ) De acordo com a tabela 7.2 – Correspondência entre a classe de agressividade ambiental e o cobrimento nominal para Δc = 10 mm, na classe de agressividade ambiental III, o cobrimento de elementos em contato com o solo corresponde a 30 mm
. ( ) Estados-limites de serviço (ELS) estão relacionados ao conforto do usuário e à durabilidade, aparência e boa utilização das estruturas, seja em relação aos usuários, seja em relação às máquinas e aos equipamentos suportados pelas estruturas
. ( ) Para vigas e pilares, o diâmetro das barras longitudinais não pode ser inferior a 10 mm nem superior a 1/8 da menor dimensão transversal
( ) Segundo a tabela 6.1 – Classes de agressividade ambiental (CAA), quando a estrutura está classificada como classe de agressividade I, o risco de deterioração da estrutura é pequeno.
Provas
Dentre as opções abaixo, qual não é uma ação permanente, conforme NBR 6120:2019 que diz a respeito das ações para cálculo de estruturas de edificações?
Provas
Analise as afirmações abaixo se são verdadeiras e posteriormente marque a alternativa correta:
I. A estaca Strauss, é armada e preenchida com argamassa de cimento e areia, moldada in loco executada por perfuração rotativa ou rotopercussiva, revestida integralmente, no trecho em solo, por um conjunto de tubos metálicos recuperáveis.
II. Estaca Raiz é executada por perfuração do solo com uma sonda ou piteira e revestimento total com camisa metálica, realizando-se gradativamente o lançamento e apiloamento do concreto, com retirada simultânea do revestimento.
III. Estaca Franki, é moldada in loco executada pela cravação, por meio de sucessivos golpes de um pilão, de um tudo de ponta fechada por uma bucha seca constituída de pedra e areia, previamente firmada na extremidade inferior do tubo por atrito. Esta estaca possui base alargada e é integralmente armada.
Provas
Observe a figura a seguir, e assinale a alternativa com os valores dos momentos fletores nos pontos C, E e F respectivamente.

Provas
Assinale a alternativa que apresenta a definição de Rumo segundo a Topografia.
Provas
Considerando que h=2 metros; b=2 metros e B=3 metros. Calcule a área do trapézio hachurado e assinale a alternativa correspondente.

Provas
Dentre os mecanismos preponderantes de deterioração relativos ao concreto temos a lixiviação. Das alternativas abaixo assinale como ocorre a lixiviação.
Provas
Das alternativas abaixo, marque a que representa uma fundação direta.
Provas
Sobre Fundações com estaca de madeira assinale a alternativa INCORRETA.
Provas
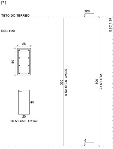
A figura abaixo representa um detalhamento de um pilar de concreto armado com comprimento de 3,00 m e com uma seção transversal de 0,25 m por 0,50 m em que o mesmo foi armado com aço CA-60 para a armadura transversal e CA-50 para a armadura longitudinal:

Considerando que a massa das barras de CA-60 nos diâmetros 4.2 mm e 5.0 mm são, respectivamente, 0,11 kg/m, 0,15 kg/m, já para as barras de CA-50 nos diâmetros 8.0 mm, 10.0 mm e 12.5 mm são respectivamente, 0,40 kg/m, 0,62 kg/m e 0,96 kg/m. Portanto com as informações dispostas, assinale a alternativa que aproximadamente contenha o volume de concreto e o consumo de aço de CA-60 e CA-50 respectivamente para a montagem deste pilar:
Provas
Caderno Container