Foram encontradas 50 questões.
Qual das opções abaixo NÃO apresenta um sistema de distribuição de água quente?
Provas
Assinale a opção que apresenta a tubulação vertical de esgoto sanitário, responsável pela coleta de esgoto primário.
Provas
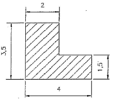
Analise a representação a seguir.

Qual a quantidade mínima de peças de cerâmica 20x20 cm necessárias para pavimentar a área representada acima?
Dado: cotas em metros.
Provas
Segundo o Código de Obras do Município do Rio de Janeiro, uma construção destinada a servir como internato é classificada como
Provas
Um retângulo possui lados com comprimentos de 9,0 cm e 12 cm. O comprimento do lado maior equivale a que percentagem do comprimento da diagonal?
Provas
Assinale a opção correta, relativa à comparação entre as bitolas das barras de aço normalmente comercializadas.
Provas
Considerando o uso de cimento PORTLAND comum, o escoramento das fôrmas de lajes com espessura superior a 10 cm só deve ser retirado ao final de quantos dias?
Provas
Analise a figura a seguir.

Quantos metros quadrados de grama em placa serão necessários para serem plantados em um jardim, correspondente à área hachurada da figura?
Provas
Qual o volume de um prisma que possui altura H e tem como base um triângulo isósceles de lados L?
Provas
Um cilindro possui base de diâmetro D e altura H. Como pode ser calculado o seu volume?
Provas
Caderno Container