Foram encontradas 60 questões.
Para o projeto de fundações de edificações a Norma Brasileira estabelece o número mínimo de sondagens SPT, com relação à área de projeção em planta, em
Provas
Em um conjunto habitacional implantado em terreno de 15.000 m2, edificou-se o total de 30.000 m2 de área construída em 6 pavimentos. No pavimento térreo, 1.200 m2 foram destinados a escritórios, 1.200 m2 foram destinados a lojas comerciais e o restante a equipamentos coletivos, totalizando 3.000 m2. Os outros 5 andares, com 5.400 m2 cada um, foram reservados a apartamentos de 2 dormitórios.
É correto afirmar que
Provas
Em Comunicação Visual, há diversos tipos e formas de sinalização. A NBR 9050, norma brasileira de “Acessibilidade a edificações, mobiliário, espaços e equipamentos urbanos” define quatro tipos de sinalização.
São elas:
I. Permanente: utilizada nas áreas e espaços cuja função já esteja definida, identificando os diferentes espaços ou elementos de um ambiente ou de uma edificação.
II De emergência: utilizada para indicar informações provisórias ou que podem ser alteradas periodicamente.
III. Direcional: utilizada para indicar a direção de um percurso ou a distribuição espacial dos diferentes elementos de um edifício.
IV. Temporária: utilizada para indicar as rotas de fuga e as saídas de emergência das edificações, dos espaços e do ambiente urbano, ou para alertar quanto a um perigo iminente.
Está correto o que se afirma APENAS em
Provas
Para a concepção de uma estrutura, deve-se procurar conciliar o sistema estrutural e o material para se atingir os principais objetivos exigidos pela edificação: resistência, estabilidade, estética e durabilidade.
Dos sistemas estruturais de aço mais usuais, é correto afirmar:
Provas
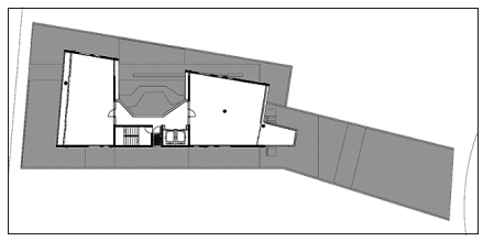
Considere o projeto do Edifício Simpatia, em São Paulo, SP (2007-11), do escritório de arquitetura GrupoSP, a seguir:

Planta do pavimento tipo

Planta do térreo

Corte

Vistas Externas
O elemento da edificação assinalado com o X é
Provas
Considere o projeto do acesso ao Passeio do Óvalo em Teruel, Espanha (2001-03), obra do arquiteto David Chipperfield, a seguir:

Implantação e cortes do conjunto

Planta inferior

Plantas intermediária e superior

Corte

Vistas Externas
Considerando as imagens, constata-se que
I. a sensível abordagem do projeto permite que novos materiais possam ser utilizados sem prejudicar as características originais do monumento histórico.
II. a intervenção é, na prática, uma infraestrutura urbana, um edifício-conexão.
III. o desenvolvimento técnico e artístico empregado para obtenção de grande expressividade em certas obras exige renúncia às antigas causas do patrimônio histórico.
IV. a implementação de novas soluções construtivas com o emprego de novos materiais pode ser utilizada para minimizar impactos ambientais.
Está correto o que se afirma APENAS em
Provas
O entendimento da arquitetura moderna brasileira não é completo se não considerar a obra do arquiteto Sérgio Bernardes (1919-2002). Observe abaixo imagens de seu projeto para o Rio de Janeiro do Futuro, publicadas em número especial da Revista Manchete na década de 1960, e considere a seguinte afirmação do arquiteto:
Habitar é colateral ao trabalho. Colateralidade é, porém, diferente de justaposição. Colateralidade significa, para nós, rapidez e facilidade de acesso. Decorre de um planejamento orgânico e não de uma ambição especulativa. [...] Todos sentimos que a horizontalidade gigante e a verticalidade tímida agravaram os problemas urbanos da habitação, pela predominância do interesse individual sobre o bem comum.

Copacabana terá quatro bairros verticais, todos com vistas para o mar e para o verde.

O rio entrará na civilização do lazer com 45 centros culturais.

O desenvolvimento do centro comercial da cidade é celular e sua conexão é feita por calçadas móveis.

Cada pilar da ponte servirá de cais para seis navios
Considerando os princípios urbanísticos contidos nesse pensamento, verifica-se que Sérgio Bernardes acreditava que
I. cada proprietário de lote é um especulador em potencial.
II. a administração pública, na prática, vem-se abstraindo do bem comum para prolongar um direito privado dentro de uma estrutura que exige solidariedade comum.
III. o crescimento das cidades tem de ser pensado como uma célula gigante, como um aglomerado de células que cresce indefinidamente de maneira orgânica.
IV. a cidade jardim como um sinônimo de ecocidade, consistindo em uma célula autônoma cercada por um cinturão verde num meio-termo entre campo e cidade, é uma solução para o problema da habitação.
Está correto o que se afirma em
Provas
Considere os desenhos e as imagens de três projetos do escritório paulistano dos arquitetos Vinícius Andrade e Marcelo Morettin, a seguir:
Residência P.A. Carapicuíba − SP (1997-98)

2º Concurso Internacional Living Steel para Habitação Sustentável − Primeiro Prêmio Recife, PE (2007)

Planta tipo

Sistema construtivo

Vista externa − Perspectiva eletrônica
Centro de Informações COMPERJ − ITABORAÍ − RJ (2008)

Implantação

Estrutura

Vista externa − perspectiva eletrônica
Em relação aos princípios dessa arquitetura, constata-se que
Provas
Observe o projeto do Terminal de Passageiros 3 do Aeroporto Internacional de Guarulhos, SP (2010), que tem entre seus autores os arquitetos paulistanos Mario Biselli e Artur Katchborian.

Vistas externas − perspectivas eletrônicas

Diagrama Conceitual




Mezanino do desembarque + desembarque

Corte transversal
Considere as seguintes características desse projeto:
I. A divisão cobertura/embasamento é clara na cobertura e na malha estrutural: enquanto em cima os vãos são grandes e os pilares metálicos abrem-se como galhos de árvores, em baixo os vãos são menores e com execução mais rápida, barata e simples.
II. A forma do terminal pode ser relacionada com a das catedrais, uma vez que insinua a criação de três naves, das quais a central, com maior vão e altura, justifica a analogia, assumindo as características de espinha dorsal da edificação.
III. O projeto pode ser dividido em duas partes: uma parte superior, a cobertura, onde estão piso de embarque e mezaninos; e outra inferior, o embasamento, com três pavimentos (o desembarque, o nível da pista e um subsolo).
IV. A horizontalidade da proposta, comum aos aeroportos, é indutora do partido arquitetônico: a cobertura, elemento morfológico único, reflete essa horizontalidade e sugere uma espécie de “nova topografia”, alterada para abrigar a função precípua da edificação.
Está correto o que se afirma em
Provas
Dentre as diversas normas aplicáveis à saúde e segurança do trabalho, as medidas de proteção contra quedas de altura merecem atenção especial.
A proteção contra quedas, quando constituída de anteparos rígidos, em sistema de guarda-corpo e rodapé, deve
I. ser construída com altura de 1,2 m para o travessão superior e 0,70 m para o travessão intermediário.
II. ter rodapé com altura de 0,20 m.
III. ter os vãos entre travessas preenchidos com tela.
IV. ter os vãos entre travessas preenchidos com dispositivo que garanta o fechamento seguro da abertura.
Está correto o que se afirma em
Provas
Caderno Container