Foram encontradas 980 questões.
Para revestir o piso da cozinha de um hospital, serão utilizados ladrilhos quadrados de 20 cm de lado.
Sabendo que a cozinha possui 76 m2 de área, quantos ladrilhos serão necessários para o revestimento total do piso?
Provas
A cada mês trabalhado no ano, uma pessoa tem direito a receber como gratificação salarial um doze avos do seu salário mensal. Se uma pessoa trabalhou cinco meses durante um ano e seu salário era de 1.740 reais mensais, qual será o valor, em reais, de sua gratificação salarial nesse ano?
Provas
Um trabalhador recebe um salário de 1.560 reais.
Sabendo que esse trabalhador gasta \( \dfrac {2} {5} \) desse salário em aluguel, \( \dfrac {1} {5} \) em alimentação, \( \dfrac {1} {6} \) em transporte e, nesse mês, teve uma despesa extra de 97 reais, quantos reais restaram de seu salário?
Provas
Considere que três marceneiros levam 15 dias para montar 50 armários.
Então, nas mesmas condições, quantos dias 15 marceneiros levarão para montar 100 armários?
Provas
Na figura abaixo, encontra-se representada parte de uma fita métrica de 5 metros na qual foram feitas duas marcações indicadas pelos pontos P e Q.
Entre as alternativas, as melhores aproximações, em metros, para as medidas indicadas pelos pontos P e Q, respectivamente, são

Provas
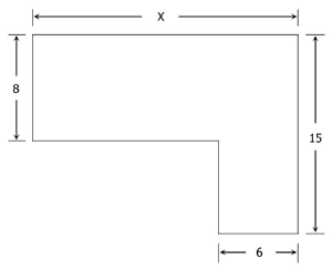
A figura a seguir representa a planta baixa de um posto de saúde.

O posto de saúde é formado por duas regiões retangulares com as medidas, em metros, indicadas na figura e com área total de 202 m2. A medida de X, em metros, é
Provas
Dois marceneiros, Antônio e Carlos, receberam quantidades distintas de portas para instalar. Antônio precisa instalar 24 portas e Carlos precisa instalar 12 portas.
Ao fim de um dia de trabalho, Antônio instalou \( \dfrac {3} {8} \) das 24 portas, e Carlos instalou \( \dfrac {5} {6} \) das 12 portas.
Ao fim desse dia de trabalho, o total de portas instaladas pelos dois marceneiros é
Provas
Quatro cartões foram numerados com os algarismos 3, 4, 7 e 9, como na figura a seguir.

Utilizando os quatro algarismos e sem repeti-los, uma pessoa formou o maior número que, ao ser dividido por dois, resulta em um número inteiro e com resto zero.
O número que essa pessoa formou é
Provas
Para transportar 15.500 quilogramas de areia, é possível utilizar uma camionete que tem capacidade para carregar 2,5 toneladas.
Qual é o menor número de viagens que devem ser realizadas com essa camionete para transportar toda a areia?
Provas
O resultado da operação \( \dfrac {0,5 \, \times \, 0,2) \, - \, (0,4 \, \times \, 0,1)} {0,5} \) é
Provas
Caderno Container